Bildegalleri

Velkommen til fjells, Fetalia 125 presentert av Nordvik Hardanger!
Solgt
FETALIA | Eksklusiv hytte oppført i 2023 med høy standard! Premium hytte med rikelig plass til hele storfamilien!
Prisantydning6 950 000 kr
- Omkostninger
- 175 100 kr
- Totalpris
- 7 125 100 kr
- Kommunale avg.
- 20 595 kr per år
Nøkkelinfo
- Beliggenhet
- På fjellet
- Boligtype
- Hytte
- Eieform
- Eier (Selveier)
- Internt bruksareal
- 150 m² (BRA-i)
- Bruksareal
- 154 m²
- Eksternt bruksareal
- 4 m² (BRA-e)
- Tomteareal
- 1 009 m² (eiet)
- Byggeår
- 2023
- Soverom
- 7
- Rom
- 9
- Energimerking
- C - Rød
- Overtakelse
- Overtakelse skjer etter avtale med selger. Før boligen overleveres kjøper, skal fullt oppgjør og omkostninger være mottatt på meglers klientkonto.
Fasiliteter
Barnevennlig
Rolig
Innlagt strøm
Offentlig vann/kloakk
Turterreng
Om boligen
Denne eksklusive fritidsboligen i Fetalia kombinerer høy standard med en naturskjønn beliggenhet. Med ski- og turområder rett utenfor døren, er dette et perfekt sted for friluftsentusiaster året rundt.
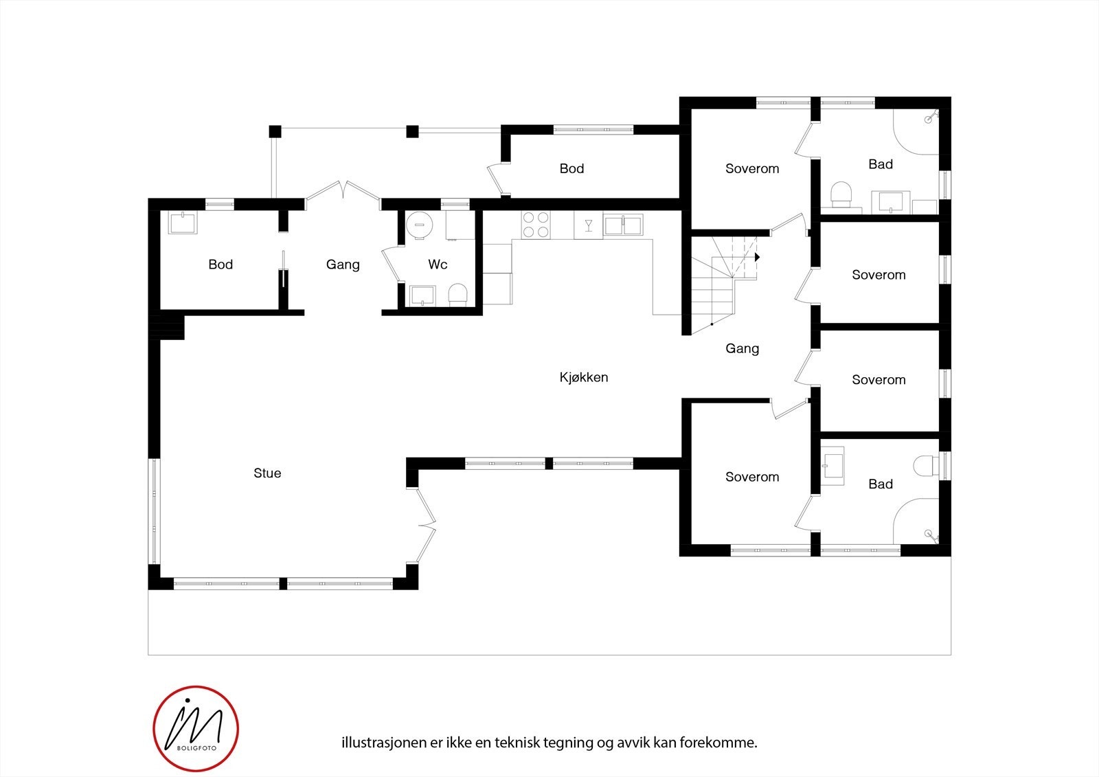
Hytten har et bruksareal på 154 m² fordelt over to plan, med syv romslige soverom, tre moderne bad og en loftstue som gir ekstra oppholdsplass. Store vindusflater slipper inn rikelig med lys og rammer inn den spektakulære utsikten. Den åpne stue- og kjøkkenløsningen skaper en sosial atmosfære, mens eksklusive materialvalg og smakfulle detaljer gir en gjennomført helhet. Uteområdet inkluderer en stor, delvis overbygget terrasse, perfekt for både sommer- og vinterbruk.
Kun 20 min fra Eidfjord og ca 1 time fra Voss gir enkel tilgang til servicetilbud og naturopplevelser.
Velkommen!
Hytten har et bruksareal på 154 m² fordelt over to plan, med syv romslige soverom, tre moderne bad og en loftstue som gir ekstra oppholdsplass. Store vindusflater slipper inn rikelig med lys og rammer inn den spektakulære utsikten. Den åpne stue- og kjøkkenløsningen skaper en sosial atmosfære, mens eksklusive materialvalg og smakfulle detaljer gir en gjennomført helhet. Uteområdet inkluderer en stor, delvis overbygget terrasse, perfekt for både sommer- og vinterbruk.
Kun 20 min fra Eidfjord og ca 1 time fra Voss gir enkel tilgang til servicetilbud og naturopplevelser.
Velkommen!
NB: Knappen for å vise hele beskrivelsen har kun en visuell effekt.
NB: Knappen for å vise hele beskrivelsen har kun en visuell effekt.
Salgsoppgaven beskriver vesentlig og lovpålagt informasjon om eiendommen
Se komplett salgsoppgaveNyttige lenker
Nærområdet
Nordvik Hardanger
Vi vet hva det er verdt
Annonseinformasjon
| FINN-kode | 394310529 |
|---|---|
| Sist endret | 05. des. 2025 09:27 |
| Referanse | 37-0112/24 |
Annonsene kan være mangelfulle i forhold til lovpålagt opplysningsplikt. Før bindende avtale inngås oppfordres interessenter til å innhente komplett informasjon fra meglerforetaket, selger eller utleier.




















































