Bildegalleri

Velkommen til Camilla Colletts vei 2A - Presentert av Ulrik Bøe V/Privatmegleren Dyve & Partnere
Totaloppusset og påkostet 4-roms med ettertraktet beliggenhet I Arkitekttegnet I 3 balkonger I Peis I Heis I Garasje*
Nøkkelinfo
- Boligtype
- Leilighet
- Eieform
- Eier (Selveier)
- Soverom
- 3
- Internt bruksareal
- 127 m² (BRA-i)
- Bruksareal
- 131 m²
- Eksternt bruksareal
- 4 m² (BRA-e)
- Balkong/Terrasse
- 9 m² (TBA)
- Etasje
- 2
- Byggeår
- 1939
- Energimerking
- G - Gul
- Rom
- 4
- Tomteareal
- 1 252 m² (eiet)
- Boligselgerforsikring
- Ja
Fasiliteter
Visning
Om boligen
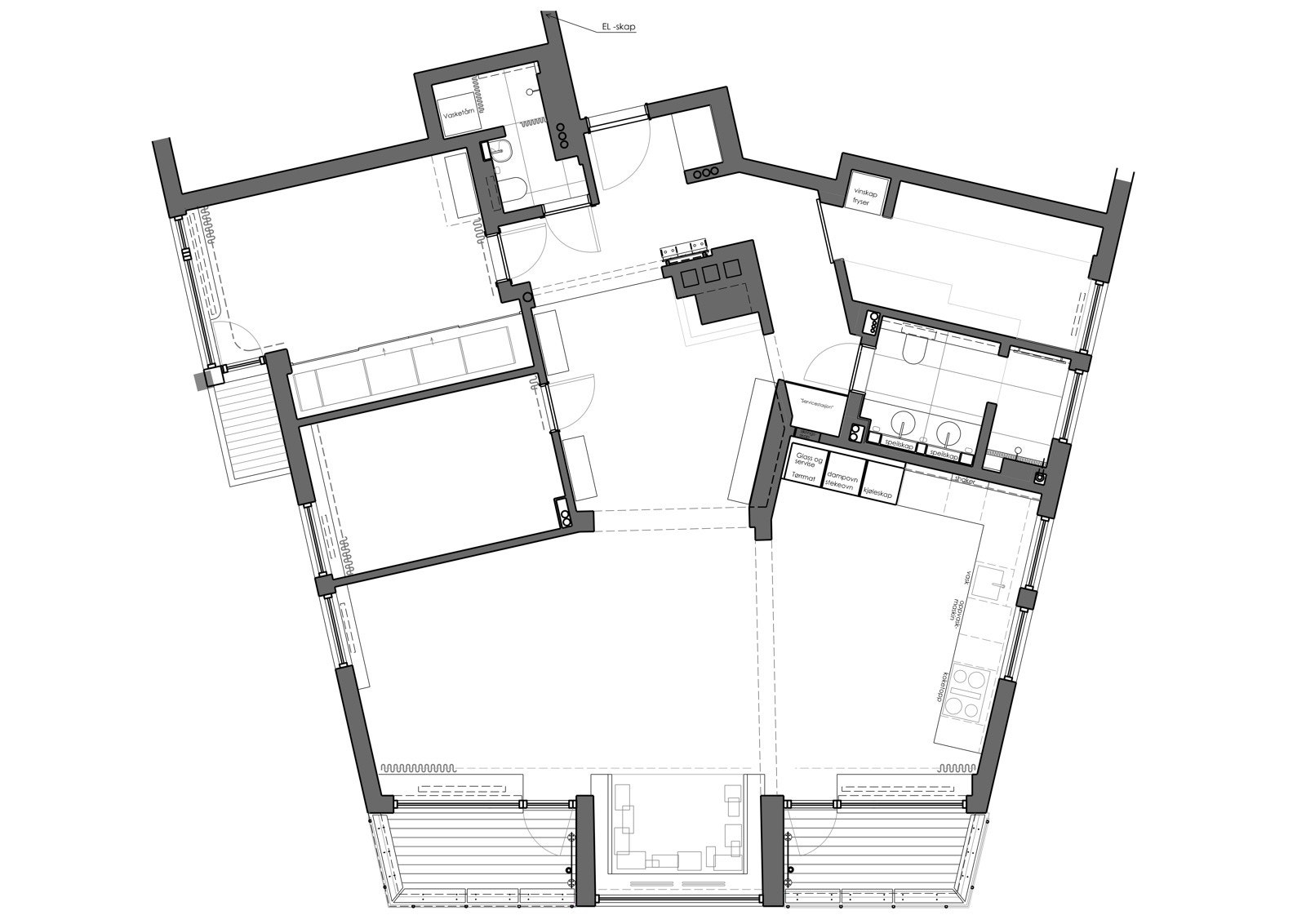
Velkommen til Camilla Colletts vei 2A . En påkostet og arkitekttegnet endeleilighet med heis i et funkisbygg fra 1939. Beliggende i et av Frogners mest ettertraktede områder, byr boligen på en lys og luftig atmosfære med gjennomlysning fra tre sider (vest, syd og øst). Leiligheten ble totaloppusset i 2022 med materialvalg av høy kvalitet og høy håndverksmessig standard, der hver detalj er nøye gjennomtenkt.
Høydepunkter:
- Totaloppusset i 2022
- Gjennomtenkte materialvalg og detaljer
- Eksklusivt kjøkken fra Poliform Varenna (Expo-Nova)
- To delikate designbad
- Peis i stue
- 3 balkonger
- Lydhimling med lydbøyler og isolasjon i alle rom
- Mulighet for garasje i nærområde
- Innvendig bod samt disponibel kjellerbod på 4 kvm
- Heisadkomst
- Etterspurt beliggenhet
- Fyring og varmtvann inkl.
Salgsoppgaven beskriver vesentlig og lovpålagt informasjon om eiendommen
Se komplett salgsoppgaveNyttige lenker
Nærområdet

PrivatMegleren Dyve & Partnere
Annonseinformasjon
| FINN-kode | 394112166 |
|---|---|
| Sist endret | 19. mars 2026 03:03 |
| Referanse | 159240931 |
Annonsene kan være mangelfulle i forhold til lovpålagt opplysningsplikt. Før bindende avtale inngås oppfordres interessenter til å innhente komplett informasjon fra meglerforetaket, selger eller utleier.




























