Bildegalleri

Velkommen til Mangelrødåsen 9B!
Solgt
Kvelde - Innflyttingsklar tomannsbolig - Romslig og innholdsrik - Fine solforhold - Ferdigstilt 2025
Prisantydning3 690 000 kr
Nøkkelinfo
- Boligtype
- Tomannsbolig
- Eieform
- Eier (Selveier)
- Soverom
- 3
- Internt bruksareal
- 129 m² (BRA-i)
- Bruksareal
- 134 m²
- Eksternt bruksareal
- 5 m² (BRA-e)
- Balkong/Terrasse
- 7 m² (TBA)
- Byggeår
- 2024
- Tomteareal
- 718 m² (eiet)
Fasiliteter
Barnevennlig
Balkong/Terrasse
Garasje/P-plass
Kabel-TV
Offentlig vann/kloakk
Ingen gjenboere
Turterreng
Sentralt
Bredbåndstilknytning
Moderne
Om boligen
Velkommen til Mangelrødåsen 9B!
Boligen er nå ferdigstilt og innflyttingsklar. Her får du en splitter ny tomannsbolig med sentral beliggenhet i Kvelde.
Boligen er ferdigstilt i 2025, så her er standarden meget god. Det er ekstremt lave omkostninger ved kjøp av nytt bygg.
Boligen har ca 65 kvm BRA i hver etasje og det er utebod i tillegg. Uteplass på 3 sider av huset.
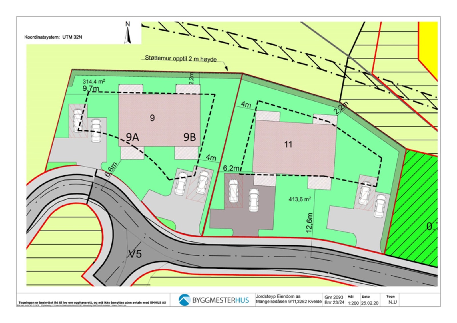
Mangelrødåsen 9B er 1 av 4 boliger, der 2 allerede er solgt og innflyttet. 9A er fortsatt under bygging.
Innhold:
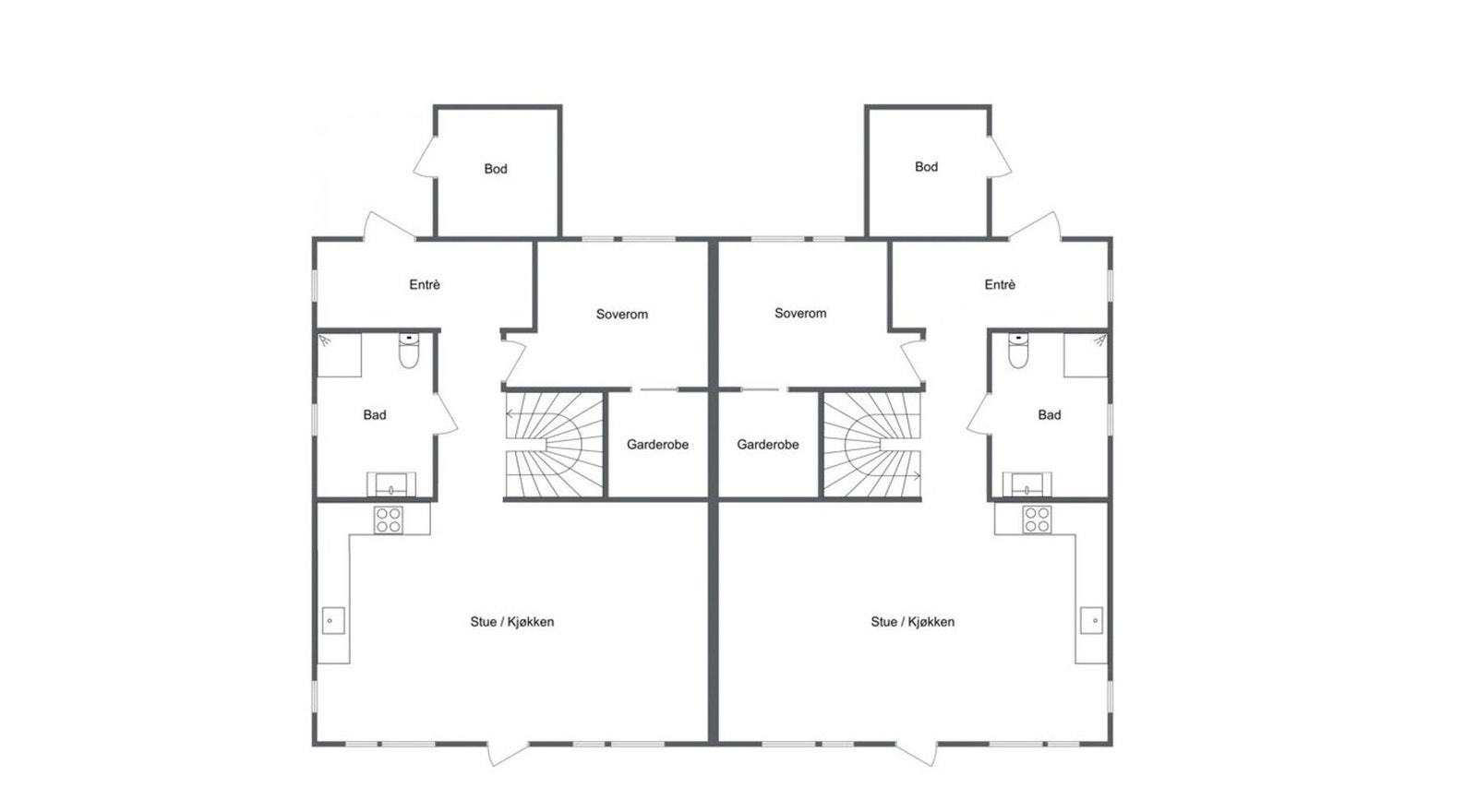
Hovedetasje:
-Stue/kjøkken 30,8 kvm
-Bad 6 kvm
-Gang 7,9 kvm
-Soverom 8,9 kvm
-Garderobe 2,9 kvm
-Entre 5,7 kvm
-Utebod 4,9 kvm
-Balkong 7,8 kvm
Underetasje:
-Stue 17,5 kvm
-Soverom 10,5 kvm
-Soverom 10,5 kvm
-Bad/vaskerom 8,4 kvm
-Bod 6,9 kvm
-Bod 5,5 kvm
Det er lagt vekt på funksjonalitet og maksimal utnyttelse av eiendommens beliggenhet med tanke på sol og utsiktsforhold.
Fra eiendommen er kort vei til skole, barnehager, turområder, butikk og diverse andre servicetilbud.
Boligen er nå ferdigstilt og innflyttingsklar. Her får du en splitter ny tomannsbolig med sentral beliggenhet i Kvelde.
Boligen er ferdigstilt i 2025, så her er standarden meget god. Det er ekstremt lave omkostninger ved kjøp av nytt bygg.
Boligen har ca 65 kvm BRA i hver etasje og det er utebod i tillegg. Uteplass på 3 sider av huset.
Mangelrødåsen 9B er 1 av 4 boliger, der 2 allerede er solgt og innflyttet. 9A er fortsatt under bygging.
Innhold:
Hovedetasje:
-Stue/kjøkken 30,8 kvm
-Bad 6 kvm
-Gang 7,9 kvm
-Soverom 8,9 kvm
-Garderobe 2,9 kvm
-Entre 5,7 kvm
-Utebod 4,9 kvm
-Balkong 7,8 kvm
Underetasje:
-Stue 17,5 kvm
-Soverom 10,5 kvm
-Soverom 10,5 kvm
-Bad/vaskerom 8,4 kvm
-Bod 6,9 kvm
-Bod 5,5 kvm
Det er lagt vekt på funksjonalitet og maksimal utnyttelse av eiendommens beliggenhet med tanke på sol og utsiktsforhold.
Fra eiendommen er kort vei til skole, barnehager, turområder, butikk og diverse andre servicetilbud.
NB: Knappen for å vise hele beskrivelsen har kun en visuell effekt.
NB: Knappen for å vise hele beskrivelsen har kun en visuell effekt.
Salgsoppgaven beskriver vesentlig og lovpålagt informasjon om eiendommen
Se komplett salgsoppgaveNyttige lenker
Nærområdet
EIE eiendomsmegling Larvik & Lågendalen
Annonsene kan være mangelfulle i forhold til lovpålagt opplysningsplikt. Før bindende avtale inngås oppfordres interessenter til å innhente komplett informasjon fra meglerforetaket, selger eller utleier.
























