Bildegalleri

Velkommen til Ulaveien 155 og 157!
Solgt
BUD INNKOMMET! Landlig og solrikt beliggende enebolig med utleiedel og verksted - Nyere kjøkken og bad - Sjønært - 5 so
Prisantydning5 950 000 kr
Nøkkelinfo
- Boligtype
- Enebolig
- Eieform
- Eier (Selveier)
- Soverom
- 5
- Internt bruksareal
- 314 m² (BRA-i)
- Bruksareal
- 314 m²
- Balkong/Terrasse
- 117 m² (TBA)
- Byggeår
- 2001
- Energimerking
- C - Rød
- Rom
- 8
- Tomteareal
- 1 974 m² (eiet)
Fasiliteter
Balkong/Terrasse
Barnevennlig
Hage
Peis/Ildsted
Rolig
Utsikt
Turterreng
Om boligen
Flott eiendom mellom Klåstad og Ula i fantastiske omgivelser! Her får du en sjarmerende og flott enebolig over to plan, et frittliggende anneks, samt solrike uteområder.
- Eneboligen ble oppført i 2001 163 kvm BRA-i
- Nytt kjøkken fra Strai (2022)
- Renovert bad i 1. etasje (2021, utført av fagfolk)
- 5 soverom
- Varmepumpe (2019) og elbil-lader (2023)
- Anneks/verksted er på 151 kvm BRA-i med kjøkken, stue, bad, soverom, verksted og boder.
- Leieinntekter
- Stor solrik tomt på 1.974 kvm
- Asfaltert gårdsplass (2021)
- Flotte uteområder
- Ikke boplikt!
Her bor du landlig, usjenert og solrikt, med kort vei til flotte kystområder som Ula, Kjerringvik og Eftang. En eiendom med mange muligheter enten for familien, som fritidsbolig eller med utleiepotensial!
- Eneboligen ble oppført i 2001 163 kvm BRA-i
- Nytt kjøkken fra Strai (2022)
- Renovert bad i 1. etasje (2021, utført av fagfolk)
- 5 soverom
- Varmepumpe (2019) og elbil-lader (2023)
- Anneks/verksted er på 151 kvm BRA-i med kjøkken, stue, bad, soverom, verksted og boder.
- Leieinntekter
- Stor solrik tomt på 1.974 kvm
- Asfaltert gårdsplass (2021)
- Flotte uteområder
- Ikke boplikt!
Her bor du landlig, usjenert og solrikt, med kort vei til flotte kystområder som Ula, Kjerringvik og Eftang. En eiendom med mange muligheter enten for familien, som fritidsbolig eller med utleiepotensial!
NB: Knappen for å vise hele beskrivelsen har kun en visuell effekt.
NB: Knappen for å vise hele beskrivelsen har kun en visuell effekt.
Salgsoppgaven beskriver vesentlig og lovpålagt informasjon om eiendommen
Se komplett salgsoppgaveNyttige lenker
Nærområdet
Krogsveen Sandefjord
Verdien av en god megler.
Annonseinformasjon
| FINN-kode | 393653086 |
|---|---|
| Sist endret | 10. apr. 2025 20:59 |
| Referanse | KR22.2527 |
Annonsene kan være mangelfulle i forhold til lovpålagt opplysningsplikt. Før bindende avtale inngås oppfordres interessenter til å innhente komplett informasjon fra meglerforetaket, selger eller utleier.





















![Lekkert bad med store vindusflater som retter ut mot jordene. Usjenert og flott. [ Terrassedøren på badet er ikke i bruk, da det ikke er montert terrasse utenfor. ] Galleribilde](https://images.finncdn.no/dynamic/1600w/2025/3/vertical-2/20/6/393/653/086_1466da8e-eb6a-4a7d-93fc-c5522559e509.jpg)




![Det er tre soverom i 2.etasje. [ soverom 2 ] Galleribilde](https://images.finncdn.no/dynamic/1600w/2025/3/vertical-2/20/6/393/653/086_9e6a2b9d-375a-4f40-aa03-5a767ab6eee3.jpg)








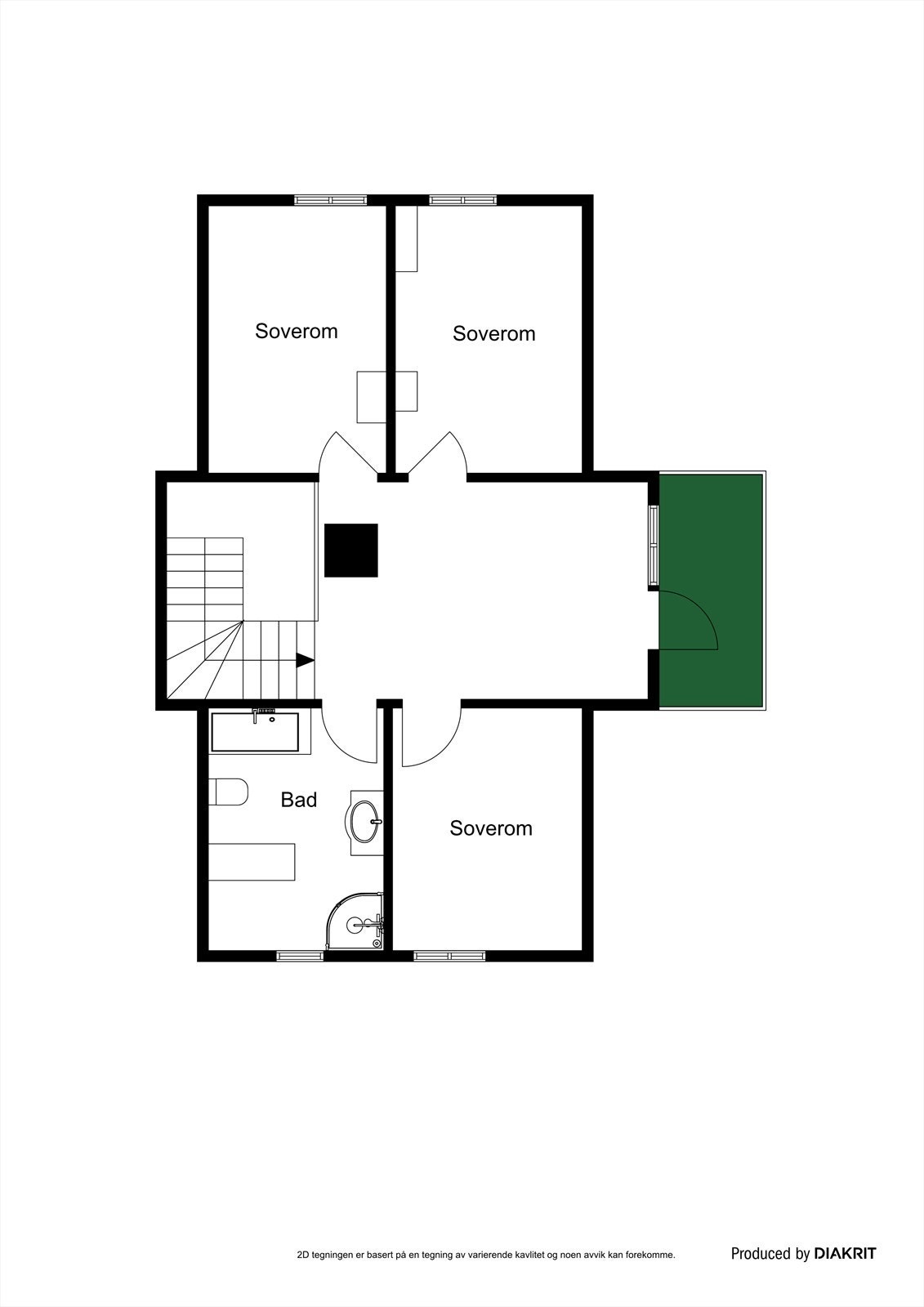
![Plantegning 2.etasje anneks [ soverommet er ikke godkjent til varig opphold, og er heller ikke søkt om hos kommunen ] Galleribilde](https://images.finncdn.no/dynamic/1600w/2025/3/vertical-2/20/6/393/653/086_b6ef223e-cf92-4987-b72e-a35fb1deceef.jpg)


![Innredet rom i 2.etasje på annekset [ rommet er ikke godkjent til varig opphold og er heller ikke søkt/godkjent hos kommunen ] Galleribilde](https://images.finncdn.no/dynamic/1600w/2025/3/vertical-2/20/6/393/653/086_e0c371f5-6710-4edb-8941-085536f99c23.jpg)








