Bildegalleri

Bergheim Utkik
10
Prosjektets status
Planlegging
2025
Salgsstart
2025
Byggestart
2026
Overtakelse
2027
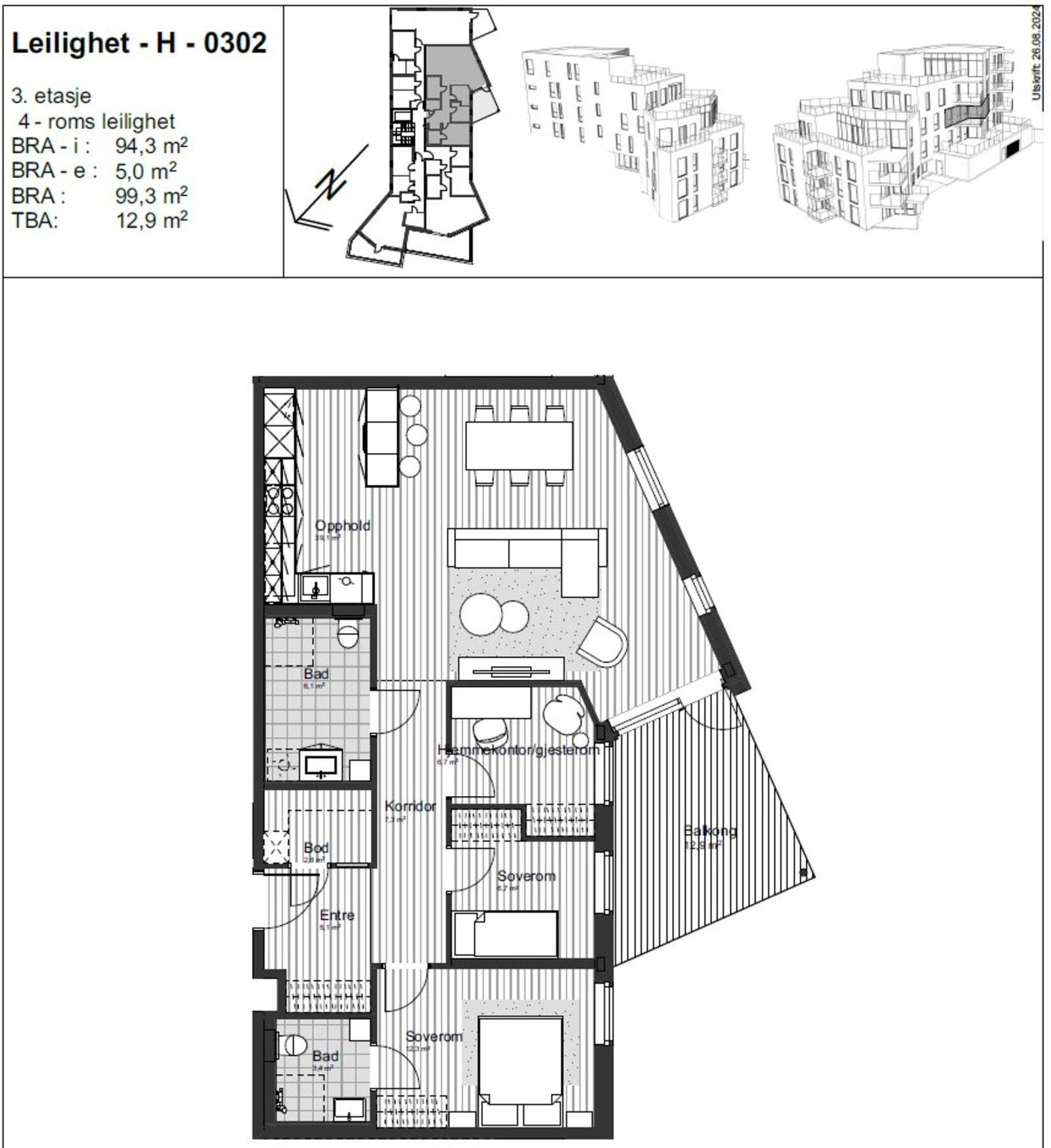
Nøkkelinfo
- Boligtype
- Leilighet
- Etasje
- 3
- Soverom
- 3
- Internt bruksareal
- 94 m² (BRA-i)
- Bruksareal
- 99 m²
- Eksternt bruksareal
- 5 m² (BRA-e)
- Balkong/Terrasse
- 12 m² (TBA)
Beskrivelse
Beliggenhet
Med alt innen rekkevidde.
Bergheim Utkik ligger midt i mellom Dragvoll og Moholt i et etablert og ettertraktet nabolag. Her er det kort vei til byens fasiliteter og vakre Estenstadmarka rett utenfor inngangsdøren, som byr på flotte turmuligheter og rekreasjon året rundt.
Moholt med servicetilbud som butikk, apotek, frisør, bensinstasjon, treningssenter m.m når du innen få minutters gangavstand.
Med bussholdeplass rett utenfor døren og rask tilgang til E6, er det enkelt å komme seg rundt, enten du skal til sentrum, på hytta, eller til flyplassen for å oppleve nye destinasjoner.
Fellesgjeld og lånebetingelser
Andel fellesgjeld
Gjeld kr 0,-
Forbehold
Det tas forbehold om trykkfeil i salgsoppgaven.
Salgsoppgaven er ufullstendig uten alle vedlegg.
Nærområdet
Nylander & Partners AS
Annonseinformasjon
| FINN-kode | 393517130 |
|---|---|
| Sist endret | 17. des. 2025 08:45 |
| Referanse | 32410243 |
Annonsene kan være mangelfulle i forhold til lovpålagt opplysningsplikt. Før bindende avtale inngås oppfordres interessenter til å innhente komplett informasjon fra meglerforetaket, selger eller utleier.


