Bildegalleri

Velkommen til Mannsverk 59 presentert av Fana Sparebank Eiendom v/Isaac Dahlin
Solgt
Landås
Lekker 2-roms med sentral beliggenhet | Delikat kjøkken og bad | Sentralvarme/varmtvann inkl. | Innglasset altan
Prisantydning2 990 000 kr
Nøkkelinfo
- Boligtype
- Leilighet
- Eieform
- Aksje
- Soverom
- 1
- Internt bruksareal
- 57 m² (BRA-i)
- Bruksareal
- 77 m²
- Eksternt bruksareal
- 2 m² (BRA-e)
- Innglasset balkong
- 18 m² (BRA-b)
- Balkong/Terrasse
- 4 m² (TBA)
- Etasje
- 3
- Byggeår
- 1958
- Energimerking
- G - Rød
- Rom
- 2
- Tomteareal
- 48 704 m²
Fasiliteter
Balkong/Terrasse
Barnevennlig
Bredbåndstilknytning
Kjæledyr tillatt
Ingen gjenboere
Offentlig vann/kloakk
Sentralt
Om boligen
Leiligheten har en sentral og god beliggenhet på Landås. Alt av servicetilbud er innenfor gangavstand takket være Sletten Senter. Her finner vi også bybanetrase. Nærhet til gode bussforbindelser og gåavstand til Haukeland universitetssykehus. På søndager anbefaler en tur innom det nye bakeriet "Eltekroken" 2 min gange unna.
Høydepunkt
- Lekkert kjøkken med integrerte hvitevarer
- Badet har nyere rør i rør system, varmekabler på gulv og baderomsplater på vegg
- Mye inkludert i felleskost | Tv og internett (grunnpakke) | Sentralvarme
- Utmerket vestvendt innglasset altan
- Ingen dok.avgift!
- Ingen forkjøpsrett!
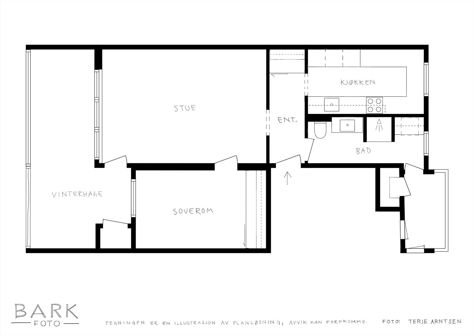
BRA-i: Gang: 4,7 m²Kjøkken: 9 m²Bad/Wc: 6,2m² Soverom: 12,3 m² Stue: 22,3 m²
BRA-e: Bod: 0,8 m² på felles balkong. Bod 0,7 m² på innglasset balkong.
Høydepunkt
- Lekkert kjøkken med integrerte hvitevarer
- Badet har nyere rør i rør system, varmekabler på gulv og baderomsplater på vegg
- Mye inkludert i felleskost | Tv og internett (grunnpakke) | Sentralvarme
- Utmerket vestvendt innglasset altan
- Ingen dok.avgift!
- Ingen forkjøpsrett!
BRA-i: Gang: 4,7 m²Kjøkken: 9 m²Bad/Wc: 6,2m² Soverom: 12,3 m² Stue: 22,3 m²
BRA-e: Bod: 0,8 m² på felles balkong. Bod 0,7 m² på innglasset balkong.
NB: Knappen for å vise hele beskrivelsen har kun en visuell effekt.
NB: Knappen for å vise hele beskrivelsen har kun en visuell effekt.
Salgsoppgaven beskriver vesentlig og lovpålagt informasjon om eiendommen
Se komplett salgsoppgaveNyttige lenker
Nærområdet
Fana Sparebank Eiendom
Annonseinformasjon
| FINN-kode | 393499310 |
|---|---|
| Sist endret | 24. feb. 2025 11:59 |
| Referanse | 01250027 |
Annonsene kan være mangelfulle i forhold til lovpålagt opplysningsplikt. Før bindende avtale inngås oppfordres interessenter til å innhente komplett informasjon fra meglerforetaket, selger eller utleier.











































