Bildegalleri

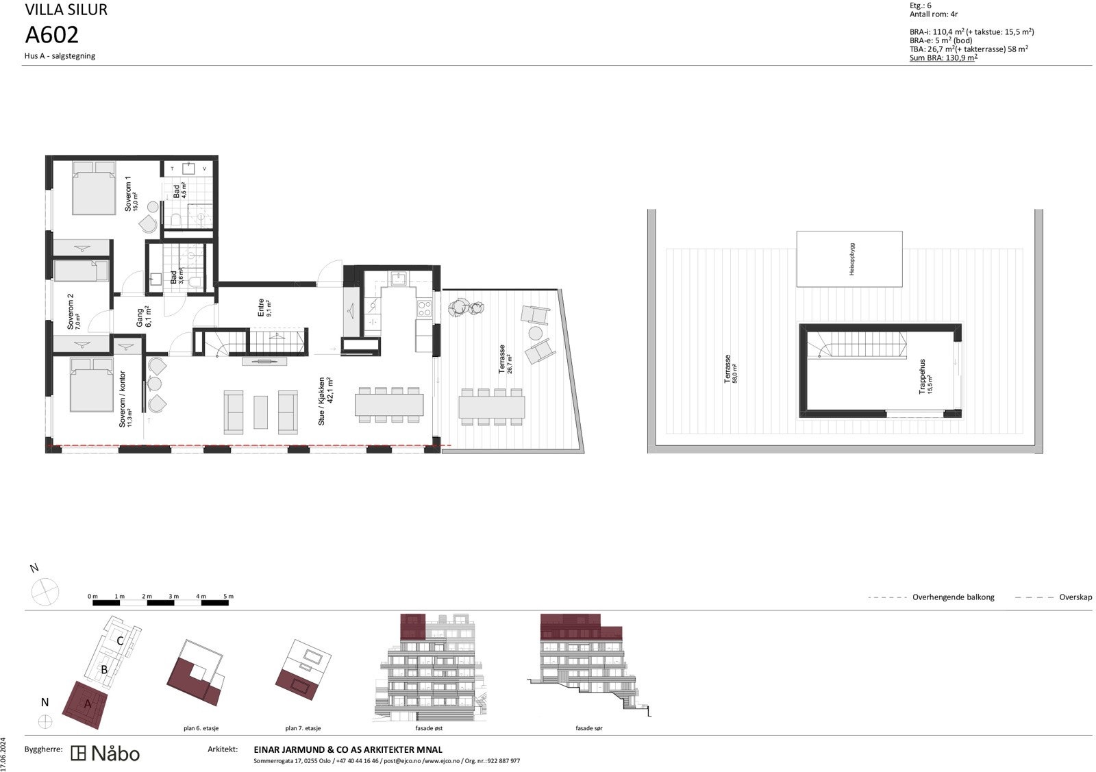
A602 Hus A - salgstegning rotert
Villa Silur
Villa Silur
Prosjektets status
Planlegging
- Gjennomført
Salgsstart
- Gjennomført
Byggestart
- Vedtatt
Overtakelse
- Sommeren 2027
Nøkkelinfo
- Boligtype
- Leilighet
- Etasje
- 6
- Soverom
- 3
- Rom
- 4
- Internt bruksareal
- 125 m² (BRA-i)
- Bruksareal
- 130 m²
- Eksternt bruksareal
- 5 m² (BRA-e)
- Balkong/Terrasse
- 84 m² (TBA)
Visning
Beskrivelse
Oppdragsansvarlig
PrivatMegleren Nyeboliger AS / Øyvind Meaas
Selger/Utbygger
Silurveien Invest AS
Betegnelse
Gnr. 28 Bnr. 540 i Oslo kommune
Arealer og fordeling per etasje
Totalt BRA 131 kvm består av:
- BRA-i (internt bruksareal): 125,90 kvm
- BRA-e (eksternt bruksareal): 5 kvm
- TBA (terrasse-/balkongareal) 84,70 kvm
VELKOMMEN TIL VILLA SILUR
53 leiligheter med karakter og kvalitet i Ullernåsen.
Med fokus på høy bo- og livskvalitet er Villa Silur en god anledning til å sikre deg en leilighet i et av Oslos mest attraktive områder - hvor natur møter by, og skaper hjem utenom det vanlige.
Prosjektet har nå solgt 65% og byggestart er vedtatt. Det betyr at prosjektet realiseres og at det er klart for innflytting sommeren 2027
Tre leilighetsbygg vil reise seg i terrenget i det hyggelige og veletablerte nabolaget. Byggene blir klassiske og moderne, kledd med vertikale terrakottaplater og horisontalt skjermtegl, et hjem som vil harmonere perfekt med bebyggelsen rundt og samtidig gi deg noe ingen andre i nabolaget har. Bygningene vil få en trappestruktur, hvor etasjene trekkes inn i høyden. Dette gir et lekent, mykere og mer organisk preg, også dette en spennende miks mellom det klassiske og det moderne.
Bo med det store ekstra
I Villa Silur finner du alt fra smarte og kompakte 2-roms leiligheter på 42 kvm til storslåtte 4-roms over to etasjer på 130 kvm. Hvor det store ekstra ligger i detaljene:
Høyt og luftig, gjennomtenkte planløsninger med store vindusflater som rammer inn utsikten.
Smarte, innovative soner som lounge, gjesteleilighet og takterrasser gir deg en følelse av hverdagsluksus og fleksibilitet som hever opplevelsen av hjemmet.
Her bygges livskvalitet - lys, luft og pusterom som gir deg frihet til å leve ekstra godt både innenfor og utenfor hjemmets vegger.
I Villa Silur lages mer enn gode boliger. Fellesområdene gjør at ditt nye hjem ikke begrenses av leilighetens fire vegger. Torget mellom bygg A og B vil være et sosialt samlingspunkt, møblert med plantekasser og sittegrupper. Kronen på verket blir en flott takterrasse, tilgjengelig for alle beboerne. Her blir det benker, pergola, grill og en utsikt selv den mest blaserte må kalle spektakulær! I tillegg vil alle ha glede av felles verksted, anretningskjøkken, mekkeområde for sykkel og gjesteleilighet.
Her vil du virkelig føle at byen ligger for dine føtter. Himmelen vil rett og slett virke mer vidstrakt sett fra Villa Silur!
Besøk prosjektets hjemmeside for boligvelger
Besøk hjemmesiden www.villasilur.no for boligvelger, salgsoppgave og prisoversikt.
LEILIGHETENE
Til tross for ulike størrelser, deler alle leilighetene mange av de samme kvalitetene;
God takhøyde på leilighetene. Utvalgte leiligheter i 1. etasje i hus A og B får takhøyde på 3,6 meter. Store vindusflater, lysavskjerming integrert i fasaden, flott, 1-stavs eikeparkett, delikate bad, romløsninger hvor skyvedører skaper gode siktlinjer, smarte løsninger for garderobeskap, heis rett ned til garasjen fra bygg A og B, samt felles takterrasse. Leilighetene leveres med vannbåren gulvvarme, i stue, kjøkken og gang. På bad og vaskerom leveres elektriske varmekabler og termostat med gulvføler.
Hver leilighet får en sportsbod i kjeller. Sportsbodene er ventilert og oppvarmet.
Villa Silur skal bli en bolig du aldri ønsker å flytte fra - og med så mange praktiske og smarte løsninger at du heller aldri trenger å gjøre det!
EN BELIGGENHET FORUNT DE FÆRRESTE
Alle som kjenner Oslo er kjent med Ullernåsen, et sted som klarer å kombinere tre kvaliteter du sjelden finner i samme setning:
Sentrumsnært, rolige omgivelser og fantastisk utsikt. Det er akkurat her du finner Villa Silur - midt imellom alt som er fint!
Å beskrive de lokale tilbudene du vil få i Villa Silur blir fort en teknisk øvelse - alt du og dine trenger er lett tilgjengelig. Her kan barn bruke føttene som fremkomstmiddel fra de begynner i barnehagen til de går ut av videregående. Den lokale Jokerbutikken ligger 200 meter unna, handlesenteret CC Vest og Røa Torg med bil. På Røa finner du også svømmehall og treningssenter. Ullernåsen T-banestasjon ligger like ved, og herfra er du på Majorstuen på under ti minutter.
Som beboer i Villa Silur får du et friluftstilbud nesten ingen andre bydeler i Oslo kan skilte med. Mærradalen ligger i gåavstand hjemmefra, et dalføre som strekker seg fra Sørkedalsveien og ned til Ullernchausséen. Her er det bekk, variert flora og fugleliv - en perle du kan kalle din egen. Og når naturen lokker, er Bogstadvannet, Sørkedalen og Nordmarka en kort biltur unna.
Parkering / Garasje
Pris for parkeringsplass er kr 800 000 for enkeltplass og kr 1 300 000 for dobbelplass plassert etter hverandre. Ladestasjon for el-bil kan bestilles som tilvalg.
Det er et begrenset antall parkeringsplasser i prosjektet, men store leiligheter vil bli prioritert.
Andre faste løpende kostnader
Felleskostnader fra kr 3 530,- til kr 8 756,- /Mnd
Solgt ihht bustadoppføringsloven
Boligene selges i henhold til Bustadoppføringslova som regulerer kjøpers (forbrukers) rettigheter og plikter ved avtale om oppføring av bolig og kjøp av fast eiendom der bygningen ikke er fullført når avtalen inngås. Ved salg til aksjeselskap legges Avhendingslovens bestemmelser til grunn. For øvrig gjelder Lov om eierseksjoner for eierseksjonssameiet og driften av dette.
Garantier
Det stilles garantier i henhold til Bustadoppføringslovas bestemmelser. Garanti etter § 12 vil bli stilt i forbindelse med avtaleinngåelse. Garantien skal være pålydende 3% av kjøpesummen i byggetiden og 5% i 5 år etter overlevering av boligene til kjøper. Garanti etter § 47 forutsettes stilt om selger ønsker utbetalt forskudd/delinnbetaling/sluttoppgjør før hjemmelsovergang. Eventuelle påkrevde endringer av garantier ved eventuelle videresalg/transporter utføres ikke og bekostes ikke av selger.
Budgiving
Boligene selges til fastpris.
Alle bud/kjøpetilbud på eiendommen skal være skriftlig og sendes meglerforetaket pr. fax, mail, sms eller via vår "gi bud"-knapp på våre nettsider. Knappen finner du også på Privatmeglerens hjemmeside for prosjektet, se på den enkelte bolig.
Bud/kjøpetilbud må ikke ha kortere akseptfrist enn til kl. 12.00 første virkedag etter siste annonserte visning. Lørdag regnes ikke som virkedag. Bud/kjøpetilbud med kortere frist enn dette kan ikke formidles av megler. Nærmere info om budgiving finner du på egen side sammen med kjøpetilbud/budskjema.
Som budgiver hos Privatmegleren kan du kreve budjournal fremlagt så snart handel er gjennomført.
Innhold i budjournal er lovregulert, og innebærer at budgivere må akseptere at opplysninger om budet kan bli fremlagt for selger, kjøper og øvrige budgivere. Budgiver som ikke blir kjøper, kan kreve kopi av anonymisert budjournal.
Lov om hvitvasking
Megler er underlagt lov om hvitvasking som innebærer plikt til å melde ifra til Økokrim om mistenkelige transaksjoner
Nyttige lenker
Nærområdet

PrivatMegleren Nyeboliger Oslo
Silurveien Invest AS
Utbygger
Annonseinformasjon
| FINN-kode | 393490306 |
|---|---|
| Sist endret | 15. okt. 2025 06:07 |
| Referanse | 304240373 |
Annonsene kan være mangelfulle i forhold til lovpålagt opplysningsplikt. Før bindende avtale inngås oppfordres interessenter til å innhente komplett informasjon fra meglerforetaket, selger eller utleier.

