Bildegalleri

Solgt
Sundstredet
BO RETT PÅ BRYGGEKANTEN?? FRONTLEILIGHET - ende og topp. Vestvendt -flott utsikt - heis - garasje - veldrevet borettslag
Prisantydning3 590 000 kr
Nøkkelinfo
- Boligtype
- Leilighet
- Eieform
- Andel
- Soverom
- 1
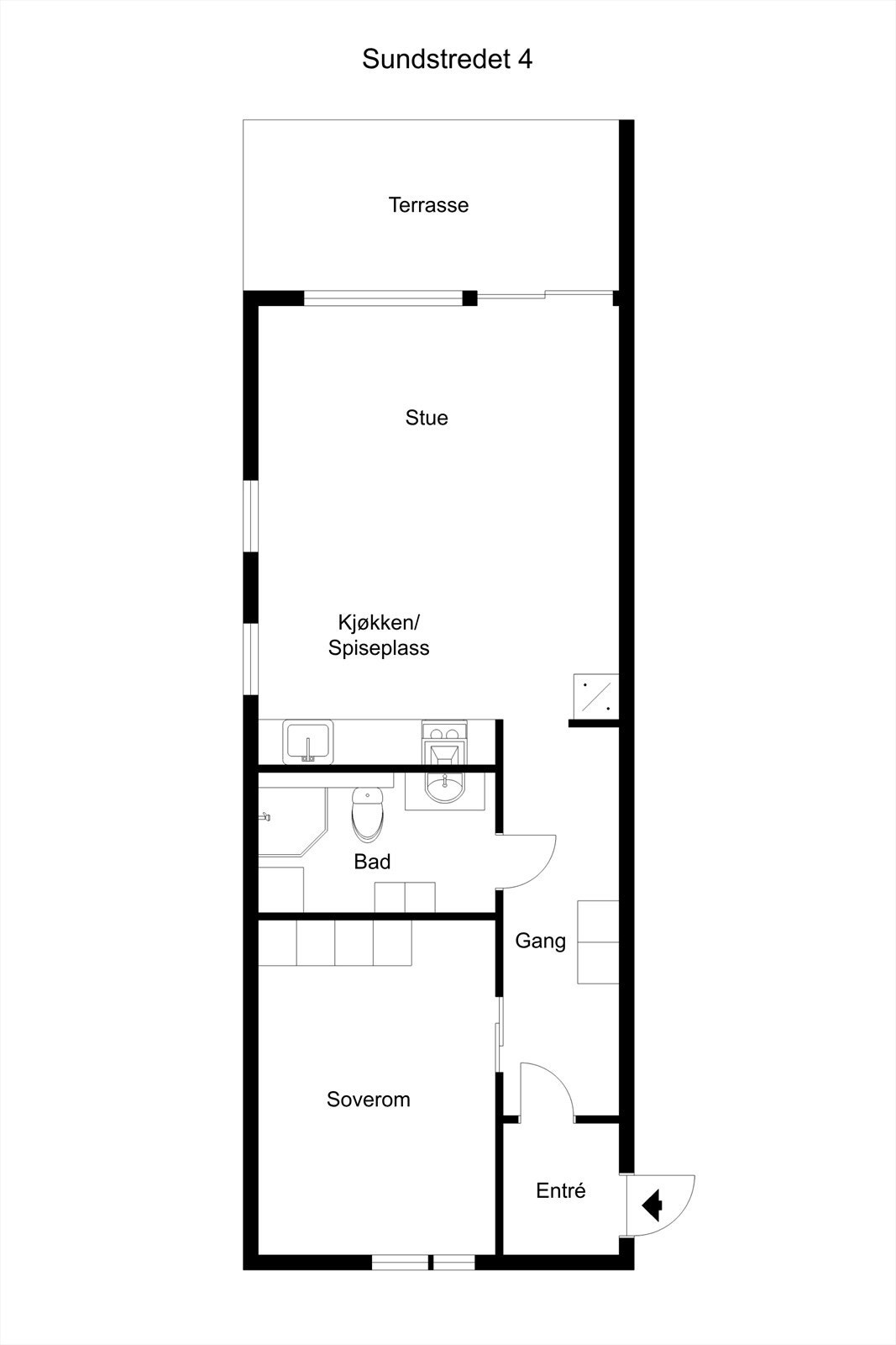
- Internt bruksareal
- 67 m² (BRA-i)
- Bruksareal
- 73 m²
- Eksternt bruksareal
- 6 m² (BRA-e)
- Balkong/Terrasse
- 9 m² (TBA)
- Etasje
- 4
- Byggeår
- 2007
- Energimerking
- E - Rød
- Rom
- 2
- Tomteareal
- 2 956 m² (eiet)
Fasiliteter
Balkong/Terrasse
Garasje/P-plass
Heis
Ingen gjenboere
Kabel-TV
Sentralt
Utsikt
Bademulighet
Fiskemulighet
Lademulighet
Om boligen
Sundstredet 441 ligger helt nede ved vannkanten i mossesundet og er vendt mot vest så man kan nyte både den flotte sjøutsikten og solnedganger fra leilighetens oppholdsrom. Like utenfor leiligheten er det gode muligheter for å ta seg et morgenbad. Sentral beliggenhet med kort avstand til alt av offentlig kommunikasjon og Moss sentrums fasiliteter.
Det følger med garasjeplass med el-bil lader i felles garasjeanlegg.
Det er oppført heis med kommunikasjon til alle etasjene.
Skjermet balkong med motorisert markise og side screen på ca. 9 kvm.
Borettslaget har IN-ordning. Varmtvann er inkludert i felleskostnadene.
Det følger med garasjeplass med el-bil lader i felles garasjeanlegg.
Det er oppført heis med kommunikasjon til alle etasjene.
Skjermet balkong med motorisert markise og side screen på ca. 9 kvm.
Borettslaget har IN-ordning. Varmtvann er inkludert i felleskostnadene.
NB: Knappen for å vise hele beskrivelsen har kun en visuell effekt.
NB: Knappen for å vise hele beskrivelsen har kun en visuell effekt.
Salgsoppgaven beskriver vesentlig og lovpålagt informasjon om eiendommen
Se komplett salgsoppgaveNyttige lenker
Nærområdet
GARANTI Eiendomsmegling Moss
Annonseinformasjon
| FINN-kode | 393455069 |
|---|---|
| Sist endret | 28. nov. 2025 09:01 |
| Referanse | GAR69.254 |
Annonsene kan være mangelfulle i forhold til lovpålagt opplysningsplikt. Før bindende avtale inngås oppfordres interessenter til å innhente komplett informasjon fra meglerforetaket, selger eller utleier.






























