Bildegalleri

Velkommen til Persbråtan 2!
Solgt
Huseby
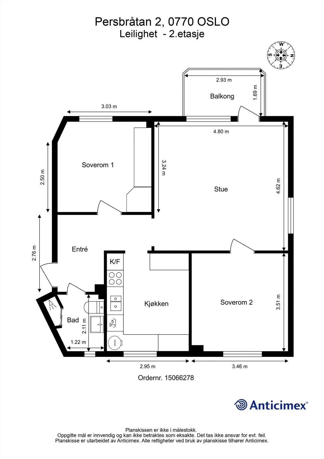
3-roms leilighet i 2.etasje med solrik balkong. Fyring og internett inkl. Ingen dok. avg. Moderniseringsbehov
Prisantydning4 900 000 kr
Nøkkelinfo
- Boligtype
- Leilighet
- Eieform
- Aksje
- Soverom
- 2
- Internt bruksareal
- 69 m² (BRA-i)
- Bruksareal
- 69 m²
- Balkong/Terrasse
- 5 m² (TBA)
- Etasje
- 2
- Byggeår
- 1956
- Energimerking
- G - Mørkegrønn
- Rom
- 3
- Tomteareal
- 35 937 m² (eiet)
Fasiliteter
Balkong/Terrasse
Barnevennlig
Bredbåndstilknytning
Fellesvaskeri
Kabel-TV
Offentlig vann/kloakk
Rolig
Sentralt
Lademulighet
Om boligen
Velkommen til Persbråtan 2!
Romslig 3-romsleilighet med god planløsning og moderniseringsbehov.
Romslig 3-romsleilighet med god planløsning og moderniseringsbehov.
- Kabel-TV, fibernett og fyring inkl. i felleskostnader
- Separat kjøkken i eget rom
- To romslige kjellerboder på 6 kvm hver.
- Parkering med oblat for beboere (22 ladeplasser)
- To gode soverom, der det ene er innredet med stort garderobeskap
- Store grøntarealer med lekeapparater, grillplass og sittegrupper
- Kun 10 min gange til T-bane som bruker 10 min til Majorstuen
- Blindgate m/ lite gjennomgangstrafikk og nærhet til marka, Røa, treningssenter og alt du trenger i hverdagen!
NB: Knappen for å vise hele beskrivelsen har kun en visuell effekt.
NB: Knappen for å vise hele beskrivelsen har kun en visuell effekt.
Salgsoppgaven beskriver vesentlig og lovpålagt informasjon om eiendommen
Se komplett salgsoppgaveNyttige lenker
Nærområdet
Krogsveen Grefsen
Velkommen til en enklere boligreise.
Annonseinformasjon
| FINN-kode | 392534489 |
|---|---|
| Sist endret | 22. feb. 2025 12:59 |
| Referanse | KR41.254 |
Annonsene kan være mangelfulle i forhold til lovpålagt opplysningsplikt. Før bindende avtale inngås oppfordres interessenter til å innhente komplett informasjon fra meglerforetaket, selger eller utleier.


























