Bildegalleri

Beinestadheia 131-151
Beinestadheia 143
Prisantydning5 498 000 kr
Kort om prosjektet
Hus 104, 105, 106 og 107 er under bygging.
Prosjektets status
Planlegging
Ferdig
Salgsstart
Salg pågår
Byggestart
Byggestart igangsatt deler av prosjektet
Overtakelse
Etter avtale
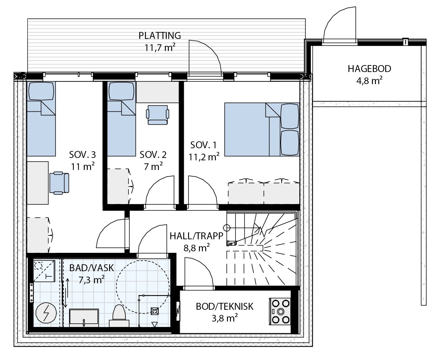
Nøkkelinfo
- Boligtype
- Tomannsbolig
- Soverom
- 3
- Rom
- 4
- Internt bruksareal
- 110 m² (BRA-i)
- Bruksareal
- 120 m²
- Eksternt bruksareal
- 10 m² (BRA-e)
- Balkong/Terrasse
- 19 m² (TBA)
- Energimerking
- C - Lysegrønn
Visning
Ta kontakt for å avtale visning.Nærområdet
OBOS Block Watne AS
OBOS Block Watne
Utbygger
Annonsene kan være mangelfulle i forhold til lovpålagt opplysningsplikt. Før bindende avtale inngås oppfordres interessenter til å innhente komplett informasjon fra meglerforetaket, selger eller utleier.


