Bildegalleri

TRYSIL - Smakfull hytte med høy standard i Bjønnåsen. Gedigen utsikt mot Trysilfjellet.
- Omkostninger
- 200 850 kr
- Totalpris
- 7 580 850 kr
Nøkkelinfo
- Beliggenhet
- På fjellet
- Boligtype
- Hytte
- Eieform
- Eier (Selveier)
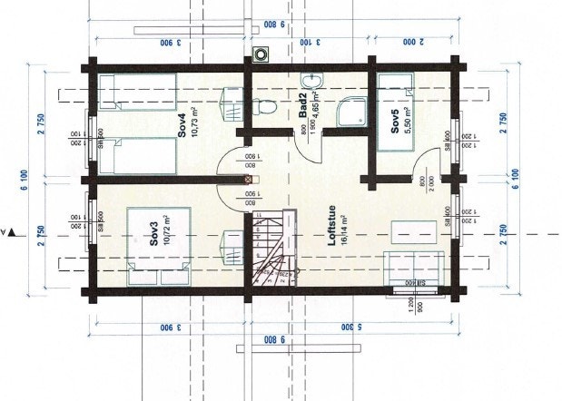
- Internt bruksareal
- 162 m² (BRA-i)
- Bruksareal
- 176 m²
- Eksternt bruksareal
- 14 m² (BRA-e)
- Balkong/Terrasse
- 64 m² (TBA)
- Tomteareal
- 1 035 m² (eiet)
- Byggeår
- 2016
- Soverom
- 5
- Rom
- 6
Fasiliteter
Visning
Husk å lese komplett salgsoppgave før visning. Bestill komplett, utskriftsvennlig salgsoppgave.
Om boligen
Velkommen til Bjønnåsen Hyttegrend 89:
Meget smakfull hytte med høy standard i Bjønnåsen. Hytta ligger idyllisk til med storslagen utsikt mot Trysilfjellet. Eiendommen er påkostet med de nyeste tekniske løsninger, godt håndverk og delikat interiør. Hytta er på to plan og består av entre, teknisk rom, stue, kjøkken/spisestue, vaskerom, bad og to soverom i 1. etasje. I 2. etasje har du gang/trapperom, loftstue, tre soverom og bad. Vi nevner kort: Smakfullt innredet, spennende og gjennomførte detaljer, møbelsnekret/ håndlagede soveromsmøbler, Sonos-anlegg inne og ute, Grundig og Miele hvitevarer. 2 gasspeiser, ski-stall, ("gapahuk") med port. Skiferlagt gårdsplass og solvendte terrasser. Plate for garasje er ferdigstøpt. Hytta er bygget i 2016.
Vi tror nok du finner "Lodge-følelsen" her!
Ta kontakt med megler for komplett informasjon
Nyttige lenker
Nærområdet
Advokat Jostein Morønning
Annonseinformasjon
| FINN-kode | 392217698 |
|---|---|
| Sist endret | 04. mars 2026 03:21 |
| Referanse | 87240156 |
Annonsene kan være mangelfulle i forhold til lovpålagt opplysningsplikt. Før bindende avtale inngås oppfordres interessenter til å innhente komplett informasjon fra meglerforetaket, selger eller utleier.




























































