Bildegalleri

Velkommen til Elise Kolstads veg 25 og 27, presentert av Tinholt Eiendomsmegling.
Hel vertikaldelt tomannsbolig fra 2013 | Investeringsobjekt |Solrike uteplasser | Nydelig utsikt | Barnevennlig og rolig
Nøkkelinfo
- Boligtype
- Tomannsbolig
- Eieform
- Eier (Selveier)
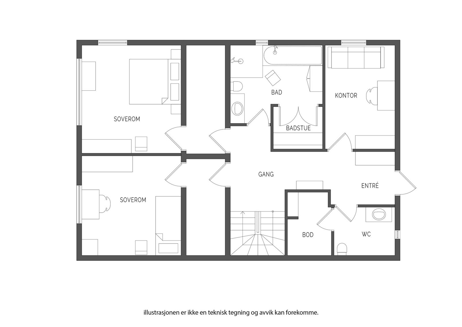
- Soverom
- 6
- Internt bruksareal
- 316 m² (BRA-i)
- Bruksareal
- 384 m²
- Eksternt bruksareal
- 68 m² (BRA-e)
- Byggeår
- 2013
- Energimerking
- B - Oransje
- Rom
- 8
- Tomteareal
- 1 078 m² (eiet)
Fasiliteter
Om boligen
K V A L I T E T E R:
- Hel vertikaldelt tomannsbolig på et høydedrag
- To enheter - hver med egen dobbelgarasje og leddport
- Solrike uteplasser
- Balansert ventilasjon og peisovn
- TEK10
- Tre soverom, to bad og vaskerom i hver enhet
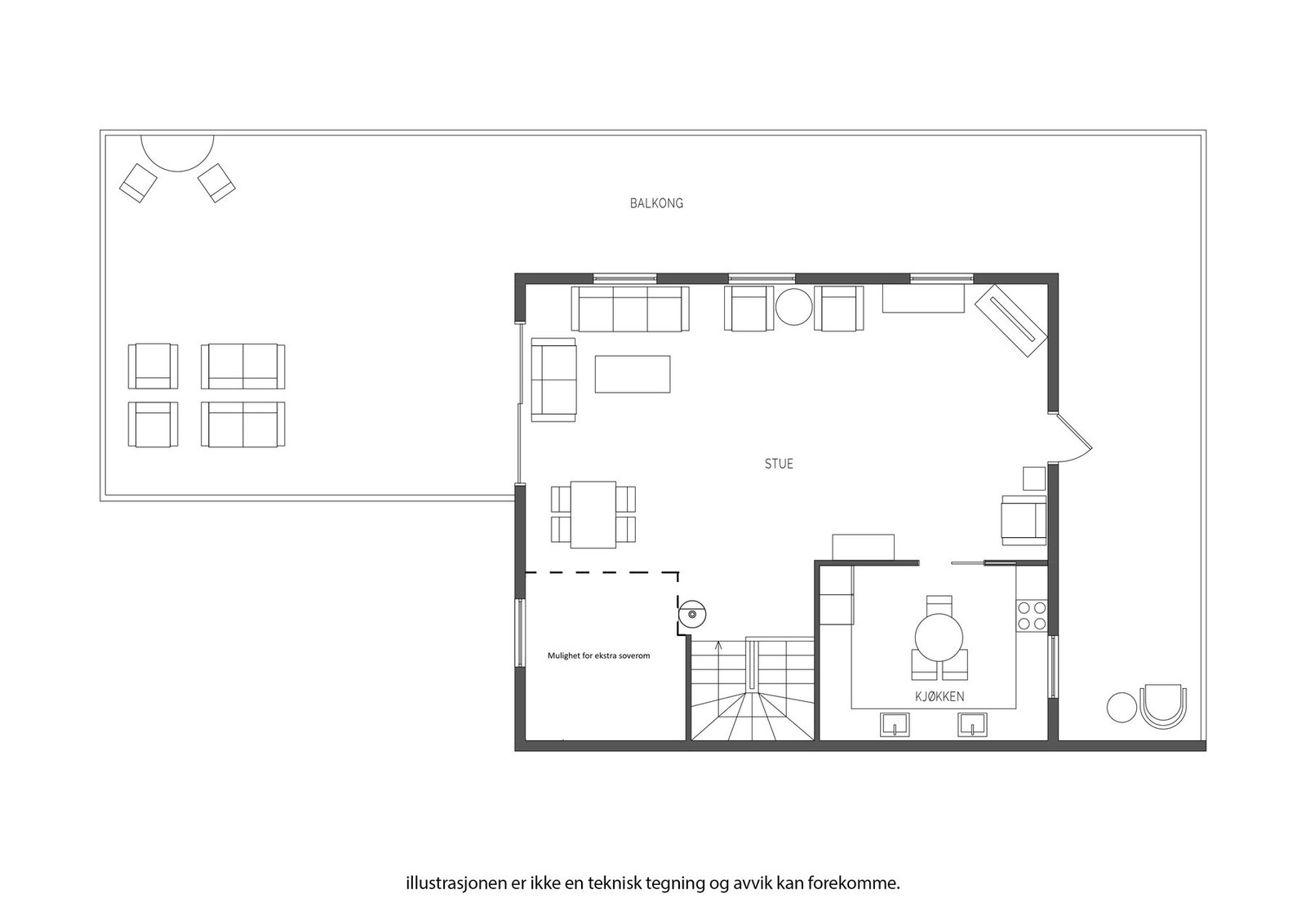
- Mulighet for fire soverom i hver bolig
- Varierte friluftsområder, sommer som vinter, i nærområdene
- Kort vei til skoler, barnehager og Kiwi/Coop Extra
Salgsoppgaven beskriver vesentlig og lovpålagt informasjon om eiendommen
Se komplett salgsoppgaveNærområdet
TINHOLT Eiendomsmegling
Prisstatistikk
Elise Kolstads veg 25 og 27
på annonsen
prisantydning per kvadratmeter
Prisfordeling
Pris per m² ligger 773 kr under snittet for tomannsboliger i Nannestad.
Grafen viser antall tomannsboliger solgt i Nannestad siste året fordelt på pris per m² - totalt 44 tomannsboliger
Antall boliger
Kvadratmeterpris tilsvarer prisantydning pluss fellesgjeld per kvadratmeter (p-rom eller BRA-i). Prisene i grafen er avrundet til nærmeste 1000 kr.
Annonseinformasjon
| FINN-kode | 392117213 |
|---|---|
| Sist endret | 30. juni 2025 12:54 |
| Referanse | 201250033 |
Annonsene kan være mangelfulle i forhold til lovpålagt opplysningsplikt. Før bindende avtale inngås oppfordres interessenter til å innhente komplett informasjon fra meglerforetaket, selger eller utleier.








































