Bildegalleri

Plantegning

NYE WOXEN GÅRD på Røa

Nye Woxen gård

Sørkedalsveien 307

Prisantydning25 000 000 kr
Totalpris
25 124 350 kr
Omkostninger
124 350 kr
Felleskost/mnd.
3 325 kr
  • Planlegging

    Utarbeidelse av salgsmateriell

  • Salgsstart

    2. kvartal 2024

  • Byggestart

    2. kvartal 2024

  • Overtakelse

    1. kvartal 2026

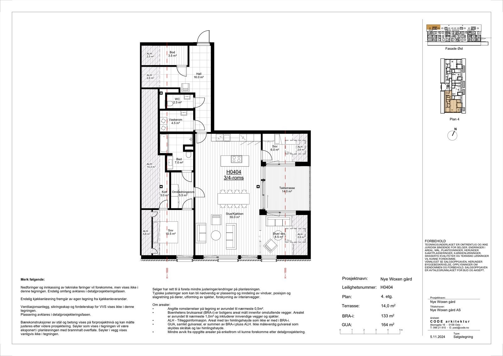
Nøkkelinfo

Boligtype
Leilighet
Etasje
4
Soverom
2
Rom
3
Bruksareal
133 m²

Les mer om bruksareal her

Fasiliteter

Balkong/Terrasse
Bredbåndstilknytning
Garasje/P-plass
Heis
Kabel-TV
Utsikt
Turterreng

Visning

Kontakt megler for et uforpliktende møte om prosjektet.
Visningspåmelding

Beskrivelse

Parkering

Garasjeplasser fordeles også iht. den enkelte kjøpers avtale med selger om kjøp av plass/er. Utendørs blir det etablert felles gjesteparkering, nord for leilighetsbygget, hvorav en plass er reservert naboeiendommen gnr. 27 bnr. 2, som også har rett til å benytte ledig gjesteparkering (se tinglyst avtale).

Oppvarming

Vannbåren gulvvarme blir hovedoppvarmingskilde i leilighetene, i alle rom med unntak av boder. Energien vil komme fra et felles varmepumpeanlegg og borehull i fjell. På generelt grunnlag tas det forbehold om godkjenning av boring av energibrønner, alternativt blir det et anlegg basert på «luft til vann».

Leiligheter nr. 104, 207, 208, 307, 308, 401, 402, 403 og 404 får gasspeis av type Vision Line Superior 650F levert fra Peisselskabet. Gass fra felles nedgravd gasstank. Der hvor det er teknisk mulig kan kjøpere, som tilvalg, bestille opplegg til gassuttak for gassgrill på terrasser/verandaer/uteplasser.

Ansvarlig megler

Stian Pøhner

Nærområdet

Annonseinformasjon

FINN-kode391409890
Sist endret16. des. 2025 12:26
Referanse14-0688/24

Rapporter annonse

Annonsene kan være mangelfulle i forhold til lovpålagt opplysningsplikt. Før bindende avtale inngås oppfordres interessenter til å innhente komplett informasjon fra meglerforetaket, selger eller utleier.