Bildegalleri

Eiendomsmegler1 Råholt v/Jonas Lundby har gleden av å presentere Helge Neumanns veg 6B!
Eidsvoll
Meget lekker bolig meget sentralt i Eidsvoll | 2 godkjente utleiedeler | Dobbelgarasje | Fantastisk uteplass med basseng
Prisantydning9 490 000 kr
Nøkkelinfo
- Boligtype
- Enebolig
- Eieform
- Eier (Selveier)
- Soverom
- 5
- Internt bruksareal
- 263 m² (BRA-i)
- Bruksareal
- 315 m²
- Eksternt bruksareal
- 52 m² (BRA-e)
- Balkong/Terrasse
- 36 m² (TBA)
- Byggeår
- 2001
- Energimerking
- D - Rød
- Tomteareal
- 1 140 m² (eiet)
Fasiliteter
Balkong/Terrasse
Garasje/P-plass
Hage
Offentlig vann/kloakk
Parkett
Peis/Ildsted
Sentralt
Visning
Ta kontakt hvis du ønsker å komme på visning. OBS! Alle våre visninger har påmelding. På denne måten sikrer vi at megler har god oversikt og tid til å imøtekomme alle interessenter. Meld deg på visning ved å trykke på lenken visningspåmelding. Passer ikke tidspunktet, ta kontakt med megler og avtal tid for privatvisning.
VisningspåmeldingOm boligen
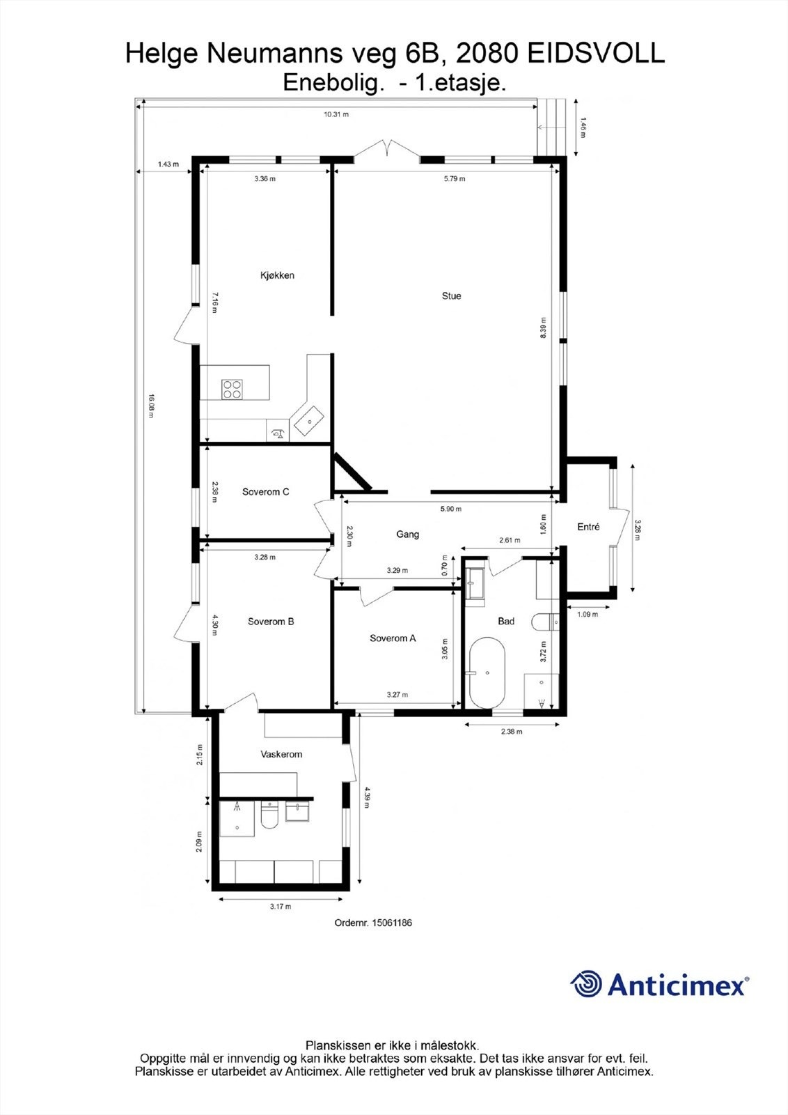
Eiendomsmegler 1 v/Jonas Lundby har den store æren av å presentere Helge Neumanns veg 6B - er en meget tiltalende, innholdsrik og særpreget familievilla beliggende sentralt i Eidsvoll kommune. Boligen går over to plan og har en gjennomgående god planløsning. Hovedetasjen (1. Etasje) byr på et flott inngangsparti, stort separat kjøkken og en romslig stue. Videre har hovedetasjen et rålekkert bad og tre gode soverom. Samt eget vaskerom.
I underetasjen finner du to separate, godkjente utleieleiligheter. Disse byr på gode, skattefrie leieinntekter.
Eiendommen har praktfulle og pent opparbeidede uteområder med basseng, gressplen og en romslig hagestue. Parkering i dobbelgarasje med varmepumpe installert.
Velkommen til en hyggelig visning!
I underetasjen finner du to separate, godkjente utleieleiligheter. Disse byr på gode, skattefrie leieinntekter.
Eiendommen har praktfulle og pent opparbeidede uteområder med basseng, gressplen og en romslig hagestue. Parkering i dobbelgarasje med varmepumpe installert.
Velkommen til en hyggelig visning!
NB: Knappen for å vise hele beskrivelsen har kun en visuell effekt.
NB: Knappen for å vise hele beskrivelsen har kun en visuell effekt.
Salgsoppgaven beskriver vesentlig og lovpålagt informasjon om eiendommen
Se komplett salgsoppgaveNyttige lenker
Nærområdet
EiendomsMegler 1 Råholt
Vi loser deg trygt gjennom hele boligsalget
Annonseinformasjon
| FINN-kode | 391279836 |
|---|---|
| Sist endret | 08. jan. 2026 09:28 |
| Referanse | 6035260005 |
Annonsene kan være mangelfulle i forhold til lovpålagt opplysningsplikt. Før bindende avtale inngås oppfordres interessenter til å innhente komplett informasjon fra meglerforetaket, selger eller utleier.









































