Bildegalleri

Her har du en fin beliggenhet med utsikt og nærhet til Sandefjord sentrum
BUD INNKOMMET! Tomannsb m/nydelig beliggenhet og fantastisk by/fjordutsikt! Her kan du bo rimelig ved å leie ut 1. etg!
Nøkkelinfo
- Boligtype
- Tomannsbolig
- Eieform
- Eier (Selveier)
- Soverom
- 4
- Internt bruksareal
- 235 m² (BRA-i)
- Bruksareal
- 255 m²
- Eksternt bruksareal
- 20 m² (BRA-e)
- Balkong/Terrasse
- 8 m² (TBA)
- Byggeår
- 1937
- Energimerking
- G - Oransje
- Tomteareal
- 765 m² (eiet)
Om boligen
EIE eiendomsmegling ønsker velkommen til Øvre Lunden!
Perfekt bolig for deg som vil bo i 2. etg. og dekke deler av boligkostnadene ved å leie ut 1. etg.! (2. etg er ledig for ny eier, 1. etg. er utleid for kr 8950,-)
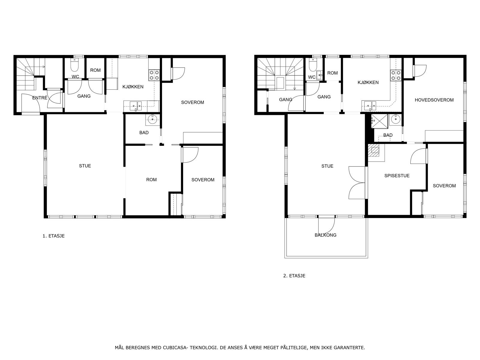
Hel tomannsbolig i et populært og bynært boligområde! Boligen har en meget attraktiv og sentral beliggenhet rett nord for byen med nydelig utsikt over bykjernen og videre ut mot Sandefjordsfjorden. Her er det gangavstand til det meste av hva Sandefjord kan tilby! Meget gode solforhold i et lite trafikkert og barnevennlig område. Boligen inneholder en leilighet i hver etg. med felles gang. Hver etg. inneholder kjøkken,2 soverom, 2 stuer, bad og wc. Kjeller. Eiet tomt, pent opparbeidet med busker og plen. Hagen innbyr til lek og moro for både store og små. Enkel garasje.
Velkommen
Salgsoppgaven beskriver vesentlig og lovpålagt informasjon om eiendommen
Se komplett salgsoppgaveNærområdet
EIE eiendomsmegling Sandefjord
Annonseinformasjon
| FINN-kode | 390847627 |
|---|---|
| Sist endret | 10. juni 2025 10:00 |
| Referanse | 87240153 |
Annonsene kan være mangelfulle i forhold til lovpålagt opplysningsplikt. Før bindende avtale inngås oppfordres interessenter til å innhente komplett informasjon fra meglerforetaket, selger eller utleier.













































