Bildegalleri

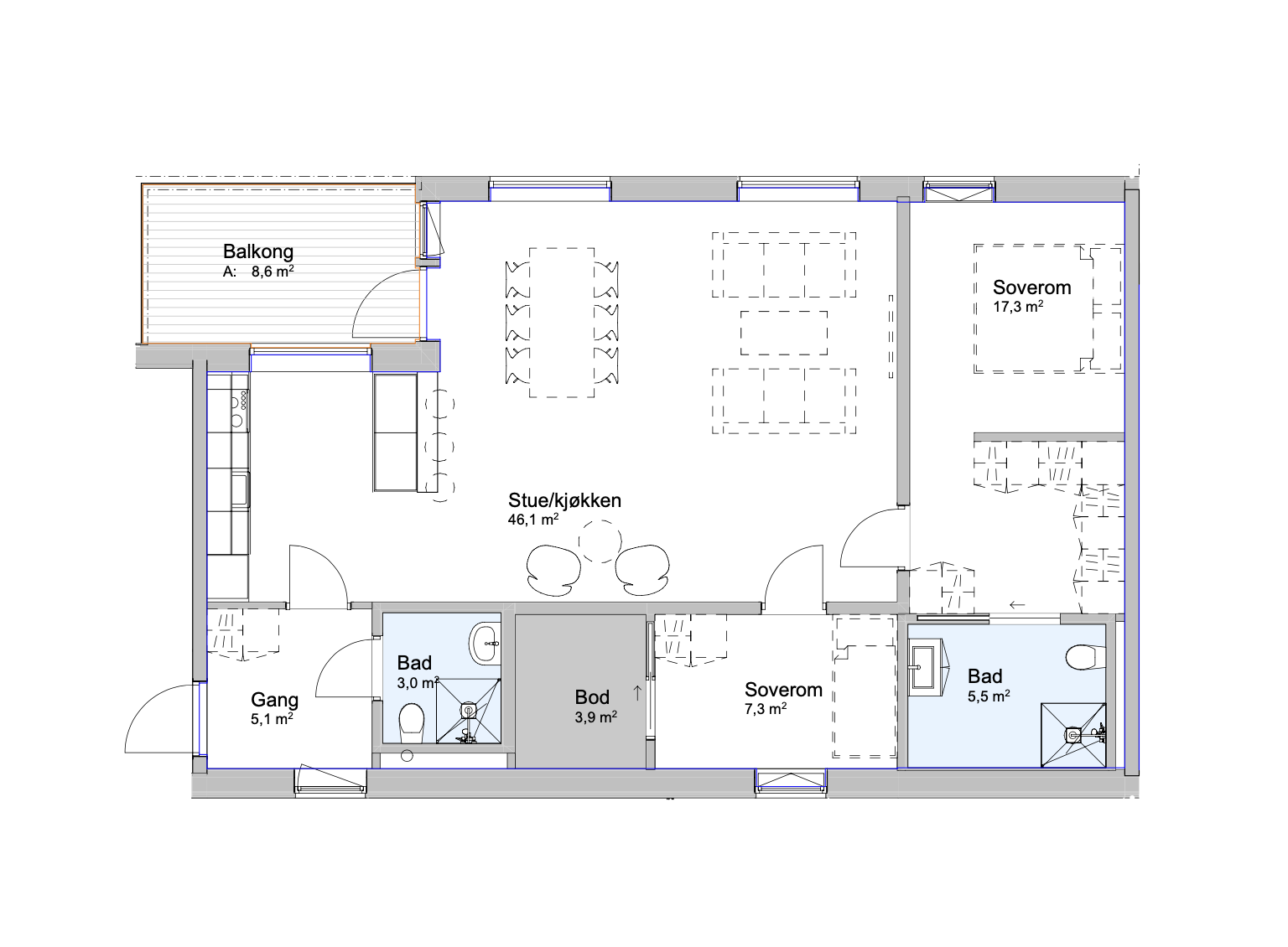
Illustrasjon av leilighet 403
Pynteneset trinn 2 - Bo nært sjøen og byen
Pynteneset trinn 2
Kort om prosjektet
For mer informasjon se www.pynteneset.no
Prosjektets status
Planlegging
Alle planer er godkjent
Salgsstart
Salget er i gang
Byggestart
Byggingen er i gang
Overtakelse
Leilighetene er klar for overtakelse
Nøkkelinfo
- Boligtype
- Leilighet
- Etasje
- 4
- Soverom
- 2
- Rom
- 3
- Internt bruksareal
- 95 m² (BRA-i)
- Bruksareal
- 100 m²
- Eksternt bruksareal
- 5 m² (BRA-e)
- Balkong/Terrasse
- 8 m² (TBA)
Fasiliteter
Visning
Ta kontakt for å avtale visning.Beskrivelse
Pynteneset
Pynteneset på Engøy er nå under utvikling. Gammel industri byttes ut med nye boliger, mennesker, båtplasser og friområder. Klasaskjeret skal forvandles til en badeøy.
Hele prosjektet består av over 200 enheter fordelt på fire delfelt. Det legges opp til arkitektur i tradisjonell sjøhusstil, med friske farger, moderne detaljer og smarte planløsninger.
Pynteneset blir mer enn bare et sted å bo – det er blir et fellesskap med en rekke velutstyrte fellesareal som legger til rette for trivsel, aktivitet og sosialt samvær på tvers av byggene.
Fellesrom for trinn 1 og trinn 2:
- «Naustet» For deg som liker å nyte det maritime livet, er det laget et eget maritimt delerom også kalt «Naustet» . Her finner du kajakker, kanoer, teiner, sup og annet maritimt utstyr. Det er også kjøpt inn to båter. Her er det enkelt å utforske sjøen og naturen om er rett utenfor døren.
- «Nabolagskafé» Det blir laget til en stor «nabolagskafé» i trinn 2. Dette rommet er perfekt for sosiale sammenkomster og arrangementer sammen med naboene eller privat. Rommet er utstyrt med kjøkken, spisebord, sofagruppe og TV.
- «Treningsrommet» For deg som liker å holde deg i form, kommer det også et treningsrom. Dørstokkmilen har aldri vært kortere!
- «Delrom» Det er jo egentlig ingen grunn til at alle skal eie hver sin hammer og drill. Eller takboks og telt, for den saks skyld. I delerommet kan du låne diverse utstyr som er til felles bruk.
- To gjestehybler som kan leies til privatbruk når familie eller venner trenger et sted å sove etter å ha besøkt deg.
Trinn 2 - B4
Pynteneset trinn 2 passer for deg som ønsker noe mer enn kun en leilighet. Trinn 2 er et unikt boligprosjekt som kombinerer privatliv og fellesskap i idylliske maritime omgivelser. Prosjektet er tegnet av Helen og Hard, og er skreddersydd for deg som er litt livsnyter, passe sprek og passe sosial.
Trinnet består av 28 leiligheter i varierte størrelser fra 43 – 129 kvm, skreddersydd for ulike behov og livsfaser.
Prosjektet består av følgende leilighetstyper:
4 leiligheter med ett soverom. Størrelse fra 43 – 44 kvm
18 leiligheter med to soverom. Fra 57 – 120 kvm
3 leiligheter med tre soverom. Fra 91 – 93 kvm
3 byhus med mulighet for 4 soverom.
I Trinn 2 tilbyr vi gode boliger hvor hver leilighet er nøye utformet for å gi optimal komfort og funksjonalitet. Samtidig som du får tilgang til et sosialt og innholdsrikt fellesskap med eksklusive fasiliteter kun for trinn 2:
- Stort allrom i 2. etasje som er innredet med kjøkken og spisebord. Dette kan brukes sammen med naboer, eller leies om du trenger større plass en kveld. Fra allrommet er det utgang til herlig terrasse på 65 kvm.
- I 3. etasje er det laget til en loftstue. Her blir det innredet med bokhyller, sittegrupper, tv og kaffestasjon. Det er store vindusflater og herlig utsikt. Tenk å sitte her en sen høstkveld med en god bok eller et glass vin?
- På toppen i 4. etasje er det laget til en takterrasse på 60 kvm. Det vil bli innredet med sittegrupper. Et fantastisk hyggelig sted å ta med familie og venner på fine sommerdager. Nyt utsikten og solen hele dagen.
Trinn 2 blir mer enn et sted å bo – det er et sted å leve, med fokus på samhold, kvalitet og maritim atmosfære.
Standard:
Kjøkken: Det leveres kjøkkeninnredning fra Sigdal.
Gulv Leiligheter: Trestavs eikeparkett i alle tørre rom
Bad: Helfliset baderom i 60*60 fliser
Innflytning: 4. kvartal 2025
Båtplass: Alle leilighetene har mulighet for å kjøpe båtplass. Pris kr. 130 000 pr. breddemeter
Parkering: Leiligheter over 80 kvm kan kjøpe parkering.
Borettslag
På Pynteneset B4 har vi valg borettslag som eierform. Et borettslag er et frittstående boligselskap hvor du som beboer eier en rett til å bo, derav bo-retts-lag. Det er borettslaget og dets styre som inngår avtaler på vegne av beboerne. Dette gjør at man får mange fordelaktige avtaler på alt fra forsikring og vedlikehold til tv og internett. Borettslaget blir regulert av borettslagsloven og borettslagets vedtekter.
Fellesgjeld
Se prislisten på nettsiden for informasjon om fellesgjeld og felleskostnader til hver enkelt leilighet.
Pynteneset trinn 2 har fått innvilget finansiering i Husbanken, det vil si at totalprisen består av en del innskudd(egenkapital) og en del felleslån. Felleslånet er avdragsfritt i 5 år fra første overtagelse og har en løpetid på 25 år. Renten på felleslånet er flytende.
Det er mulig å innfri hele eller deler av fellesgjelden etter innflytning, enten det er med egenkapital eller ved lån i egen bank.
Felleskostnader
Felleskostnader består av drifts- og vedlikeholdskostnader for borettslaget og kapitalkostnader knyttet til borettslagets felleslån i Husbanken. Felleskostnadene vil avhenge av rente- og avdragsvilkår på felleslånet samt hvilke tjenester borettslaget øker å ha utført i felles regi. Kostnadene fordels i henhold til bestemmelser i vedtektene. Endelig budsjett vil fastsettes av styre. Det tas forbehold om at kostnadene kun er stipulert og basert på erfaringstall.
Fellesutgiftene er estimert til kr 30,- per kvm per måned det første driftsåret, og skal dekke blant annet styre- og forretningsførerhonorar, drift, bygningsforsikring, vaktmestertjenester, vedlikehold av fellesområder og kommunale avgifter.
I tillegg kommer TV/internett og medlemskap i Heime.
Kostnader for varmtvann og oppvarming betales a-konto per leilighet per mnd.- Hver leilighet har egen måler, og det blir foretatt en årlig avregning.
For de andelene som har parkeringsplass i felles garasjeanlegg skal det i tillegg betales kr 200,- pr mnd i tillegg til de estimerte fellesutgiftene, for drift og vedlikehold.
Garantier
Det stilles garantier i henhold til Bustadoppføringslovas bestemmelser. Garanti §12 vil bli stilt i forbindelse med avtaleinngåelse. Garantien skal være pålydende 3% av kjøpesummen i byggetiden og 5% i 5 år etter overlevering av boligen til kjøper. Garanti etter §47 forutsettes stilt om selger ønsker utbetalt forskudd/delinnbetaling/sluttoppgjør før hjemmelsovergang- Eventuelle påkrevde endringer av garantier ved eventuelle videresalg/transporter utføres ikke og bekostes ikke av selger.
Budgivning
Boligene selges til fastpris. Alle kjøpetilbud skal være skriftlig og sendes selges per mail og sms.
Nærområdet
Ineo Eiendom As
INEO Eiendom og Øgreid Eiendom
Utbygger
Annonseinformasjon
| FINN-kode | 389893409 |
|---|---|
| Sist endret | 06. mars 2025 12:08 |
| Referanse | Pynteneset B4 |
Annonsene kan være mangelfulle i forhold til lovpålagt opplysningsplikt. Før bindende avtale inngås oppfordres interessenter til å innhente komplett informasjon fra meglerforetaket, selger eller utleier.

