Bildegalleri

Lagerareal - dagens situasjon, det meste av inventar, hyller og reoler er solgt.
Inaktiv
FURUSET: Rimelige kombinasjonlokaler med rampe og kjøreport. Mulighet for tilpasninger
Nøkkelinfo
- Areal
- 100 - 660 m²
- Overtakelse
- Omgående
Type lokale
Kontor
Lager/Logistikk
Kombinasjonslokaler
Fasiliteter
Garasje/P-plass
Heis
Kjøreport
Om eiendommen
Tilgjengelige kombinasjonlokaler i 1 og 2. etasje i Professor Birkelands vei 36. Lokalene har både lagringsmuligheter, 4 fine lyse kontorer samt er hyggelig kjøkken/bespisningsområde. Lokalet fremleies og kan tilbys til en rimelig pris.
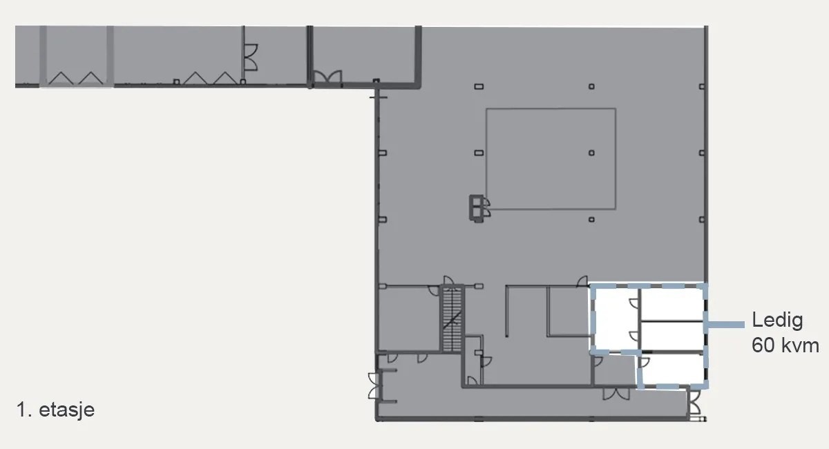
Lokalet har en samlet størrelse på rundt 660 kvm, der 600 kvm er i 2. etg og 60 kvm i 1. etg. Det er egen kjøreport i forbindelse med lokalet i 1.etg og en vareheis slik at du enkelt kan frakte gods fra lastebil inn i lagerlokalet. Det er også vindeltrapp mellom etasjene. Det er toaletter i både første og andre etasje.
Eiendommen lokalet befinner seg på er formet som en hestesko, som medfører enkel adkomst for større kjøretøy som kan passere gjennom uten å måtte bakke ut.
Lagerlokalet er åpent med god takhøyde. Hyller, reoler og inventar er i dag fjernet fra lokalet.
Lokalet har en samlet størrelse på rundt 660 kvm, der 600 kvm er i 2. etg og 60 kvm i 1. etg. Det er egen kjøreport i forbindelse med lokalet i 1.etg og en vareheis slik at du enkelt kan frakte gods fra lastebil inn i lagerlokalet. Det er også vindeltrapp mellom etasjene. Det er toaletter i både første og andre etasje.
Eiendommen lokalet befinner seg på er formet som en hestesko, som medfører enkel adkomst for større kjøretøy som kan passere gjennom uten å måtte bakke ut.
Lagerlokalet er åpent med god takhøyde. Hyller, reoler og inventar er i dag fjernet fra lokalet.
Beliggenhet
Professor Birkelands vei er et dynamisk næringsområde som huser et bredt spekter av aktører innen ulike bransjer. Området tiltrekker seg bedrifter som setter pris på nærhet til sentrale transportårer, strategisk plassering, og et levende miljø for forretninger. Eksempler på dette er Logistikkaktører, industrielle verksted aktører, proffbutikker m.m.
Avstander:
- E6: 3 min
- Østre akers vei: 3 min
- Oslo: 10 min
- Lillestrøm: 10 min
- Fra Oslo med tog/buss/T-bane: 30-35 min
Adkomst
Det er enkel adkomst fra både E6 og Østre Akers vei (Rv 163):
Veibeskrivelse fra E6: ta avkjørsel 41 mot Furuset. I rundkjøringene tar du mot Furuset nedre og følger veien før du igjen tar av til Furuset nedre. Følg veien ca 600 meter, og sving inn på lokalet på venstre side.
Veibeskrivelse fra Østre Akers vei (Rv 163): Ta av mot Furuset/Grorud. Dersom du kommer fra retning Lillestrøm, ta av til venstre i første kryss. i påfølgende kryss tar du til venstre igjen. I rundkjøring tar du av til Furuset uavhengig av om du kommer fra Oslo eller Lillestrøm retning. Følg veien 1 km og du ankommer lokalet på høyre side.
Veibeskrivelse fra E6: ta avkjørsel 41 mot Furuset. I rundkjøringene tar du mot Furuset nedre og følger veien før du igjen tar av til Furuset nedre. Følg veien ca 600 meter, og sving inn på lokalet på venstre side.
Veibeskrivelse fra Østre Akers vei (Rv 163): Ta av mot Furuset/Grorud. Dersom du kommer fra retning Lillestrøm, ta av til venstre i første kryss. i påfølgende kryss tar du til venstre igjen. I rundkjøring tar du av til Furuset uavhengig av om du kommer fra Oslo eller Lillestrøm retning. Følg veien 1 km og du ankommer lokalet på høyre side.
Standard
Lokalene holder god teknisk standard og er slik de fremkommer på bildene.
NB: Knappen for å vise hele beskrivelsen har kun en visuell effekt.
NB: Knappen for å vise hele beskrivelsen har kun en visuell effekt.
Visning
Kontakt pr. mail/ tlf/ lenke for å avtale visning
Nyttige lenker
Speiz.no
Nærområdet
Annonsene kan være mangelfulle i forhold til lovpålagt opplysningsplikt. Før bindende avtale inngås oppfordres interessenter til å innhente komplett informasjon fra meglerforetaket, selger eller utleier.


















