Bildegalleri

Solgt

UTSOLGT!

Drømmeboliger på Langhus – Utsikt, Luksus og Skreddersøm

Prisantydning12 990 000 kr
Totalpris
13 065 000 kr
Omkostninger
75 000 kr

Kort om prosjektet

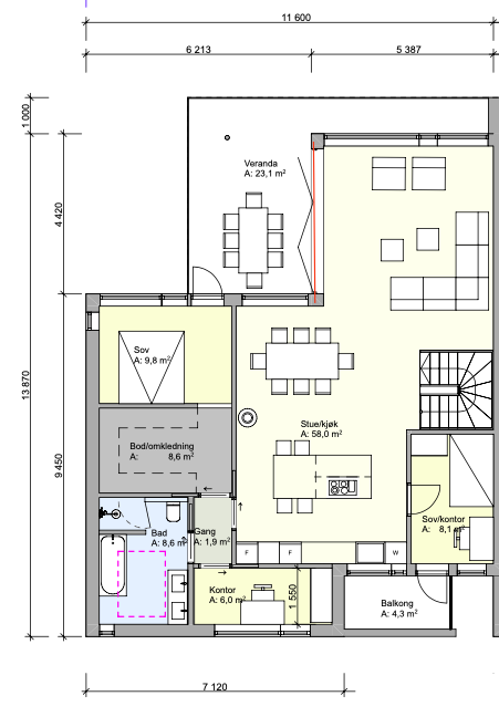
På det som kan være den råeste tomten på Langhus, vil vi nå tilby fire eksklusive boliger med et bruksareal på ca. 230 kvm, inkludert dobbel garasje. Disse moderne boligene kombinerer stil og funksjonalitet med hele 6 soverom. Med skreddersøm så tilpasses hver bolig kjøperen!

  • Planlegging

    Q2 2023 - Q4 2024

  • Salgsstart

    Q1/Q2 2025

  • Byggestart

    2025/26

  • Overtakelse

    Etter ca. 12 mnd. byggetid.

Nøkkelinfo

Boligtype
Tomannsbolig
Soverom
6
Bruksareal
230 m²

Les mer om bruksareal her

Fasiliteter

Balansert ventilasjon
Balkong/Terrasse
Barnevennlig
Bredbåndstilknytning
Garasje/P-plass
Kabel-TV
Lademulighet
Offentlig vann/kloakk
Parkett
Peis/Ildsted
Utsikt
Turterreng

Beskrivelse

Kort om prosjektet

På det som utvilsomt er den råeste tomten på Langhus, vil vi nå tilby fire eksklusive boliger med et bruksareal på ca. 230 kvm, inkludert dobbel garasje. Disse moderne boligene kombinerer stil og funksjonalitet med hele 6 soverom, alternativt 5 soverom og et kontor.

Nærområdet

Annonseinformasjon

FINN-kode389332249
Sist endret08. mai 2025 11:08

Rapporter annonse

Annonsene kan være mangelfulle i forhold til lovpålagt opplysningsplikt. Før bindende avtale inngås oppfordres interessenter til å innhente komplett informasjon fra meglerforetaket, selger eller utleier.