Bildegalleri

Tomten er pent opparbeidet med diverse beplantninger, noe plen, støttemurer og støpte adkomstveier samt trapper
Inaktiv
Sulusåsen
Eksklusiv og moderne funkisbolig med flere gode fasiliteter. Vannbåren gulvvarme. 6 bad. Heis. Takterrasse. Basseng.
Prisantydning25 000 000 kr
Nøkkelinfo
- Boligtype
- Enebolig
- Eieform
- Eier (Selveier)
- Soverom
- 5
- Internt bruksareal
- 773 m² (BRA-i)
- Bruksareal
- 773 m²
- Balkong/Terrasse
- 265 m² (TBA)
- Etasje
- 3
- Byggeår
- 2019
- Energimerking
- B - Gul
- Rom
- 7
- Tomteareal
- 1 504 m² (eiet)
Fasiliteter
Alarm
Balkong/Terrasse
Barnevennlig
Bredbåndstilknytning
Garasje/P-plass
Heis
Kabel-TV
Offentlig vann/kloakk
Parkett
Peis/Ildsted
Rolig
Utsikt
Lademulighet
Balansert ventilasjon
Visning
Det vil ikke bli arrangert fellesvisning. Ta kontakt med megler for avtale om privatvisning.
VisningspåmeldingOm boligen
Velkommen til Stretaliveien 1 - En eksklusiv og moderne funkisbolig!
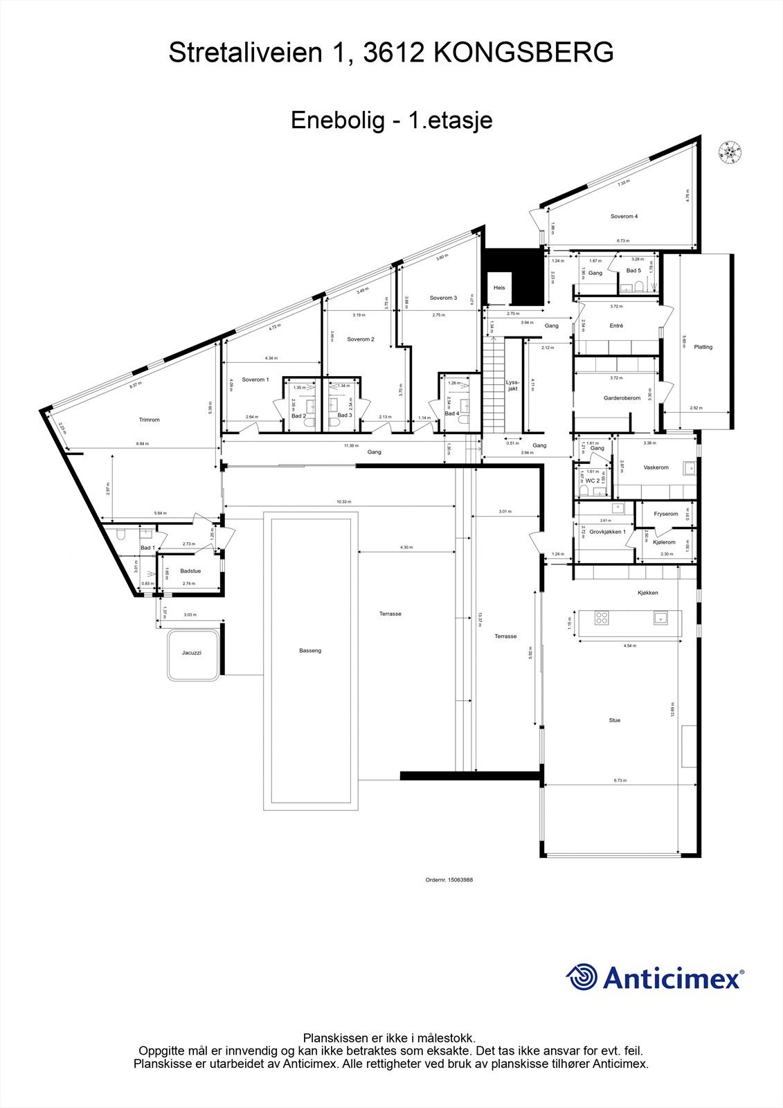
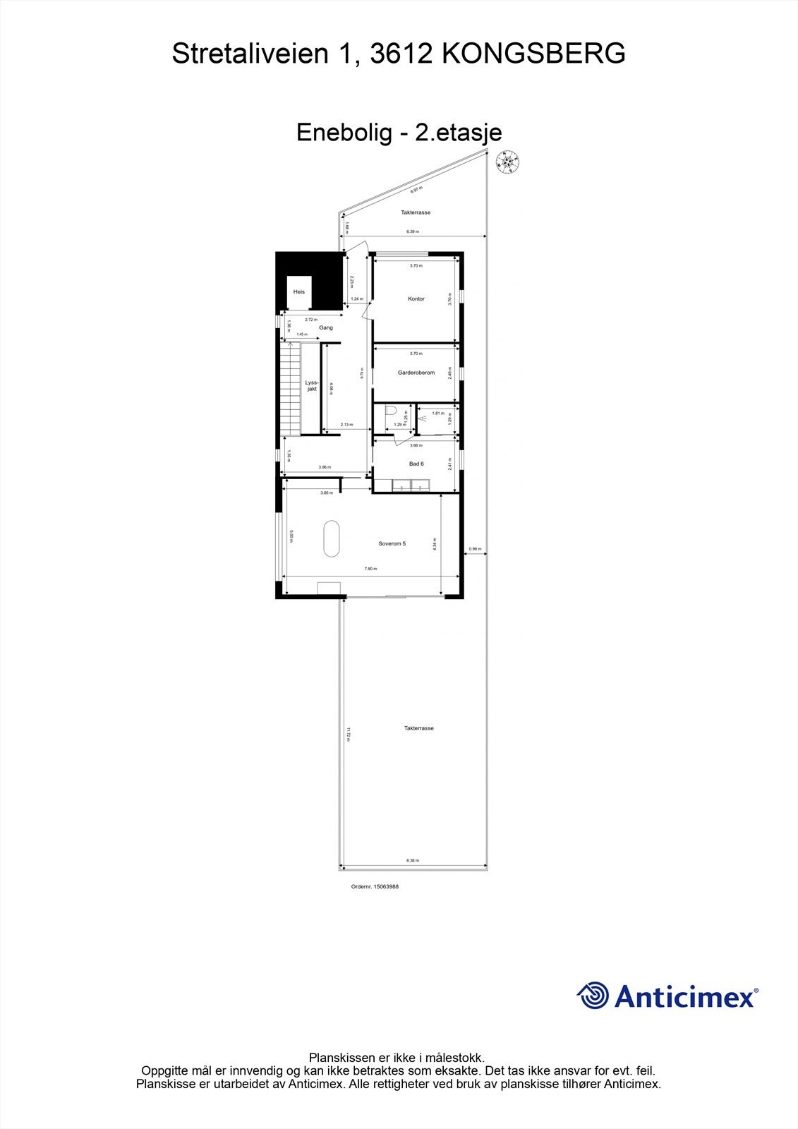
- Velutstyrt og elegant kjøkken med helintegrerte hvitevarer samt kjøkkenøy med barløsning
- Praktiske fasiliteter som bl.a. grovkjøkken, kjøkken i gang, kinorom, vinrom og trimrom
- 5(6) soverom hvorav 3 har eget bad - hovedsoverom med badekar, gasspeis og takterrasse
- 6 fine bad med regnfallsdusj, 2 praktiske wc-rom og separat vaskerom
- Vannbåren gulvvarme i alle rom (bergvarme) og balansert ventilasjon med varmegjenvinning
- Romslig sydvendt terrasse på ca. 138 kvm med motstrømsbasseng, utedusj og opplegg for jacuzzi
- Integrert dobbelgarasje med god lagringsplass og forøvrig godt med parkeringsplasser
- Boligområdet er kjent for de gode solforholdene og nærheten til flotte skogsområder
NB: Knappen for å vise hele beskrivelsen har kun en visuell effekt.
NB: Knappen for å vise hele beskrivelsen har kun en visuell effekt.
Salgsoppgaven beskriver vesentlig og lovpålagt informasjon om eiendommen
Se komplett salgsoppgaveNyttige lenker
Nærområdet
Krogsveen Drammen
Verdien av en god megler.
Annonseinformasjon
| FINN-kode | 388961619 |
|---|---|
| Sist endret | 01. sep. 2025 08:23 |
| Referanse | KR20.24293 |
Annonsene kan være mangelfulle i forhold til lovpålagt opplysningsplikt. Før bindende avtale inngås oppfordres interessenter til å innhente komplett informasjon fra meglerforetaket, selger eller utleier.




























































