Bildegalleri

Velkommen til Easyliving - Drammens største private aktør av moderne møblerte hjem
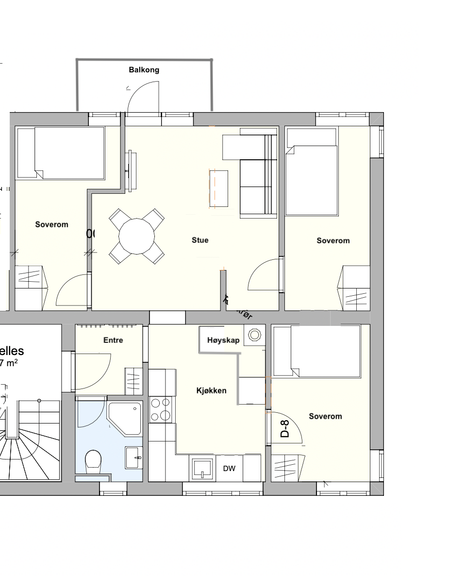
Strømsø - Topp moderne 4-roms leilighet - Fullt møblert - Parkering inkl
- Månedsleie
- 19 500,–
- Depositum
- 58 500,–
Nøkkelinfo
- Internt bruksareal
- 62 m² (BRA-i)
- Boligtype
- Leilighet
- Soverom
- 3
- Etasje
- 1.
- Leieperiode
- 01.04.2025
Fasiliteter
Beskrivelse
🏡 Velkommen til Easyliving,
Vi har gleden av å presentere denne moderne 4-roms leilighet på Strømsø
Leiligheten leveres ferdig møblert og med alt av inventar man trenger i det daglige. Låsbar Bod i kjeller.
Alle leilighetene har vask/tørk-maskin samt alle hvitevarer på kjøkken installert.
Tillegg for internett i leiesummen: 500kr mnd.
Strømabonomendt tegnes av leietaker.
Easyliving er Drammens største og mest profesjonelle private utleier av møblerte boliger. Vi er alltid tilgjengelige for våre leietakere og gjør vårt ytterste for at du skal trives.
📞 Ta kontakt for visning:
📍 Håkon: 97586160
Boligen har lynraskt internett, moderne teknologi, fullt møblert og høy sikkerhet. Leilighetene er moderne, komfortable og innflyttingsklare, og gir det perfekte utgangspunktet for deg som ønsker å bo rolig og komfortabelt.
Leiligheten sogner til Danvik skolekrets.
Det er mulighet for parkering i gårdsplass.
Gangavstand til både togstasjon og universitetet.
Døgnåpen joker butikk kun noen få minutters gange fra leiligheten.
🏡 Ta kontakt i dag for å avtale visning! 🏡
Visning
Ta kontakt for å avtale visning.Hybel.no
Nærområdet
Annonseinformasjon
| FINN-kode | 388632397 |
|---|---|
| Sist endret | 10. apr. 2025 16:20 |
| Referanse | leilighet-4-roms-blektjernveien-1-drammen |
Annonsene kan være mangelfulle i forhold til lovpålagt opplysningsplikt. Før bindende avtale inngås oppfordres interessenter til å innhente komplett informasjon fra meglerforetaket, selger eller utleier.





























