Bildegalleri

Planløsning med oversikt over utvendig bod
Leiligheter i "Hafsøyne" 2-3 soverom, med gode planløsninger og gode solforhold
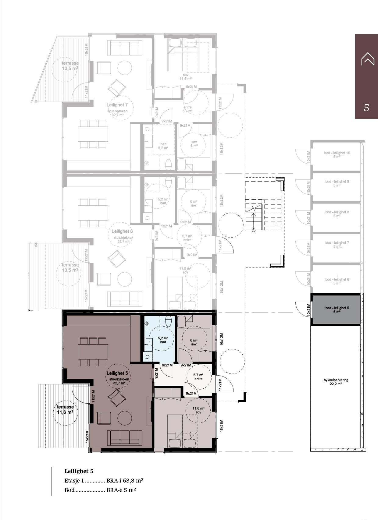
Leilighet nr. 5 med livsløpsstandard
Pris på lån: fra 19 901 kr/mnd
Eff.rente 5,14 %. 3 395 000 o/25 år. Kostnad: 2 575 300 kr. Totalt 5 970 300 kr.
LånekalkulatorKort om prosjektet
Lettstelte og sentrumsnære leiligheter med gangavstand til det aller meste. Leilighetene har gode solforhold og god standard
Prosjektets status
Planlegging
Oppstart av byggearbeider februar 2025
Salgsstart
Januar 2025
Byggestart
Februar 2025
Overtakelse
Høsten 2026
Nøkkelinfo
- Boligtype
- Leilighet
- Etasje
- 1
- Soverom
- 2
- Bruksareal
- 69 m²
Fasiliteter
Visning
Ta kontakt for å avtale visning.Beskrivelse
Beskrivelse av leiligheten
Leilighetene i Hafsøy Gård er fordelt på to bygg. Et bygg med 4 leiligheter og 1 bygg med 6 leiligheter.
Seksjon nr. 5 befinner seg i 1. etasje i 6 mannsboligen og har livsløpsstandard.
Leiligheten inneholder:
- Entre
- 2 soverom
- Bad
- Åpen stue/kjøkken løsning med utgang til terrasse
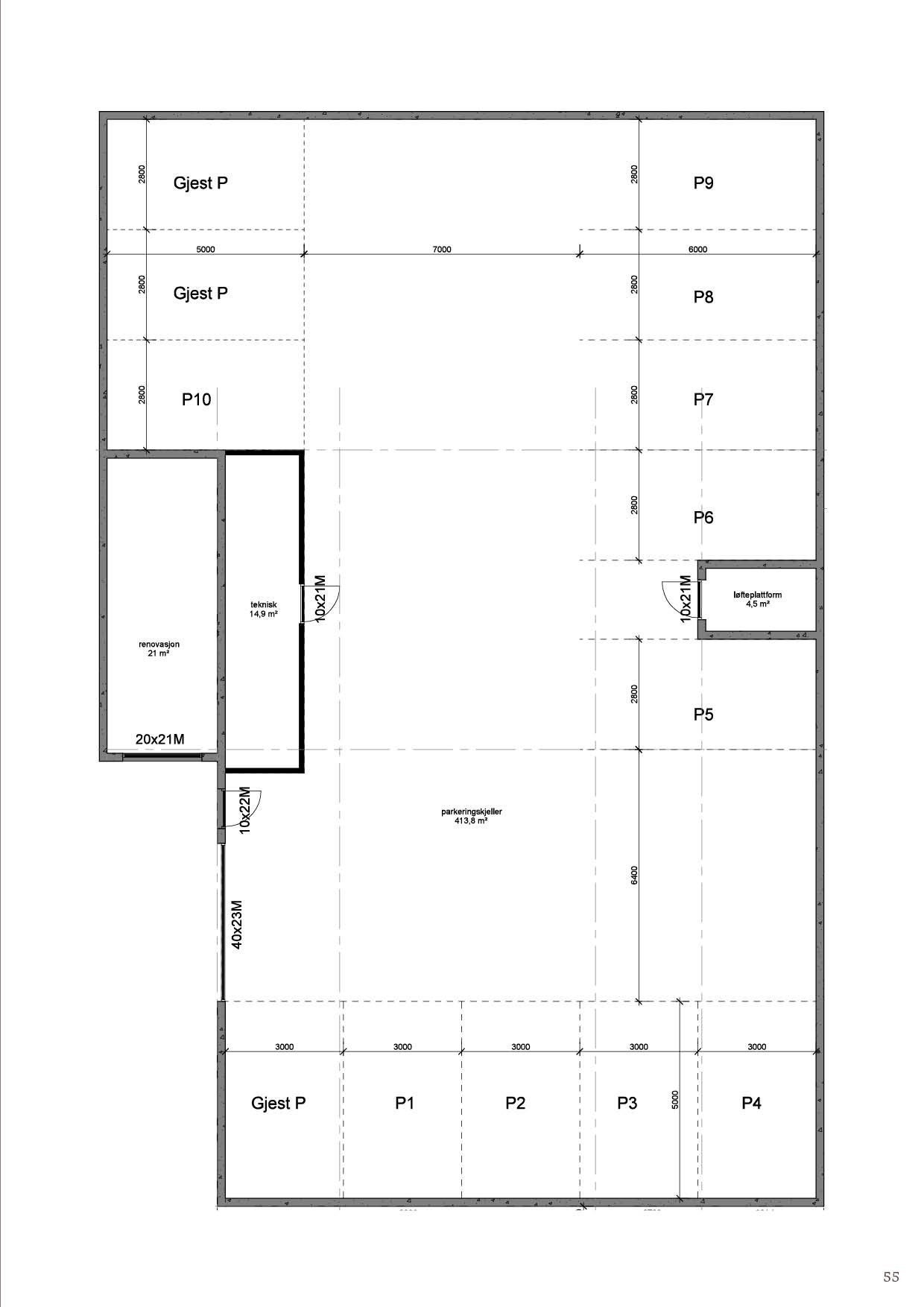
Det er heis/løfteplattform i fra parkeringsanlegg til 1. etasje.
Leiligheten leveres nøkkelferdige, klar for innflytting. Materialvalg og planløsninger kan endres og tilpasses dine ønsker og behov. Ta kontakt for å se på muligheter.
Standard og fasiliteter
Leilighetene har god standard og leveres med blant annet:
- Vannbåren varme
- Aluminiums belagte vinduer
- Soldempende glass på alle vinduer/balkong dører
- Listefrie løsninger i overgang takk/vegg og rundt vinduer og dører i yttervegg.
- Kjøkken med hvitevarer i fra Kjøkkensenteret Egersund
- 1. stavs parkett på gulv i alle oppholdsrom
- Belysningspakke
- Ferdig malt med inntil 3 valgfrie farger
- Fliser på gulv i gang, bad og vaskerom
- Leilighetsbygget leveres ferdig malt utvendig
Leilighetsbygget inneholder fasiliteter som:
- Parkeringsanlegg under leiligheter. Her finner du i tillegg til parkering til den enkelt leilighet: Gjesteparkering, renovasjons bod og teknisk bod.
- Felles heis/løfteplattform fra parkeringsanlegg til 1. etasje. Heisen går videre til leiligheter i 2. etasje i 4-manns boligen
- Stor terrasse
- utvendige bod
- Sykkelparkering
- Stort felles lek og uteområde
- Felles takterrasse
Kostnader
Kjøpesum seksjon nr. 5 Hafsøy Gård kr. 4 850 000,-
I tillegg til kjøpesum tilkommer avgifter til staten på:
- Tinglysingsgebyr kr. 545,-
- Dokumentagvgift kr. 12 500,-
- Utskrift gunnbok kr. 260,-
Sum omkostninger: 13 305,-
Nyttige lenker
Nærområdet
Mesterhus - Norrøn Bolig AS
Annonseinformasjon
| FINN-kode | 387761602 |
|---|---|
| Sist endret | 28. jan. 2025 09:46 |
| Referanse | XSeksjon nr. 5 Hafsøy GårdX |
Annonsene kan være mangelfulle i forhold til lovpålagt opplysningsplikt. Før bindende avtale inngås oppfordres interessenter til å innhente komplett informasjon fra meglerforetaket, selger eller utleier.









