Bildegalleri

Velkommen til Bekkenstenveien 54B!
Visning avlyst | Selger har akseptert bud |
Nøkkelinfo
- Boligtype
- Enebolig
- Eieform
- Eier (Selveier)
- Soverom
- 3
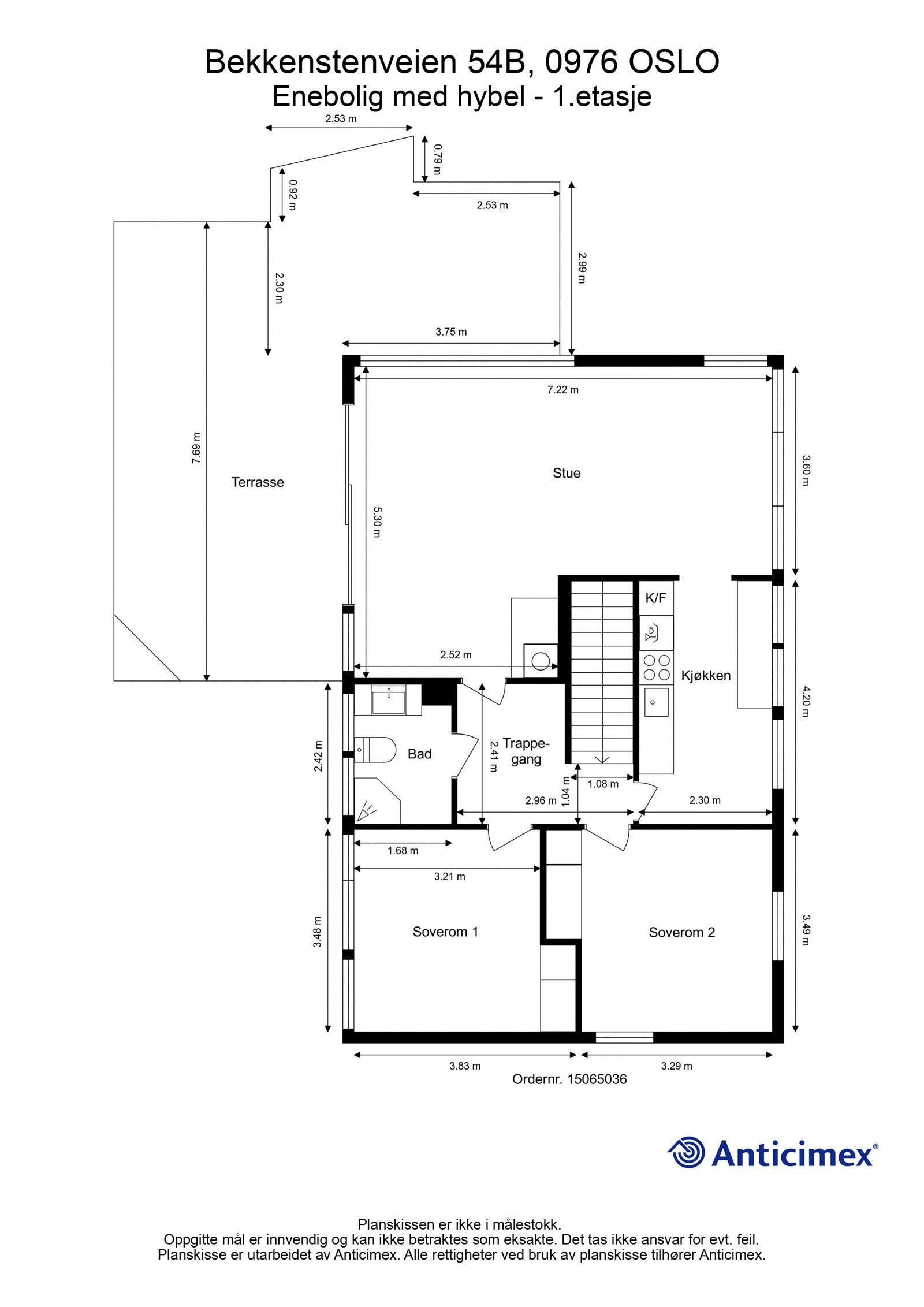
- Internt bruksareal
- 169 m² (BRA-i)
- Bruksareal
- 186 m²
- Eksternt bruksareal
- 17 m² (BRA-e)
- Balkong/Terrasse
- 43 m² (TBA)
- Byggeår
- 1979
- Energimerking
- G - Rød
- Rom
- 5
- Tomteareal
- 661 m² (eiet)
Fasiliteter
Om boligen
OBOS Eiendomsmeglere v/Jonas Dinessen har gleden av å presentere Bekkenstenveien 54B- En flott og velholdt enebolig over 2 plan med godkjent hybelleilighet. Eiendommen ligger fint til med stor, flott og skjemert hage med fantastiske solforhold.
Kort om eiendommen:
- Stilig planløsning med takhøyde på opptil 4m i stuen og store vindusflater
- Hybelleilighet med egen strømmåler
- Garasje, samt plass til flere biler på gårdsplassen
- Herskapelig og meget pent opparbeidet gårdsplass
- Meget barnevennlig
- Flott hage og stor terrasse med utepeis
- God utnyttelse av av plass med flere hemsløsninger
Boligen ligger veldig fint til på en bakketopp på Gamle Grorud. Det gir flotte solforhold om våren og sommeren. Hagen er meget skjermet hvor barna kan leke og boltre seg fritt!
Velkommen til visning!
Salgsoppgaven beskriver vesentlig og lovpålagt informasjon om eiendommen
Se komplett salgsoppgaveNyttige lenker
Nærområdet
OBOS eiendomsmeglere - Kalbakken
Annonseinformasjon
| FINN-kode | 387477940 |
|---|---|
| Sist endret | 23. juni 2025 10:54 |
| Referanse | 703240097 |
Annonsene kan være mangelfulle i forhold til lovpålagt opplysningsplikt. Før bindende avtale inngås oppfordres interessenter til å innhente komplett informasjon fra meglerforetaket, selger eller utleier.

















































