Bildegalleri

Spennende arkitektur med private og lune uteplasser
Engetoppen
Trekanthuset. Ny modell. Her får du alt du trenger i en familiebolig. Tre soverom, to stuer og to bad
Prisantydning8 198 000 kr
Kort om prosjektet
Salget er i gang. Flotte eneboliger med meget familievennlig planløsning.
Prosjektets status
Planlegging
Salgsperiode
Salgsstart
Avholdt
Byggestart
2025
Overtakelse
2026/27
Nøkkelinfo
- Boligtype
- Enebolig
- Soverom
- 3
- Internt bruksareal
- 136 m² (BRA-i)
- Bruksareal
- 136 m²
- Balkong/Terrasse
- 13 m² (TBA)
Fasiliteter
Balansert ventilasjon
Balkong/Terrasse
Barnevennlig
Bredbåndstilknytning
Kabel-TV
Lademulighet
Offentlig vann/kloakk
Parkett
Peis/Ildsted
Utsikt
Turterreng
Beskrivelse
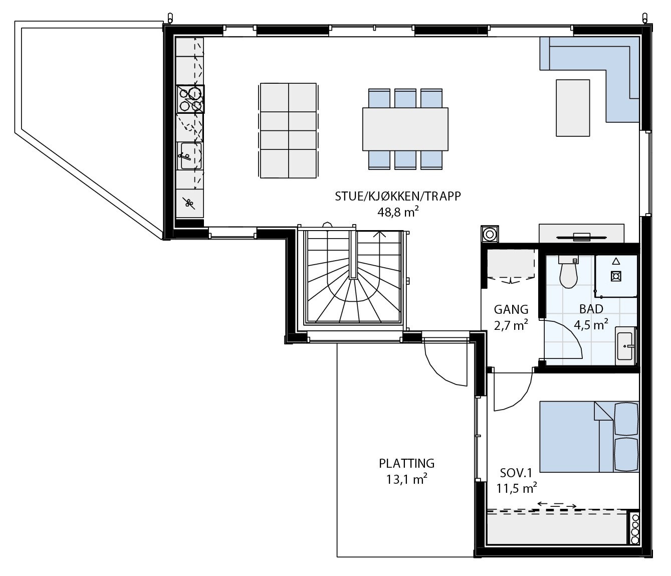
Trekanthuset
Inngang i U.etg:
Entre med stor garderobeplass. Kjellerstue og to soverom. Romslig bad med vaskerom/teknisk rom.
1.etg:
Stue/kjøkken på 48,9 kvm. Utgang til platting. Foreldresoverom med eget bad.
NB: Knappen for å vise hele beskrivelsen har kun en visuell effekt.
NB: Knappen for å vise hele beskrivelsen har kun en visuell effekt.
Nyttige lenker
Nærområdet
OBOS Block Watne AS
Annonsene kan være mangelfulle i forhold til lovpålagt opplysningsplikt. Før bindende avtale inngås oppfordres interessenter til å innhente komplett informasjon fra meglerforetaket, selger eller utleier.





