Bildegalleri

Frem Eiendomsmegling har gleden av å presentere Søndre Sætrevei 19!
Sætre - Solrik beliggende enebolig med stor selveiertomt - Anneks/garasje på 46 kvm - Kort vei til sentrum og skoler
Nøkkelinfo
- Boligtype
- Enebolig
- Eieform
- Eier (Selveier)
- Soverom
- 2
- Internt bruksareal
- 93 m² (BRA-i)
- Bruksareal
- 139 m²
- Eksternt bruksareal
- 46 m² (BRA-e)
- Balkong/Terrasse
- 65 m² (TBA)
- Byggeår
- 1895
- Energimerking
- G - Rød
- Tomteareal
- 1 472 m² (eiet)
Fasiliteter
Visning
Om boligen
Frem Eiendomsmegling har gleden av å presentere Søndre Sætrevei 19!
Dette er en flott enebolig beliggende i meget barnevennlige omgivelser med kort avstand til sentrum og skoler. Eiendommen har flere koselige sitteplasser rundt om med terrasser på totalt 65 kvm. Boligen ligger meget solrikt til, og er kanskje en av de eiendommene på Sætre med mest sol!
Eiendommen har stor selveiertomt på 1472 kvm opparbeidet med singlet oppkjørsel, plenarealer og diverse beplantning. Frittstående anneks/garasje på totalt 46 kvm med 3 uinnredede rom og garasje.
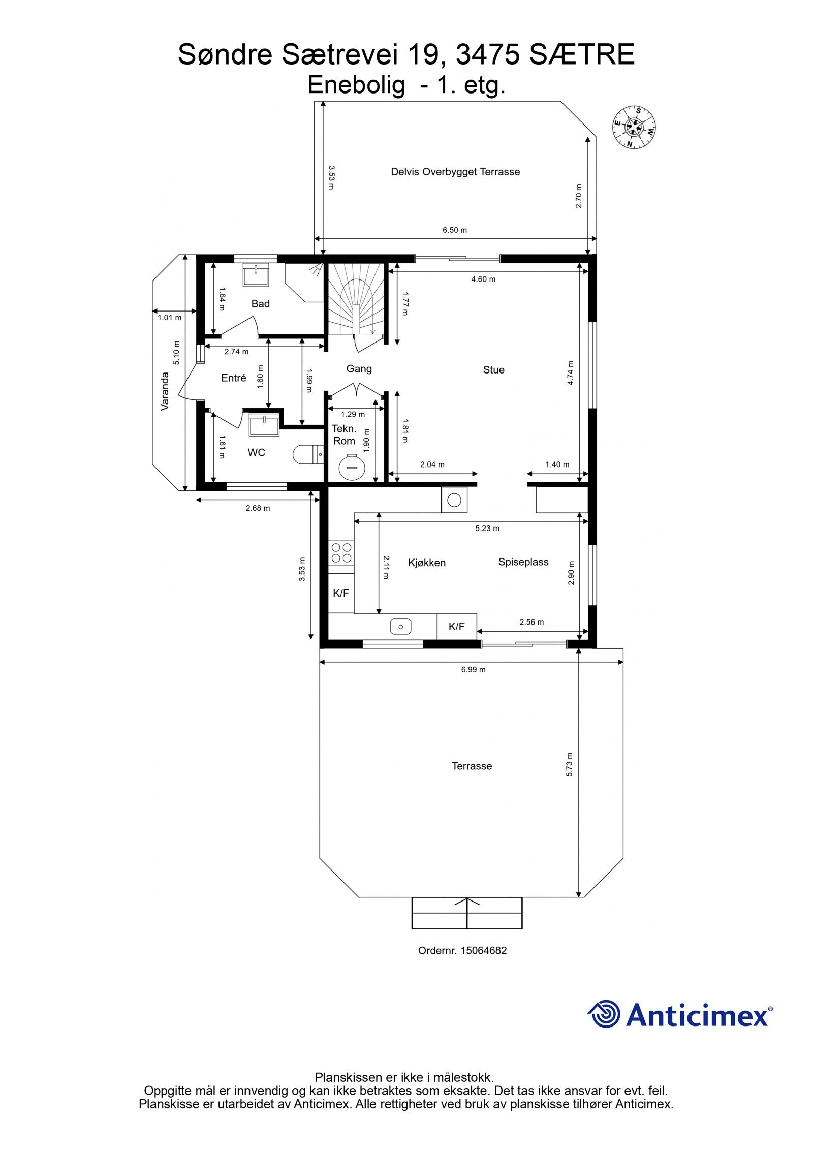
Boligen består av 1.etasje med entré, gang, stue, kjøkken, bad, toalettrom og bod/teknisk rom, og 2.etasje med 2 soverom og kneloft.
Velkommen til visning!
Salgsoppgaven beskriver vesentlig og lovpålagt informasjon om eiendommen
Se komplett salgsoppgaveNyttige lenker
Nærområdet

FREM EIENDOMSMEGLING
Annonsene kan være mangelfulle i forhold til lovpålagt opplysningsplikt. Før bindende avtale inngås oppfordres interessenter til å innhente komplett informasjon fra meglerforetaket, selger eller utleier.















































