Bildegalleri
Fasade (Bildet er kun ment som en illustrasjon)
Bryggja - Bykset
Eksklusiv arkitekttegnet hytte ved sjøen - Opplev Nordfjord!
Prosjektets status
Planlegging
2024
Salgsstart
2025
Byggestart
2025
Overtakelse
Etter avtale
Nøkkelinfo
- Beliggenhet
- Ved sjøen
- Boligtype
- Hytte
- Etasje
- 1
- Soverom
- 4
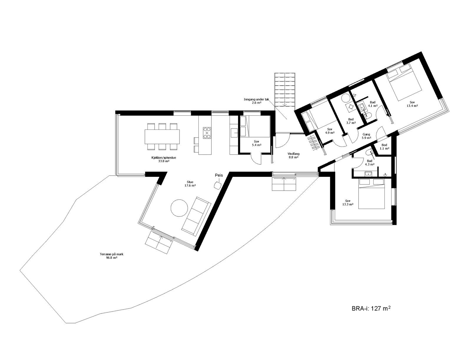
- Internt bruksareal
- 127 m² (BRA-i)
- Bruksareal
- 127 m²
- Balkong/Terrasse
- 96 m² (TBA)
- Tomteareal
- 875 m² (eiet)
Fasiliteter
Visning
Ta kontakt for å avtale visning.Beskrivelse
Bykset
Unik mulighet!
Arkitekttegnet fritidsbolig under oppføring ved sjøen på Bryggja. Moderne arkitektur tilpasset tomt og omgivelser. Hytta ligger kun 20m fra sjøen og har bilvei helt frem. Den har et bruksareal på 127m2, fire soverom, to moderne bad. Vinduer mot sør og vest gir panoramautsikt mot fjord og fjell. Ca. 100m2 terrasseområde. Hytta ligger for seg selv, uten innsyn og med god avstand til nærmeste nabo. Det vil bli muligheter for tilgang til naust.
Bryggja er et lokalt knutepunkt i Nordfjord, med dagligvarebutikk kun 200 meter unna, og med godt utgangspunkt for å utøve en rekke fritidsaktiviteter.
- Fritidsfiske
- Kajakkpadling
- Norges beste surfestrand i Hoddevik
- Alpinanlegg i Hjelmelandsdalen
- Sommerskisenter ved Strynefjellet.
- Fjellturer
- Klatring; via ferrata ved Hornelen og i Loen
Fra Bryggja er det kun en 20 minutters kjøretur til Måløy og 30 minutter til Nordfjordeid. Her finner du et bredt utvalg av tilbud og tjenester, inkludert restauranter, Nordfjord Opera, Sagastad Vikingsenter og diverse butikker.
Fasaden er kledd i brent malmfuru, mens innvendig finner du oljet poppelfiner på vegger og himlinger. Kjøkken fra HTH. Limte vinduer gir maksimal utsikt. Gulv i slipt betong. Som kjøper vil du ha mulighet til å påvirke materialvalg og løsninger om du kommer inn tidlig i prosessen.
Bryggja ligger en 3 timers kjøretur fra Ålesund, 1 time til flyplassen på Sandane, og 1,5 timer til Ørsta/Volda lufthavn.
Du er velkommen til å ta kontakt. Vi inviterer til befaring av tomt og område.
Salget skjer etter bustadoppføringsloven og det stilles lovpålagte garantier.
Kontrakt, tinglysning og oppgjør håndteres av Advokatfirmaet Angelshaug & Co AS, ved advokat Endre Rutledal
Nyttige lenker
Nærområdet
ATJ HOLDING AS
Annonsene kan være mangelfulle i forhold til lovpålagt opplysningsplikt. Før bindende avtale inngås oppfordres interessenter til å innhente komplett informasjon fra meglerforetaket, selger eller utleier.





















