Bildegalleri

Vinterro
Chalet 2b
Prosjektets status
Planlegging
Gjennomført
Salgsstart
I salg
Byggestart
Under bygging
Overtakelse
Etter avtale
Nøkkelinfo
- Beliggenhet
- På fjellet
- Boligtype
- Hytte
- Soverom
- 4
- Rom
- 5
- Internt bruksareal
- 141 m² (BRA-i)
- Bruksareal
- 141 m²
- Balkong/Terrasse
- 18 m² (TBA)
- Tomt
- Festet
- Festeavgift
- 2 376 kr
Fasiliteter
Visning
Ta kontakt for å avtale visning.Beskrivelse
Hytte på 141,7 m2 BRA-i:
Eksklusiv fjellhytte med 3 soverom (5 mulig), 2 bad, vaskerom, 2 stuer, åpen kjøkkenløsning, terrasse, 2 balkonger, sportsbod, generøse vindusflater og god takhøyde.
1. etasje byr på en romslig og innbydende entré med lekre fliser og gulvvarme. Entréen har doble skyvedører inn til en romslig sportsbod samt inngang til et praktisk vaskerom. Gangen fra entréen fører videre inn til et delikat bad, stue og 3 soverom av god størrelse. Hovedsoverommet har eget bad og direkte utgang til en stor markterrasse. Praktisk bod under trapp til 2. etasje.
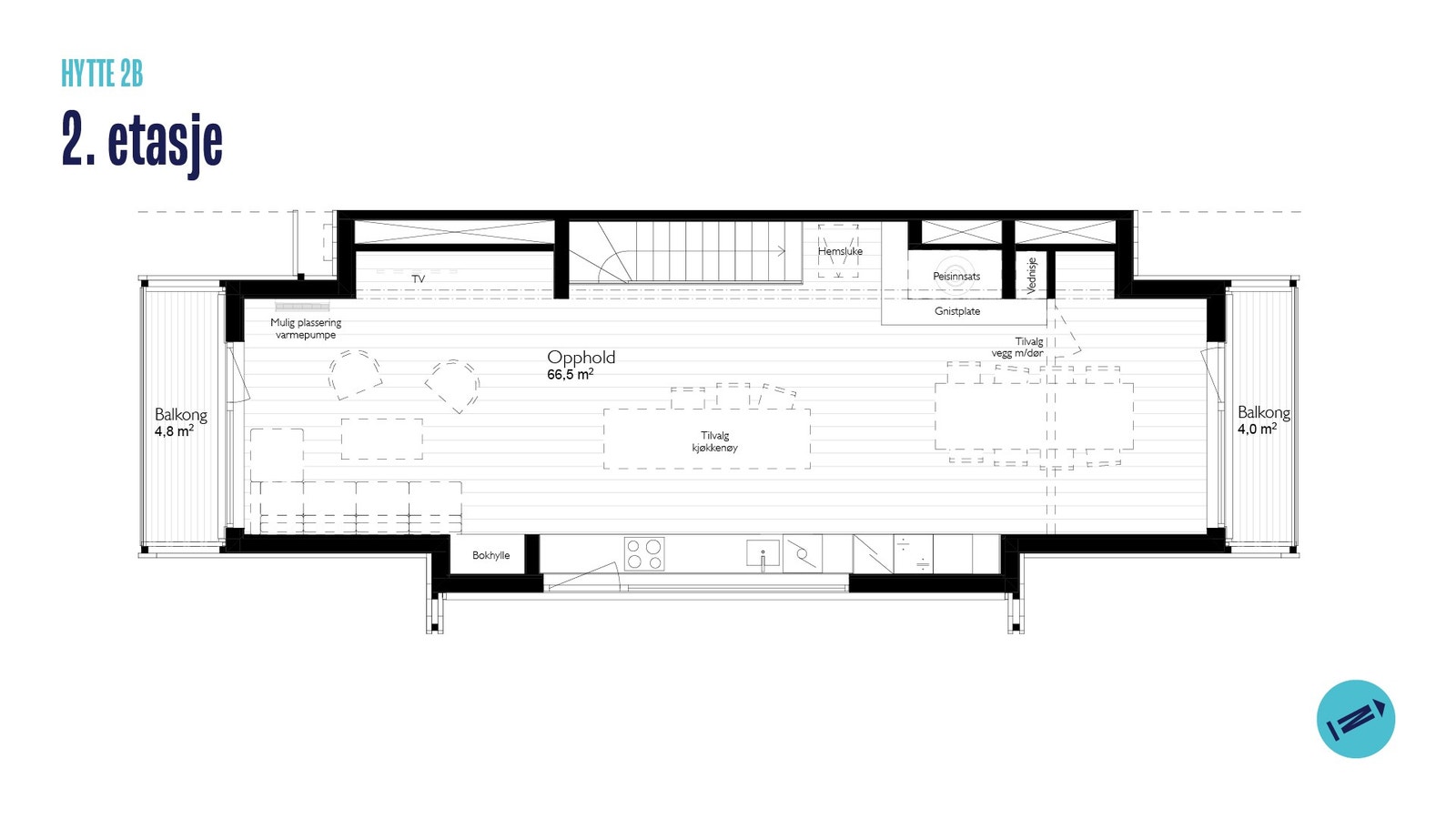
2. etasje er en særdeles lys og luftig oppholdssone med generøse vindusflater og imponerende takhøyde. Sonen består av stue/spisestue, flott peisinnsats og et eksklusivt kjøkken i åpen løsning med skreddersydd innredning med overflater i treverk som skaper en lun atmosfære. Etasjen er gjennomgående med balkong i begge ender. Fra andre etasje vil det gjennom en luke med nedfellbar stige bli tilgang til kneloft (ikke målbart), et avlangt areal som ligger over trapp og ut til fasadene på hver side. Her er det praktisk å lagre for eksempel julepynt, påskepynt og annet sesongutstyr. Til hver hytte medfølger en egen, praktisk bod for ski og sykkel.
Nærområdet

PrivatMegleren Nyeboliger Oslo
Veslefrikk Eiendom
Utbygger
Annonsene kan være mangelfulle i forhold til lovpålagt opplysningsplikt. Før bindende avtale inngås oppfordres interessenter til å innhente komplett informasjon fra meglerforetaket, selger eller utleier.


