Bildegalleri

Velkommen til Trostvegen 7!
Solgt
SKIEN - GULSET
NY PRIS! Enebolig med alle fasiliteter på hovedplan. Oppgraderingsbehov. Solrik tomt. Praktisk planløsning.
Prisantydning2 790 000 kr
Nøkkelinfo
- Boligtype
- Enebolig
- Eieform
- Eier (Selveier)
- Soverom
- 3
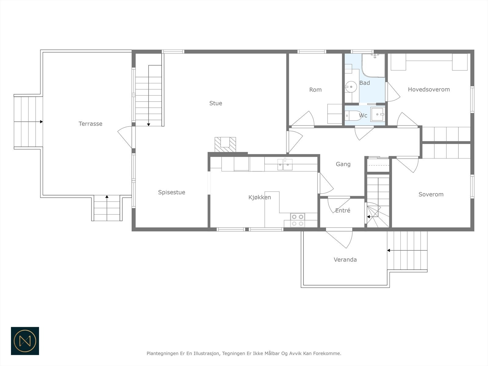
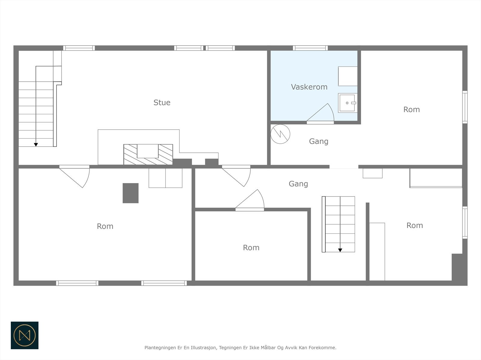
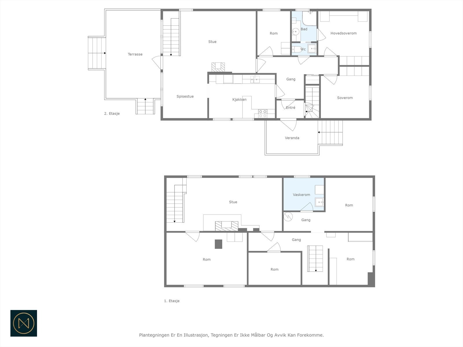
- Internt bruksareal
- 189 m² (BRA-i)
- Bruksareal
- 211 m²
- Eksternt bruksareal
- 22 m² (BRA-e)
- Balkong/Terrasse
- 40 m² (TBA)
- Byggeår
- 1972
- Energimerking
- E - Oransje
- Tomteareal
- 1 028 m² (eiet)
Fasiliteter
Balkong/Terrasse
Barnevennlig
Garasje/P-plass
Hage
Peis/Ildsted
Rolig
Turterreng
Om boligen
Nordvik v/ Sofie Egge Husby presenterer Trostvegen 7!
Denne eiendommen har en barnevennlig og attraktiv beliggenhet i hyggelig boligområde på Gulset, med særdeles flotte turmuligheter rett utenfor døren. Det er svært kort vei til Granåsen barnehage, Stigeråsen barneskole, Gulset ungdomsskole og Gulsetsenteret med flere butikker og tjenester. Denne beliggenheten er perfekt for deg som ønsker et praktisk og bekvemt hverdagsliv.
Boligen er svært innholdsrik med en praktisk planløsning som egner seg godt for en barnefamilie. Lyse og trivelige oppholdsrom samt. meget flotte uteområder. Det er åpen peis i begge etasjer som sørger for god varme og en trivelig atmosfære. Boligen har behov for generell fornying. Her har man svært gode muligheter til å få det nøyaktig slik man måtte ønske.
Denne eiendommen har en barnevennlig og attraktiv beliggenhet i hyggelig boligområde på Gulset, med særdeles flotte turmuligheter rett utenfor døren. Det er svært kort vei til Granåsen barnehage, Stigeråsen barneskole, Gulset ungdomsskole og Gulsetsenteret med flere butikker og tjenester. Denne beliggenheten er perfekt for deg som ønsker et praktisk og bekvemt hverdagsliv.
Boligen er svært innholdsrik med en praktisk planløsning som egner seg godt for en barnefamilie. Lyse og trivelige oppholdsrom samt. meget flotte uteområder. Det er åpen peis i begge etasjer som sørger for god varme og en trivelig atmosfære. Boligen har behov for generell fornying. Her har man svært gode muligheter til å få det nøyaktig slik man måtte ønske.
NB: Knappen for å vise hele beskrivelsen har kun en visuell effekt.
NB: Knappen for å vise hele beskrivelsen har kun en visuell effekt.
Salgsoppgaven beskriver vesentlig og lovpålagt informasjon om eiendommen
Se komplett salgsoppgaveNyttige lenker
Nærområdet
Nordvik Skien Porsgrunn
Annonseinformasjon
| FINN-kode | 384377798 |
|---|---|
| Sist endret | 08. sep. 2025 15:21 |
| Referanse | 24-0244/24 |
Annonsene kan være mangelfulle i forhold til lovpålagt opplysningsplikt. Før bindende avtale inngås oppfordres interessenter til å innhente komplett informasjon fra meglerforetaket, selger eller utleier.










































