Bildegalleri

Fasade
Lekker 2-roms selveier i 3.etg | Fast garasjeplass og balkong med utsikt
Nøkkelinfo
- Boligtype
- Leilighet
- Eieform
- Eier (Selveier)
- Soverom
- 1
- Internt bruksareal
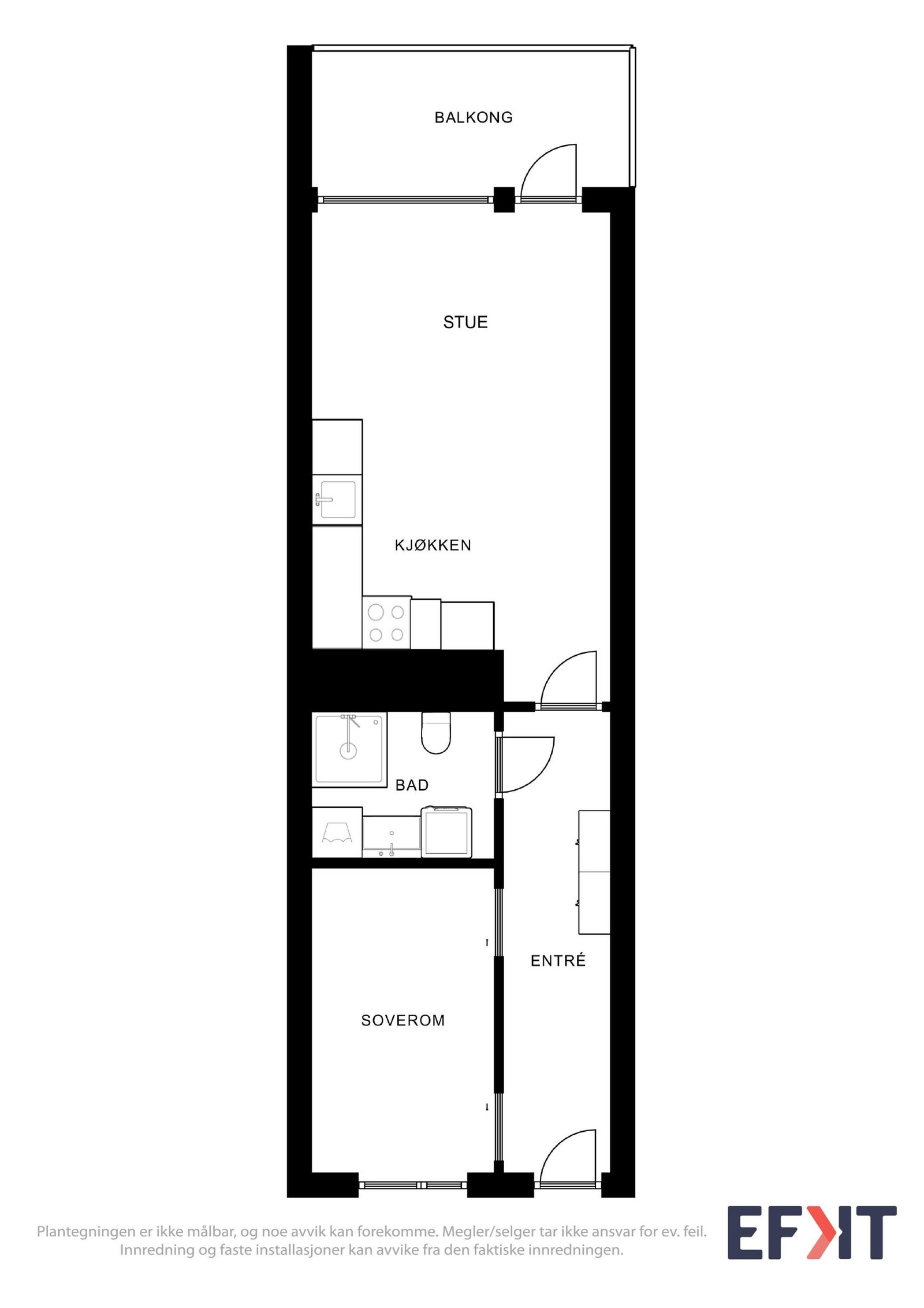
- 40 m² (BRA-i)
- Bruksareal
- 40 m²
- Etasje
- 3
- Byggeår
- 2019
- Tomt
- Eiet
Fasiliteter
Ta kontakt for å avtale visning eller om du har spørsmål. Er tilgjengelig alle dager inkl. helger. Tlf. 95 44 10 40
Om tomten
Leiligheten ligger i en moderne blokk som ble ferdigstilt i 2019. Eiendommen byr på god utsikt uten gjenboere, noe som gir en følelse av privatliv og ro. Bygget har tilhørende parkeringsanlegg med to egne boder, perfekt for lagring av sesongutstyr eller andre eiendeler. I tillegg finnes det en felles sykkelbod med verktøy for vedlikehold av sykler, som er svært praktisk for sykkelentusiaster. Med sine 40 kvm er leiligheten godt egnet for én person eller et par som ønsker en moderne og effektiv bolig med gode fasiliteter. Kombinasjonen av en ny og stilren bolig og praktiske løsninger gjør dette til et perfekt hjem for deg som ønsker å bo kompakt, men samtidig ha god tilgang til både natur og byliv.
Beliggenhet
Beliggenheten er svært attraktiv, både for de som ønsker en praktisk hverdag og for pendlere. Med kun 10 minutters gange til nærmeste dagligvarebutikk og 5 minutters gange til et stort friluftsområde, ligger alt til rette for en aktiv og behagelig livsstil. Det er også en bussholdeplass 5 minutter unna, og du har kort vei til motorveien for enkel tilgang til lengre reiser. Drammen sentrum nås på kun 15 minutter med bil, noe som gjør dette til et ideelt sted for deg som ønsker å bo nær byen, men samtidig i rolige omgivelser. For de som setter pris på naturopplevelser, er det et turområde i nærheten med et utsiktstårn, perfekt for turer og rekreasjon.
Annet
- Egen parkeringsplass
- 2 boder i kjeller
Møbler som følger med leilighet med mindre annet blir avtalt:
- Seng, med eller uten madrass
- 2 høyskap i gang
Ingen forkjøpsrett.
Omkostninger
9 900 kr (HELP boligkjøperforsikring (valgfritt))
78 750 kr (Dokumentavgift)
545 kr (Tinglysing av pantedokument)
545 kr (Tinglysing av skjøte)
---
89 740 kr (Omkostninger totalt)
---
3 239 740 kr (Totalpris inkl. omkostninger)
NB: Regnestykket forutsetter at det kun tinglyses én låneobligasjon og at eiendommen selges til prisantydning.
Det tas forbehold om endringer i offentlige og private gebyrer.
Selger er selv ansvarlig for følgende gebyr:
6 385 kr (Eierskiftegebyr)
545 kr (Panterett med urådighet)
Salgsoppgaven beskriver vesentlig og lovpålagt informasjon om eiendommen
Se komplett salgsoppgaveNyttige lenker
Nærområdet
Annonsene kan være mangelfulle i forhold til lovpålagt opplysningsplikt. Før bindende avtale inngås oppfordres interessenter til å innhente komplett informasjon fra meglerforetaket, selger eller utleier.















