Bildegalleri

Velkommen til Sluppenvegen 12C!
Inaktiv
Sluppen - Areal med stort potensiale i byggets toppetasjer!
Nøkkelinfo
- Areal
- 730 m²
Type lokale
Kontor
Fasiliteter
Garasje/P-plass
Heis
Kantine
Om eiendommen
Velkommen til Sluppenvegen 12C! Dette er en eiendom satt sammen av to moduler, B og C. Her har vi et ledig areal som strekker seg over 2 etasjer, med en egen trapp mellom etasjene - der man fra toppen har adgang rett ut på byggets felles takterasse.
Arealene:
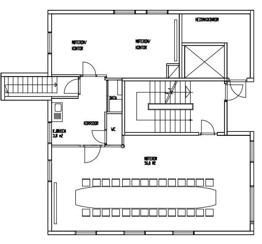
I kontorområdet i 6 etasje har man i dag eldre cellekontorer og laminatgulv - her kan man enten flytte rett inn, eller skape seg arealet som passer best til deg og din bedrift! Tar man trappen opp til arealet på toppen, har man et mindre kjøkken samt møterom og spiseareal, her har man muligheter for å bygge større møterom, utstillingsrom eller andre løsninger som måtte passe!
Ta kontakt for en hyggelig og uforpliktende visning!
Arealene:
6. etg: ca. 600 m2
7. etg: ca. 130 m2
I kontorområdet i 6 etasje har man i dag eldre cellekontorer og laminatgulv - her kan man enten flytte rett inn, eller skape seg arealet som passer best til deg og din bedrift! Tar man trappen opp til arealet på toppen, har man et mindre kjøkken samt møterom og spiseareal, her har man muligheter for å bygge større møterom, utstillingsrom eller andre løsninger som måtte passe!
Ta kontakt for en hyggelig og uforpliktende visning!
Beliggenhet
Eiendommen har en sentral beliggenhet, ca. 4 km syd for Trondheim sentrum like ved E6 og Omkjøringsveien. Sluppenområdet har utviklet seg til et meget attraktivt næringsområde. Sluppenveien 12 BC ligger avskjermet mot trafikkstøy. God infrastruktur og bussforbindelser.
Standard
Lokalene gir rom for fleksible kontorløsninger. Det vektlegges å kunne tilby leietaker en kontorløsning som best mulig ivaretar bedriftens behov.
Innhold
Meget gode parkeringsmuligheter. Bygget er tilknyttet vaktmestertjeneste. Felles kantine i 1 etg, kort spasertur til nærliggende spise og rekreasjonsområder.
NB: Knappen for å vise hele beskrivelsen har kun en visuell effekt.
NB: Knappen for å vise hele beskrivelsen har kun en visuell effekt.
Visning
Ta kontakt for å avtale visning.
KLP Eiendom Trondheim AS
Nærområdet
Annonseinformasjon
| FINN-kode | 383810586 |
|---|---|
| Sist endret | 06. des. 2024 08:50 |
| Referanse | Sluppen12C - SØ |
Annonsene kan være mangelfulle i forhold til lovpålagt opplysningsplikt. Før bindende avtale inngås oppfordres interessenter til å innhente komplett informasjon fra meglerforetaket, selger eller utleier.









