Bildegalleri

Plantegning
Holtet - Bekkelaget
Linjen på Holtet
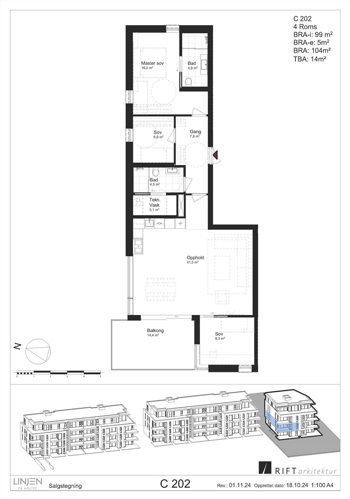
Linjen på Holtet - C 202
Prisantydning16 550 000 kr
Prosjektets status
Planlegging
Pågår
Salgsstart
Sommeren 2024
Byggestart
Januar 2025
Overtakelse
3. kvartal 2026
Nøkkelinfo
- Boligtype
- Leilighet
- Etasje
- 2
- Soverom
- 3
- Rom
- 4
- Internt bruksareal
- 99 m² (BRA-i)
- Bruksareal
- 104 m²
- Eksternt bruksareal
- 5 m² (BRA-e)
- Balkong/Terrasse
- 14 m² (TBA)
Fasiliteter
Balkong/Terrasse
Bredbåndstilknytning
Garasje/P-plass
Heis
Kabel-TV
Utsikt
Beskrivelse
Ansvarlig megler
Finn Bragnes
NB: Knappen for å vise hele beskrivelsen har kun en visuell effekt.
NB: Knappen for å vise hele beskrivelsen har kun en visuell effekt.
Nyttige lenker
Nærområdet
Sem & Johnsen
Boliger utenom det vanlige
Annonseinformasjon
| FINN-kode | 383783015 |
|---|---|
| Sist endret | 24. okt. 2025 15:14 |
| Referanse | 21-24-0633 |
Annonsene kan være mangelfulle i forhold til lovpålagt opplysningsplikt. Før bindende avtale inngås oppfordres interessenter til å innhente komplett informasjon fra meglerforetaket, selger eller utleier.
