Bildegalleri

Notar Romerike v/ Edvard Nyberg og Tobias Nysæther Gulbrandsen har gleden av å presentere Vinsnesveien 21 - boligen ligger landlig og naturskjønt til med flott utsikt over det omkringliggende landskapet og innsjøen Øyeren.
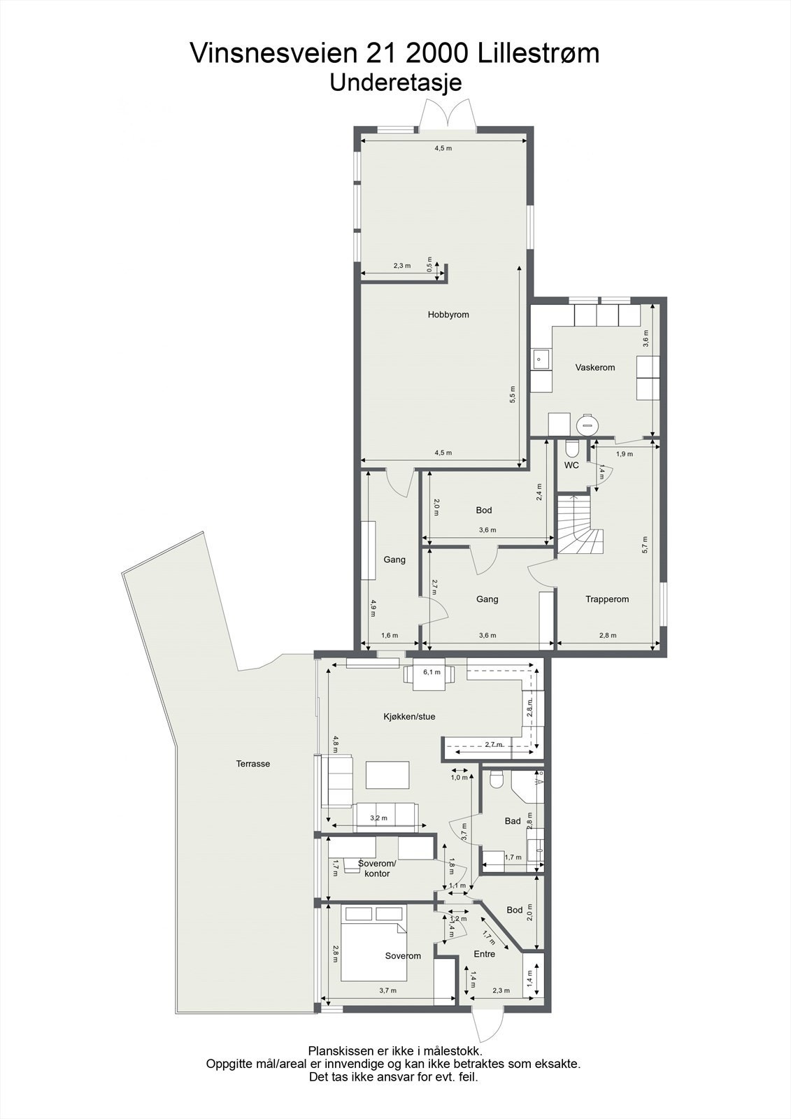
Sjarmerende og unik enebolig med to utleiedeler, trippelgarasje og en herlig utsikt i naturlige omgivelser - må sees!
Nøkkelinfo
- Boligtype
- Enebolig
- Eieform
- Eier (Selveier)
- Soverom
- 7
- Internt bruksareal
- 363 m² (BRA-i)
- Bruksareal
- 448 m²
- Eksternt bruksareal
- 85 m² (BRA-e)
- Balkong/Terrasse
- 91 m² (TBA)
- Byggeår
- 1954
- Energimerking
- G - Oransje
- Rom
- 10
- Tomteareal
- 1 866 m² (eiet)
Om boligen
- Sjarmerende og unik enebolig
- Innholdsrik planløsning
- Trippelgarasje - Easee-lader i dobbelgarasjen
- Landlig tomt på1866,4 kvm med herlig utsikt
- Terrasse på 47 kvm utenfor stuen
- Bakerovn i stein på terrassen
- Balkong utenfor utleiedel 2 på 44 kvm
- Tre oppgraderte bad
- Ny varmepumpe i 2024 - ca. kr 200.000,-
Velkommen!
Salgsoppgaven beskriver vesentlig og lovpålagt informasjon om eiendommen
Se komplett salgsoppgaveNærområdet
Notar Romerike
Prisstatistikk
Vinsnesveien 21
på annonsen
prisantydning per kvadratmeter
Prisfordeling
Pris per m² ligger 12 320 kr under snittet for eneboliger i Skedsmo.
Grafen viser antall eneboliger solgt i Skedsmo siste året fordelt på pris per m² - totalt 251 eneboliger
Antall boliger
Kvadratmeterpris tilsvarer prisantydning pluss fellesgjeld per kvadratmeter (p-rom eller BRA-i). Prisene i grafen er avrundet til nærmeste 1000 kr.
Annonseinformasjon
| FINN-kode | 383423676 |
|---|---|
| Sist endret | 08. juni 2025 13:24 |
| Referanse | NO23.24181 |
Annonsene kan være mangelfulle i forhold til lovpålagt opplysningsplikt. Før bindende avtale inngås oppfordres interessenter til å innhente komplett informasjon fra meglerforetaket, selger eller utleier.


























































