Bildegalleri

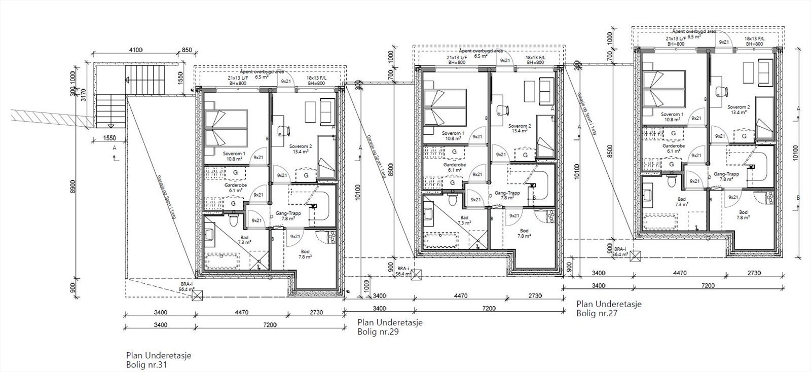
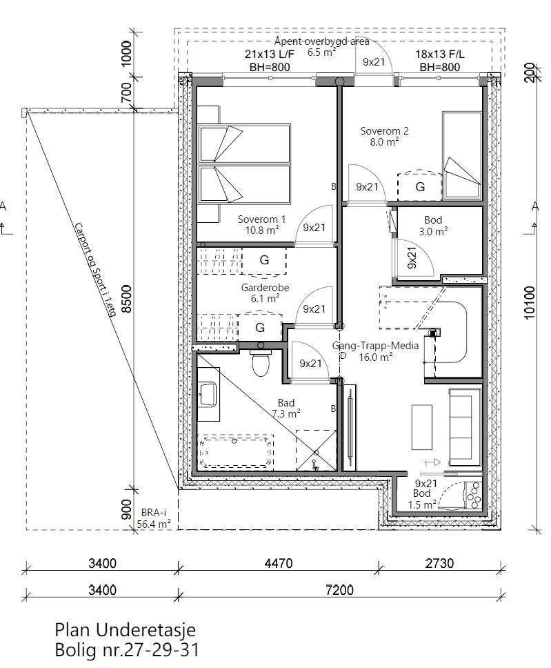
Planløsning 1. etg.
Solgt
Sørbøhagane KS6
Sørbøhagane KS6
Prisantydning6 690 000 kr
Prosjektets status
Planlegging
.
Salgsstart
I salg
Byggestart
.
Overtakelse
400 kalenderdager etter signert kontrakt
Nøkkelinfo
- Boligtype
- Enebolig
- Etasje
- 2
- Soverom
- 3
- Rom
- 5
- Internt bruksareal
- 125 m² (BRA-i)
- Bruksareal
- 155 m²
- Eksternt bruksareal
- 30 m² (BRA-e)
Fasiliteter
Garasje/P-plass
Turterreng
Beskrivelse
Ansvarlig megler
Anette Frafjord
NB: Knappen for å vise hele beskrivelsen har kun en visuell effekt.
NB: Knappen for å vise hele beskrivelsen har kun en visuell effekt.
Nyttige lenker
Nærområdet
EiendomsMegler 1 Nybygg Forus
Annonseinformasjon
| FINN-kode | 383407971 |
|---|---|
| Sist endret | 25. mars 2025 20:00 |
| Referanse | 2207240117 |
Annonsene kan være mangelfulle i forhold til lovpålagt opplysningsplikt. Før bindende avtale inngås oppfordres interessenter til å innhente komplett informasjon fra meglerforetaket, selger eller utleier.


