Bildegalleri

Fokus Bygg AS har gleden av å presentere dette flotte prosjektet med solrik beliggenhet og nydelig utsikt. Ta kontakt med salgsleder Anja Hovland Møller for mer informasjon om boligen. NB: Bildet er kun en illustrasjon og endringer kan forekomme.
Skarbøvik
Lekker funkis enebolig med nydelig utsikt | 3 sov | 2 bad | veranda |
Prosjektets status
Planlegging
Salgsstart
Salgsstart
02.12.2024
Byggestart
ved salg og godkjent byggemelding
Overtakelse
7-8 mnd etter igangsetting
Nøkkelinfo
- Boligtype
- Enebolig
- Eieform
- Eier (Selveier)
- Soverom
- 3
- Internt bruksareal
- 126 m² (BRA-i)
- Bruksareal
- 126 m²
Fasiliteter
Visning
Ta kontakt for å avtale visning.Beskrivelse
Fokus Bygg AS har gleden av å presentere dette flotte prosjektet med sentral beliggenhet i Skarbøvika. Boligen får solrik plassering på flott tomt med nydelig utsikt. Boligen leveres klar til egeninnsats (maling, flis og gulvlegging) - så her er det mulig sette sitt eget personlige preg på boligen.
Boligen ligger sentralt til med kort avstand til skole, butikker og rekreasjonsområder. Du er under 10 minutt unna Ålesund sentrum med bil, og samtidig et steinkast unna turområder på Tueneset med tursti, strand og muligheter for å ta seg en rask fjelltur på Sukkertoppen eller fjellknauser i området.
Innhold
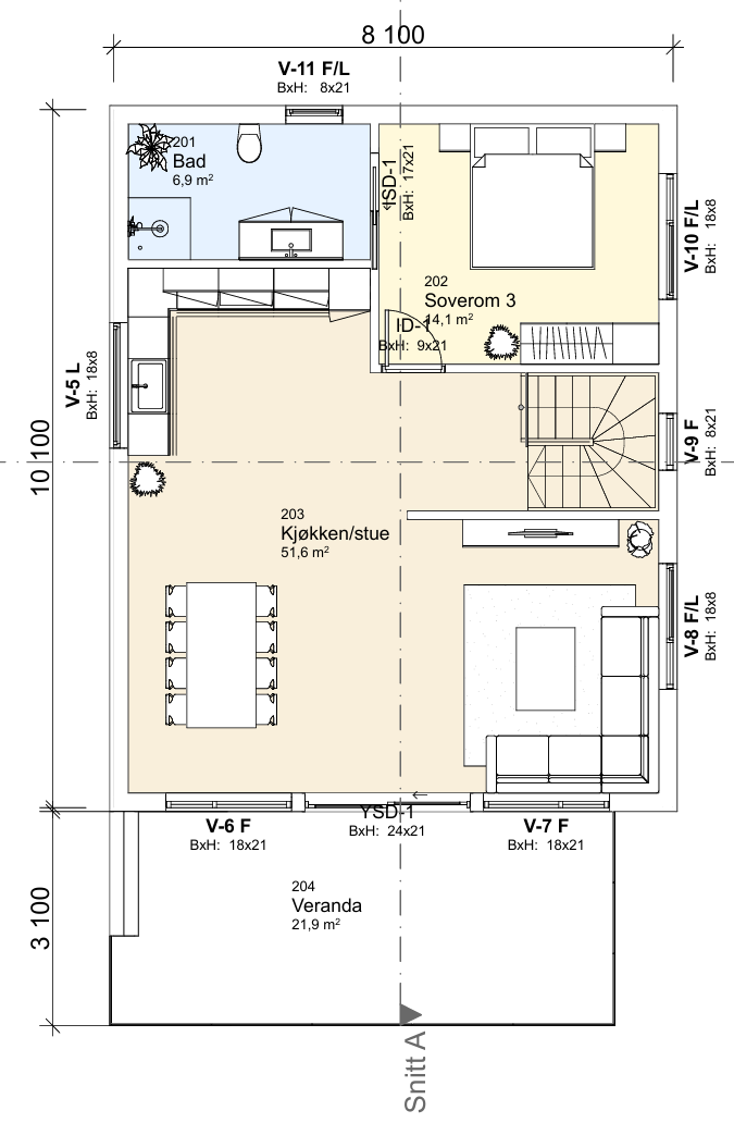
Boligen vil gå over to etasjer og inneholder blant annet:
1 etg
- Gang
- Bad
- Soverom
- Soverom
- Carport
- Sportsbod
2 etg:
- Kjøkken/stue
- Soverom
- Bad
- Veranda
Det er muligheter å gjøre endringer på boligen før innsending av byggesøknad til kommunen. Vi har også andre kataloghus som kan tilpasses tomten etter ønske fra kunde, eller skreddersy boligen alt etter hvilke behov man har. Ta kontakt med oss for mer informasjon.
Standard
Innvendig
- Gips klar for sparkling og maling
- På gulv leveres støpt plate i 1 etasje og spongulv i 2. etasje klar for legging av parkett/laminat som egeninnsats
- Begge bad klar for for flytsparkling/membran og flislegging
- Varmekabler i gulv på våtrom
- VVS tank på 200L
- Innvendige kompaktdører av typen Sletten fra Bygg1 eller tilsvarende
- Stryntrapp Fauna med hvitlaserte hardvedtrinn i ask
- Ildsted med stålpipe fra Nordpeis av typen duo2dv
- Kjøkken i valgfri utførelse innenfor avsatt sum
- Elktro og VVS til inntegnet utstyr + std installasjon
- Vegghengte toalett på vegge bad
Utvendig
- Utv dobbelfalset kledining. Leveres med grunning+ mellomstrøk
- Glass rekkverk på balkong
- Tak tekkes med PVC
- Innkjørsel og biloppstillingsplass leveres gruset
- Utvendig dør fra Bygg1 av typen Larvik svart eller tilsvarende
- Ferdig behandlet trevindu med svarte karmer
Boligen kan leveres nøkkelferdig for kr. 5 900 000,- + omk
Fordeler ved ny bolig
Det er flere fordeler med å kjøpe ny bolig i forhold til brukt bolig
- Lav dokumentavgift - Du betaler kun dokumentavgift av tomteverdien.
- Ingen oppussing i nærmeste fremtid – Du slipper å tenke på oppussing på lang lang tid fremover
- Reklamasjonsrett – Du har 5 år reklamasjonsrett
- Lave strøm kostnader – Strengere krav til isolasjon og varmegjenvinning gjør at strøm utgiftene går ned i forhold til bruktbolig.
- Absolutt alt er nytt - Du får en god følelse av å være den aller første som noen gang har bodd i boligen.
Om oss
Hos oss kan du velge blant et bredt utvalg ferdigtegnede hus, eller bestille en skreddersydd bolig. Husk at Fokus Bygg AS ikke leverer ferdighus i tradisjonell forstand - vi hjelper deg å virkeliggjøre husdrømmen. Alle boligene kan skreddersys etter dine behov, slik at det ferdige resultatet blir akkurat slik du ønsker.
Som kunde av Fokus Bygg AS kan du forvente godt håndverk, en smidig prosess og overlevering til avtalt tid og pris. At mange av oppdragene våre er et resultat av anbefalinger fra fornøyde kunder, er en tillitserklæring vi er oppriktig stolte av! Har du spørsmål eller ønsker mer informasjon? Ta kontakt i dag!
Nærområdet
Fokus Bygg AS
Fokus Bygg AS
Utbygger
Annonsene kan være mangelfulle i forhold til lovpålagt opplysningsplikt. Før bindende avtale inngås oppfordres interessenter til å innhente komplett informasjon fra meglerforetaket, selger eller utleier.














