Bildegalleri

Din lokale eiendomsmegler Notar ønkser velkommen til Tollinspektør Flors gate 12!
Inaktiv
Flott tomannsbolig i et etablert villaområde i øvre bydel. Boligen er betydelig påkostet - noe gjenstående arbeid!
Prisantydning5 650 000 kr
Nøkkelinfo
- Boligtype
- Tomannsbolig
- Eieform
- Eier (Selveier)
- Soverom
- 4
- Internt bruksareal
- 368 m² (BRA-i)
- Bruksareal
- 376 m²
- Innglasset balkong
- 8 m² (BRA-b)
- Byggeår
- 1918
- Energimerking
- C - Rød
- Rom
- 9
- Tomteareal
- 606 m² (eiet)
Fasiliteter
Balkong/Terrasse
Barnevennlig
Garasje/P-plass
Offentlig vann/kloakk
Parkett
Rolig
Sentralt
Turterreng
Visning
Vi i Notar ønsker å avholde så gode visninger som mulig. Derfor har vi påmeldingsvisninger. Da vet vi hvor mange som kommer, og kan sette av nok tid til alle. Trykk på linken visningspåmelding for å avtale tidspunkt. Visninger uten påmeldte innen kl. 12:00 på oppsatt visningsdag, vil ikke bli avholdt. Hvis det ikke er oppsatt visningstidspunkt eller oppsatt tidspunktet ikke skulle passe, kontakt megler for avtale om privatvisning. Velkommen til visning.
VisningspåmeldingOm boligen
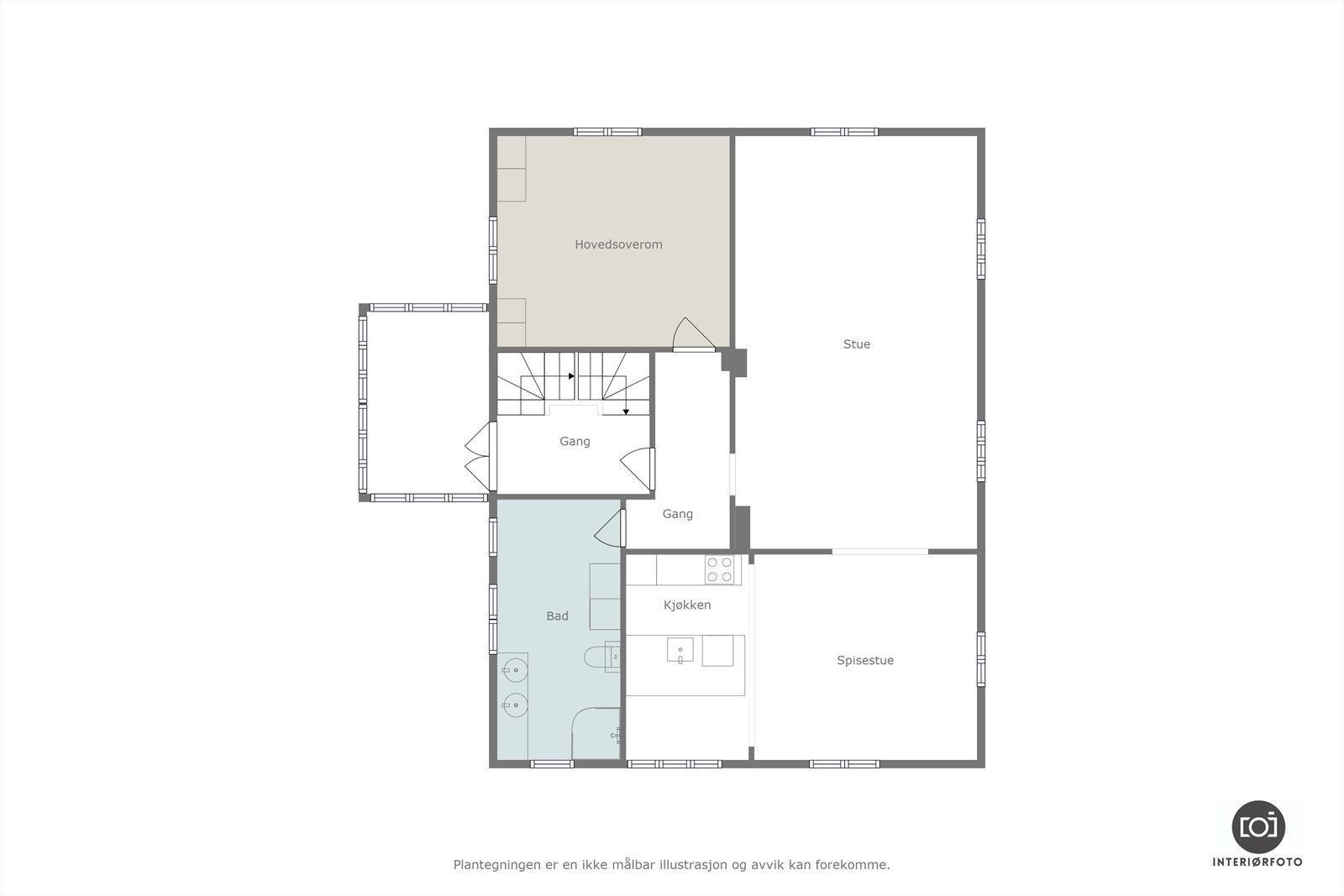
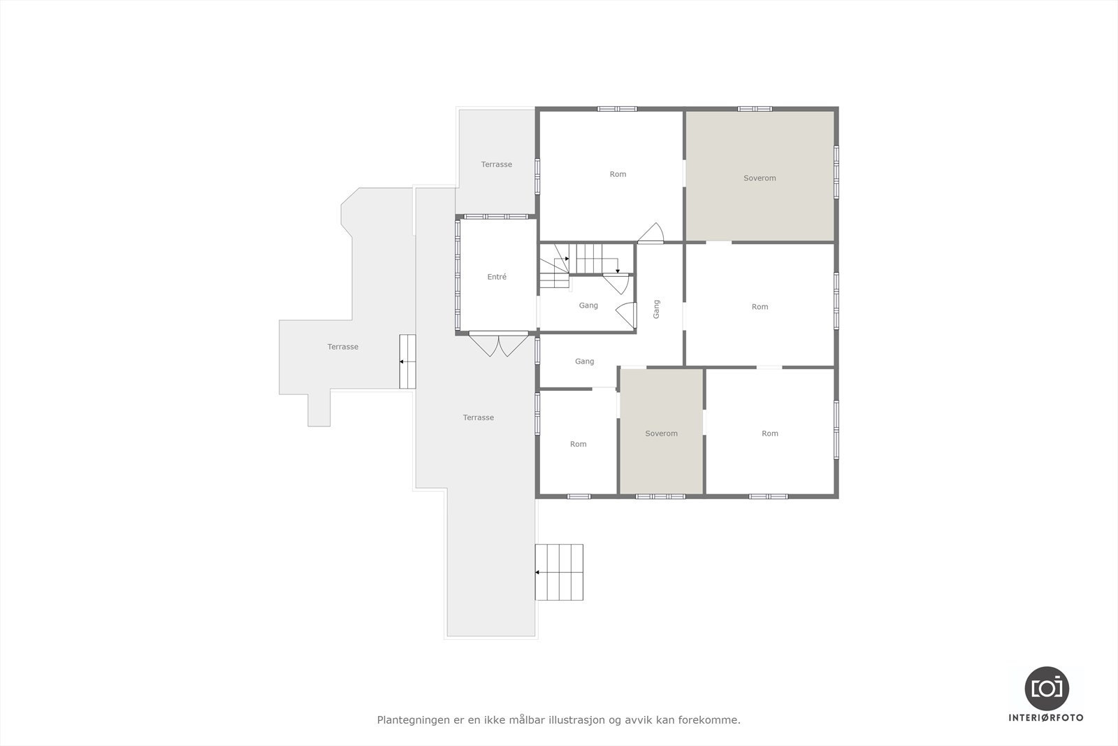
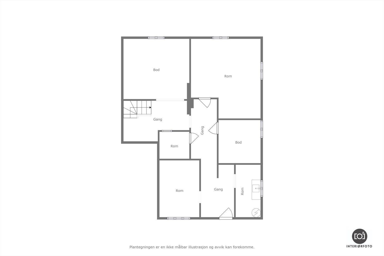
Meget flott bolig i et attraktivt og rolig boligområde (Plyssbyen) i øvre bydel. Her er det nærhet til skoler, barnehage, butikk og gangavstand til by sentrum med alle bymessige fasiliteter. Fine tur-/rekreasjonsområder i umiddelbar nærhet ved Vanndaman/ Kringsjå. Boligen er betydelig påkostet i 2017/2018 med bl.a. nytt skifertak, ny kledning, ny isolasjon, nye vindu/dører, renoverte piper og renovering av uteareal. I 2 etasjen og loft ble det renovert/oppbygd 2 leiligheter, mens det i 1. etasjen gjenstår en del arbeid. Loft er innredet som ekstra boenhet. Denne er ikke søkt om og er ikke registrert i matrikkelen som en egen boenhet. Loftet kan ikke lovlig leies ut før det foreligger ferdigattest. Utearealet er opparbeidet med terrasser, blomsterbed og parkering.
Velkommen til visning!
Velkommen til visning!
NB: Knappen for å vise hele beskrivelsen har kun en visuell effekt.
NB: Knappen for å vise hele beskrivelsen har kun en visuell effekt.
Salgsoppgaven beskriver vesentlig og lovpålagt informasjon om eiendommen
Se komplett salgsoppgaveNærområdet
Notar Kristiansund
God magefølelse
Annonseinformasjon
| FINN-kode | 383227571 |
|---|---|
| Sist endret | 02. des. 2024 11:44 |
| Referanse | NO4.24396 |
Annonsene kan være mangelfulle i forhold til lovpålagt opplysningsplikt. Før bindende avtale inngås oppfordres interessenter til å innhente komplett informasjon fra meglerforetaket, selger eller utleier.






















































