Bildegalleri

Fasade
Strøno
Sjeldent attraktiv bolig med panorama utsikt mot Lysefjorden
Prosjektets status
Planlegging
Klar for innsending til kommunen
Salgsstart
Nå
Byggestart
Ved signering
Overtakelse
8-12 uker fra godkjent byggesøknad
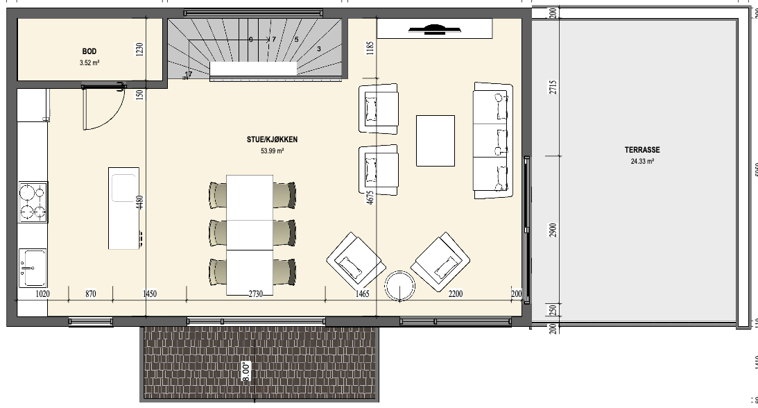
Nøkkelinfo
- Boligtype
- Enebolig
- Eieform
- Eier (Selveier)
- Soverom
- 3
- Rom
- 5
- Antall etasjer
- 2
- Energimerking
- Bruksareal
- 149 m²
- Utendørsareal
- 686 m²
Fasiliteter
Visning
Ta kontakt for å avtale visning.Beskrivelse
Sjeldent attraktiv enebolig med panorama utsikt over Lysefjorden er kun uker unna å bli din
Går du med en drøm om en bolig i moderne design som er både energi vennlig, og som kan gi flust med muligheter når det kommer til design og utforming?
Da bør du lese videre...
Se for deg at det er 12 uker siden du skreve under kjøpekontrakten/ produksjon start og at dagen er kommet for at du skal få nøkkelen til din splitter nye drømme bolig. Boligen du selv var med å designe, en bolig som er tilpasset deg og dine ønsker.
Tenk en helt ny strøken bolig står klar og venter på deg for innflytning, en bolig du med hånda på hjerte kan si at du er både stolt over og har vært med å bygge. Du var med og designet den tross alt.
Høres ikke det fantastisk ut?
OBS: Garasje kommer i tillegg, men er tatt høyde for i plantegning.
Om eiendommen
Her, midt i vakre Bjørnafjorden kommune, vil du kunne oppleve den ultimate balansen mellom ro og aktivitet. Området er kjent for sine flotte turstier som Strøno Rundt og Hjortåsen, hvor du kan nyte fantastisk utsikt over fjorder og fjell. Bare noen få minutters kjøretur unna kan du starte dagen med en forfriskende tur i vakker norsk natur.
For barnefamilier er beliggenheten optimal. Med skoler og barnehager som Nore Neset skole innenfor en kjøretur på 10-15 minutter, kan du trygt gi barna dine en oppvekst i trygge og naturskjønne omgivelser.
I tillegg finner du alle nødvendige butikker og servicefasiliteter i Osøyro, kun 20 minutter unna. Her får du alt du trenger i hverdagen, fra dagligvarer til koselige kafeer og restauranter.
For den som jobber i Bergen, er Nordstrøno bare en 40-45 minutters kjøretur fra sentrum, noe som gjør det enkelt å pendle, samtidig som du kan nyte det fredelige livet på landet.
Området er også perfekt for båt- og sjøentusiaster, med nær tilgang til sjøen og flotte muligheter for båtliv og fiske.
Nordstrøno tilbyr deg en unik mulighet til å skape ditt drømmehjem i naturskjønne omgivelser, med kort avstand til både natur og nødvendige fasiliteter.
Nærhet
Dette er stedet hvor du kan finne ro og samtidig ha verden innen rekkevidde.
Osøyro sentrum:
Avstand: ca. 10 km (ca. 20 minutter med bil)
Fasiliteter: Dagligvarebutikker, restauranter, apotek, klesbutikker, og andre servicetilbud
Nore Neset skole:
Avstand: ca. 6 km (ca. 10-15 minutter med bil)
Fasiliteter: Barneskole, barnehage og fritidsaktiviteter
Eventus barnehage:
Avstand: Vis a vis
Fasiliteter: En av Vestlandets aller beste og høyest rangerte barnehager
Friluftspark:
Avstand: Vis a vis
Fasiliteter: I midten av nabolaget er det satt opp friluftspark med apparater, gapahuk og andre spennende fasiliteter for hele familien
Bergen sentrum:
Avstand: ca. 30-35 km (ca. 40-45 minutter med bil)
Fasiliteter: Arbeidsmuligheter, kjøpesentre, kulturtilbud, og uteliv
Nærmeste dagligvarebutikk (Joker Strøno):
Avstand: ca. 5 km (ca. 10 minutter med bil)
Fasiliteter: Dagligvarer og posttjenester
Turstier og friluftsområder:
Strøno Rundt og Hjortåsen – ca. 5-10 minutter unna med bil. Flotte turstier med utsikt over fjord og natur
Nærmeste båtplass:
Avstand: ca. 2 km (ca. 5 minutter med bil)
Fasiliteter: Tilgang til båtplasser for fritidsbåter, med mulighet for fiske og sjøaktiviteter
Disse fasilitetene gir en god kombinasjon av daglige behov, fritidsaktiviteter og tilknytning til større byområder som Bergen.
Solforhold
Eiendommen i Strønevegen på Strøno i Bjørnafjorden kommune har en sørvestvendt orientering, som gir gode solforhold fra formiddag til sen kveld. Den strategiske plasseringen gir også en vakker utsikt mot Lysefjorden, noe som gir en naturskjønn ramme rundt eiendommen.
Byggetid
En annen stor fordel med dette prosjektet er den effektive byggetiden, takket være modulbygging. Byggetiden er estimert til kun ca. 8-12 uker fra godkjent byggesøknad, noe som gir deg trygghet og forutsigbarhet i prosessen mot ditt nye hjem.
Boligen bygges etter de nyeste standardene, med TEK17 som grunnlag. Dette sikrer at alle kvalitetskrav er oppfylt, og at du får et energieffektivt og fremtidsrettet hjem.
I tillegg er det viktig å merke seg at alle bildene er illustrasjoner, og du som kjøper har muligheten til å påvirke den endelige utformingen – slik at boligen blir akkurat slik du ønsker den.
Om oss
Eterna Eiendom er en Bergens basert boligutvikler med fokus på moderne og kostnadseffektive boliger for de fleste budsjetter.
I tillegg har selskapet avdelinger i Haugesund og Kristiansand.
Vår stolthet ligger i å kunne skape boligdrømmer for mennesker som tradisjonelt sett sliter med å komme seg inn på boligmarkedet, samtidig som vi også evner å tilby løsninger for de som ønsker å utfordre budsjettene sine.
Vi har egen fabrikk som produserer boligene våre i tørre omgivelser, som kommer deg som boligkjøper til gode gjennom effektivitet og kostnadsbesparende metoder som til syvende og sist ender i priser som passer de fleste budsjetter.
Eterna Eiendom leverer boliger etter strenge norske byggeforskrifter som TEK17 og vi gir naturligvis både 5 års reklamasjon og 1 års oppfølging som en del av våre prosjekter.
Nærområdet
ETERNA EIENDOM AS
Annonsene kan være mangelfulle i forhold til lovpålagt opplysningsplikt. Før bindende avtale inngås oppfordres interessenter til å innhente komplett informasjon fra meglerforetaket, selger eller utleier.














