Bildegalleri

Se tegninger for mer eksakt utforming.
SOLGT!
Romslig arkitekttegnet bolig på 155 kvm til en god pris! Garasje, 4/5 soverom og 2 bad.
Prosjektets status
Planlegging
Q1 2024
Salgsstart
Q1/2 2024
Byggestart
2025
Overtakelse
2025
Nøkkelinfo
- Boligtype
- Tomannsbolig
- Eieform
- Eier (Selveier)
- Soverom
- 4
- Antall etasjer
- 3
- Energimerking
- B - Gul
- Bruksareal
- 155 m²
- Balkong/Terrasse
- 15 m² (TBA)
Fasiliteter
Beskrivelse
Moderne prosjektert bolig til salgs - Solrik og barnevennlig på Langhus
Oppdag den ideelle familieboligen - en nøkkelferdig bolig. Denne eiendommen er designet med tanke på både funksjonalitet og stil, og ligger perfekt til i det barnevennlige og attraktive området Langhus i Nordre Follo kommune.
Hvorfor kjøpe nytt?
- Boligen er i forskriftmessig stand med 5 års reklamasjonsfrist
- Energiøkonomiske og klimavennlige løsninger
- Innflyttingsklar uten tanke på å måtte pusse opp først
- Det er svært lite vedlikeholdskostnader i nær framtid
- Fastpris - ingen «budkrig»
- Lave omkostninger (ikke dokumentavgift av kjøpesum, kun av tomteverdi)
- Overtagelse kan forventes ca. 10-12 måneder etter byggestart.
Innhold:
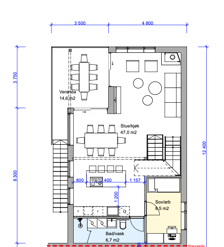
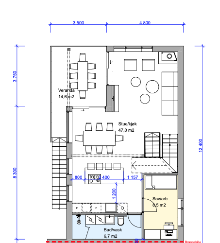
Første etasje: Entrè/gang, bad/vaskerom, 3 soverom, bod/garderobe, garasje med bod.
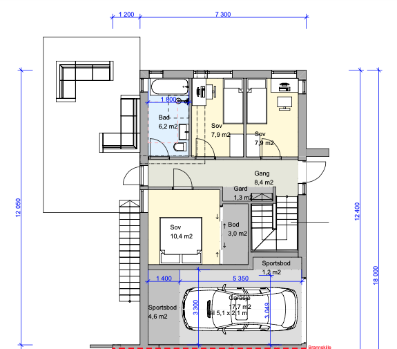
Andre etasje: Stue/kjøkken, soverom og bad/wc.
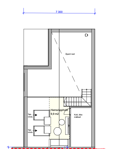
Tredje etasje: Loftstue
Beliggenhet
Ski og Nordre Follo: Perfekt for Barnefamilier og Boliginvesteringer
Å finne det ideelle stedet for å kjøpe en bolig og etablere et hjem for din voksende familie er en betydelig beslutning. Ski og Nordre Follo, er et område som skiller seg ut som en bemerkelsesverdig destinasjon for barnefamilier som ønsker å investere i sin fremtidige bolig. Her er hvorfor dette området er en ideell kombinasjon for både familier og boliginvestorer.
Eksklusive Funksjoner og Design
Denne boligen tilbyr en sømløs blanding av luksus og komfort. Boligen inkluderer en integrert garasje og tiltalende uteplasser på begge nivåer, som garanterer utmerkede solforhold. Nyt utendørs samlinger på den romslige markterrassen i første etasje, eller nyt den vakre utsikten fra den store verandaen på 15 kvm.
Interiør og Tilpassede Valg
Inne finner du en åpen løsning for stue, spisestue og kjøkken, fire/fem soverom, to bad, alt ferdigstilt med god standard og fine materialer. Kjøkkenet fra Drømmekjøkkenet og de flislagte badene med 60 x 60 fliser legger grunnlaget for et hjem du vil være stolt av. Boligen kan tilpasses til en rekke bruksområder, alt etter dine behov og ønsker.
En Perfekt Investering
Langhus og Nordre Follo er ikke bare ideelle for barnefamilier med tanke på livskvalitet, men også som en solid investering i din fremtid.
Ta steget
Opplev hva denne boligen har å tilby ved å kontakte oss for en visning. La ditt nye kapittel starte her, i hjertet av Langhus.
Velkommen hjem!
Nærområdet
Pro Bolig AS
Annonsene kan være mangelfulle i forhold til lovpålagt opplysningsplikt. Før bindende avtale inngås oppfordres interessenter til å innhente komplett informasjon fra meglerforetaket, selger eller utleier.












