Bildegalleri

Planlagt hytte | Nye hyttetomter i et av Midt-Norges mest populære hytteområde på Oppdal | Rondane 72
Nøkkelinfo
- Beliggenhet
- På fjellet
- Boligtype
- Hytte
- Eieform
- Eier (Selveier)
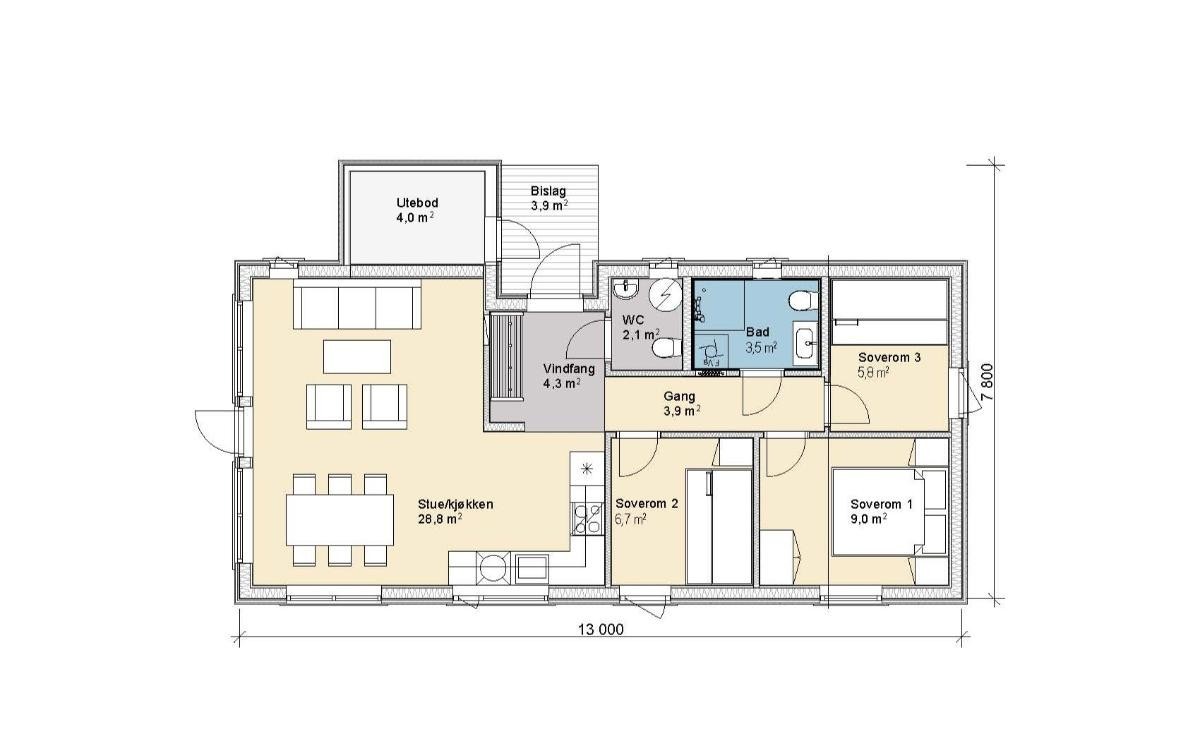
- Internt bruksareal
- 68 m² (BRA-i)
- Bruksareal
- 72 m²
- Eksternt bruksareal
- 4 m² (BRA-e)
- Balkong/Terrasse
- 4 m² (TBA)
- Tomt
- Eiet
- Soverom
- 3
- Rom
- 4
Fasiliteter
Visning
Om eiendommen
Beliggenhet
Kleberberget Nord ligger i populære Gjevilvassdalen i
Oppdal kommune. Et av Midt-Norges mest populære hytteområde med fantastisk natur og kort vei til Oppdal sentrum.
Adkomst/Tomteforhold
Følg veien fra Oppdal sentrum mot Sunndalsøra til man kommer til Festa. Følg deretter Festavegen og Osvegen ca 1,6 km, ta deretter
Ordførervegen ca 150 meter og feltet ligger på venstre side.
Generelt
Rondane 72 er en arealeffektiv og innholdsrik hytte på ett plan, som gir deg mye for pengene. Her får du tre romslige soverom, bad, separat WC og en åpen stue- og kjøkkenløsning som innbyr til både ro og samvær. Ved inngangspartiet finner du en praktisk bod – perfekt for smøring av ski og oppbevaring – og med kort vei til WC fra ute. En lun og trivelig hytte som gjør hyttedrømmen tilgjengelig for mange.
Generell utførelse
Stående låvepanel mix bredder (ubehandlet). 20 cm isolasjon i yttervegg
• Takshingel, dråpe skifergrå. 25 cm isolasjon i taket
• Takstige
• 2-lags vinduer med gjennonmående sprosser malt, hvite S-0502-Y
• Synlige takrenner i sort stål med nedløp
• Tinde ytterdør m/glass, malt hvit S-0502Y
• Tinde boddør u/glass, malt hvit S-0502Y
• Isolasjon 25 cm i tak, 20 cm yttervegg og 10 cm i innervegger.
• Flytende gulv: 13 mm eikeparkett 3-stavs, type Kährs.
• Innvendige furupanel fra Moelven: 13 mm Sprekkpanel på vegger og himling, ubehandlet.
• Glatt standard listverk, ubehandlet.
• Furu 3-speils innerdører, ubehandlet.
• Hvite baderomsplater på baderomsvegger.
• Kjøkken fra Aubo Kjøkken av typen Unik NCS S 3502-Y, med laminat benkeplate og Slimline kjøkkenventilator (hvitevarer følger ikke med).
Elektroinstallasjoner og utstyr
Elektrikerarbeid med utstyr iht. standard elektrikeroppsett. I utstyrsoversikt kan nevnes:
• Inntaksskap og kabel mellom inntak og sikringsskap.
• Sikringsskap m/overbelastningsvern, jordfeilautomater og overspenningsvern.
• Downlights vindfang, gang, bad og WC
• Astrour-styrte utelamper.
Murer, Flis, pipe og ildsted
• Peisovn m/glassplate
• Flislagt gulv i vindfang med 30×60 flis
• Flislagt gulv bad og wc med 30×60 flis
• Sokkelflis på bad.
Rørlegger/innvendig sanitær
Rørleggerarbeid med utstyr iht. standard rørleggeroppsett. I utstyrsoversikt kan nevnes:
• Bunnledninger (rør som ligger i betongplate innenfor ringmur fram til toalett, sluker osv.).
• Rette slagdører i dusjnisje evnt. dusjnisjedør (iht. tegning) med dusjgarnityr.
• Vegghengt toalett med innebygd sisterne.
• Slukrenne på bad.
• Baderomsinnredning m/skuffer, porselensvask og speil.
• Innredning med vask og speilskap på wc
• Varmtvannsbereder 200 liter.
• 1-greps blandebatterier på kjøkken, bad og evnt. andre våtrom.
• Opplegg for tilkobling av kjøkkenbenk m/ 1-greps benkebatteri med høy tut, samt opplegg for tilkobling av oppvaskmaskin.
• Lekkasjesikring/vannstoppeventil
Felles for alle leveranser
• Tinde Hytter har ansvar for byggesøknadsprosessen.
• Utførelse og leveranse i henhold til dagens tekniske krav.
• Garanti: 10% av kontraktssum i byggeperioden, 5% i reklamasjonstiden (5 år).
• Kontrakt fra Norsk Standard 3425 (med henvisninger til Bustadoppføringsloven).
• Trykktestet i henhold til Tek 17.
Prisen er for ferdig oppsatt hytte inkl. tomt og grunnarbeid. Tomteverdi fra kr 1 100 000,- Verdi grunnarbeid estimert kr 450 000,-
Det tas forbehold om endelig godkjenning fra kommunen.
Prisene er beregnet med sist kjente indeks fra SSB, og vil bli justert til enhver tids gjeldende indeks.
For pris, diverse avgifter og kostnader - se https://www.tindehytter.no/hyttefelt/kleberberget-nord
Salgsoppgaven beskriver vesentlig og lovpålagt informasjon om eiendommen
Se komplett salgsoppgaveNærområdet
Tindehytter AS
Annonsene kan være mangelfulle i forhold til lovpålagt opplysningsplikt. Før bindende avtale inngås oppfordres interessenter til å innhente komplett informasjon fra meglerforetaket, selger eller utleier.

























