


Velkommen til Rundvannet 95 - Presentert av Øyvind Dypvik v/ Garanti Eiendomsmegling!
Salgsoppgaven beskriver vesentlig og lovpålagt informasjon om eiendommen
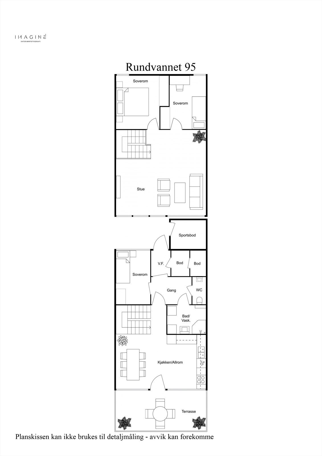
Se komplett salgsoppgaveRundvannet 95
på annonsen
prisantydning per kvadratmeter
Pris per m² ligger 25 851 kr under snittet for leiligheter i Tromsøya, Nord.
Grafen viser antall leiligheter solgt i Tromsøya, Nord siste året fordelt på pris per m² - totalt 211 leiligheter
Antall boliger
Kvadratmeterpris tilsvarer prisantydning pluss fellesgjeld per kvadratmeter (p-rom eller BRA-i). Prisene i grafen er avrundet til nærmeste 1000 kr.












| FINN-kode | 381770379 |
|---|---|
| Sist endret | 19. jan. 2025 10:19 |
| Referanse | GAR51.24304 |
Annonsene kan være mangelfulle i forhold til lovpålagt opplysningsplikt. Før bindende avtale inngås oppfordres interessenter til å innhente komplett informasjon fra meglerforetaket, selger eller utleier.