Bildegalleri

Røsviklia
TOMT 25
Kort om prosjektet
Fokus bygg AS har gleden av å presentere 7 lekre eneboliger som blir en del av et stort og nytt byggefelt som planlegges på Vigra - Røsviklia. Boligen vil bli en del av et område med blanding av eneboliger, to-firemannsboliger. Det vil totalt være 20 nye enheter på dette feltet.
Prosjektets status
Planlegging
Salgsstart
Salgsstart
22.11.2024
Byggestart
Ved salg og kommunal godkjenning
Overtakelse
7-8 mnd etter overtakelse
Nøkkelinfo
- Boligtype
- Enebolig
- Soverom
- 3
- Internt bruksareal
- 138 m² (BRA-i)
- Bruksareal
- 138 m²
Fasiliteter
Visning
Ta kontakt for å avtale visning.Beskrivelse
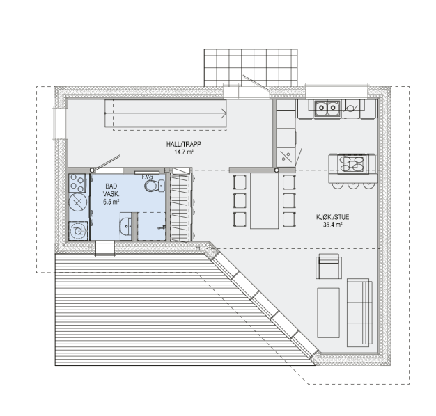
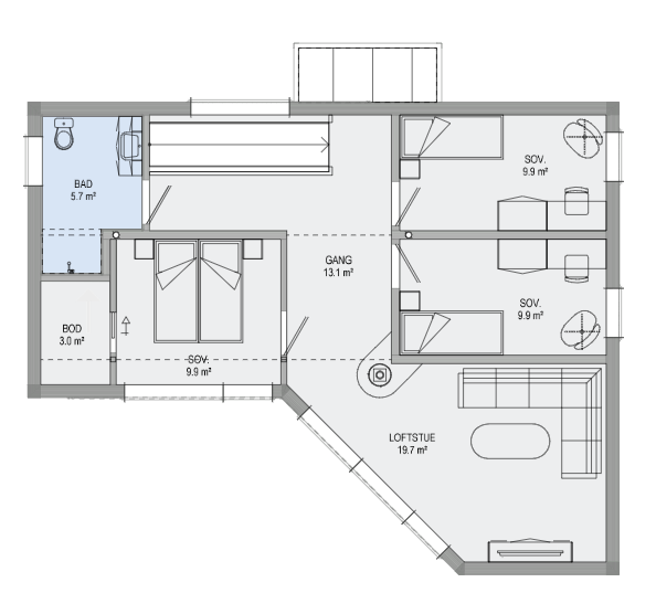
Om boligen
Fokus Bygg AS har gleden av å presentere boligen "Hornelen" fra Vestlandhus.
Dette er et unikt og spennende hus. Boligen har store lamelldører som slipper naturen inn. Den har en innholdsrik planløsning med 3 soverom.
Innhold
Her får man kombinasjonen av å ha store vindusflater som rammer inn utsikt og natur, sammen med en praktisk planløsning i et funkishus med arkitektonisk fremtoning. Her kan man skape en egen stil, i et spennende miljø. Med bad i begge etasjer, tre soverom, flott kjøkken med kjøkkenøy og egen loftstue, har man god plass til å nyte hverdagen.
Standard
Utvendig
- Utv. Kledning leveres med mellomstrøk og murpuss
- Glassrekkverk på balkong iht fasadetegning.
- Ferdig behandlet trevindu med svarte karmer innvendig og utvendig.
- Plenområder leveres med stedlig masse.
- Asfaltert innkjørsel og adkomstveger.
- Det blir lagt rør til fiber inn til svakstrømsdel på fordelingsskap.
- Utvendig dør av typen Lillehammer svart fra Bygg1 eller tilsvarende fra annen leverandør.
- Boddør av typen Moss svart eller tilsvarende fra annen leverandør.
- Tak tekket med PVC.
Innvendig
- Sparklet og malt gips på vegg og tak
- Parkett fra Boen av typen Concerto hvitmatt lakk
- Flislagt bad med 60x60 flis på gulv og 60x60 flis på vegg.
- Ildsted med stålpipe fra Nordpeis av typen Duo2dv.
- Vegghengt toalett
- Std. Kjøkken i valgfri utførelse eller iht kjøkkentegning innenfor avsatt sum. Oppgradering tas direkte med kjøkkenleverandør Vegsund kjøkken og interiør, HTH eller Sigdal.
- Boligen blir levert med seriekoblet røykvarslere og brannslukkingsapparat.
- Kompakte innerdører av typen Sletten hvit (bomull) fra Bygg1 eller tilsvarende fra annen leverandør..
- 90x90 dusjvegger leveres.
- 1m garderobeskap pr sengeplass.
- 100 cm badromsinnredning
Diverse
- Dokumentavgift 2,5% av tomteverdi
- Kontakt oss for salgsoppgave
Nærområdet
Fokus Bygg AS
Fokus Bygg AS
Utbygger
Annonsene kan være mangelfulle i forhold til lovpålagt opplysningsplikt. Før bindende avtale inngås oppfordres interessenter til å innhente komplett informasjon fra meglerforetaket, selger eller utleier.



