Bildegalleri

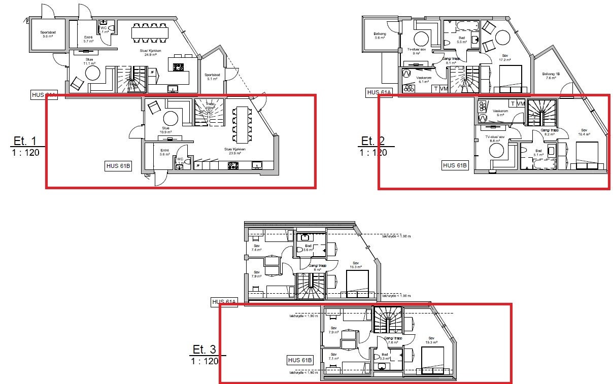
Plantegning 61B - Avvik kan forekomme
Heiane
Heiane
Flott rekkehus over 3 plan med 4(5) soverom.
Prisantydning6 700 000 kr
Prosjektets status
Planlegging
Ferdig
Salgsstart
I salg!
Byggestart
Ferdig
Overtakelse
Innflyttingsklart!
Nøkkelinfo
- Boligtype
- Tomannsbolig
- Etasje
- 1
- Soverom
- 5
- Rom
- 6
- Internt bruksareal
- 138 m² (BRA-i)
- Bruksareal
- 143 m²
- Eksternt bruksareal
- 5 m² (BRA-e)
Fasiliteter
Balkong/Terrasse
Bredbåndstilknytning
Garasje/P-plass
Kabel-TV
Utsikt
Turterreng
Visning
Ta kontakt med megler på tlf. 979 69 208 dersom oppsatt visning ikke passer!
VisningspåmeldingBeskrivelse
Ansvarlig megler
Andreas Tveit
NB: Knappen for å vise hele beskrivelsen har kun en visuell effekt.
NB: Knappen for å vise hele beskrivelsen har kun en visuell effekt.
Nærområdet
Eiendomsmegler Norge Nybygg Bergen
Det viktigste stedet i Norge er der du bor
Annonseinformasjon
| FINN-kode | 381534737 |
|---|---|
| Sist endret | 05. nov. 2025 10:18 |
| Referanse | 81240296 |
Annonsene kan være mangelfulle i forhold til lovpålagt opplysningsplikt. Før bindende avtale inngås oppfordres interessenter til å innhente komplett informasjon fra meglerforetaket, selger eller utleier.


