Bildegalleri

Velkommen til Nordbyveien 160, presentert av Eiendomsmegler 1 v/Frode Eriksen!
Inaktiv
Pen enebolig - Romslig garasje - Hafslundsøy
Prisantydning3 400 000 kr
Nøkkelinfo
- Boligtype
- Enebolig
- Eieform
- Eier (Selveier)
- Soverom
- 2
- Internt bruksareal
- 156 m² (BRA-i)
- Bruksareal
- 188 m²
- Eksternt bruksareal
- 32 m² (BRA-e)
- Byggeår
- 1954
- Energimerking
- G - Oransje
- Rom
- 3
- Tomteareal
- 922 m² (festet)
- Festeavgift
- 300 kr
Fasiliteter
Garasje/P-plass
Hage
Kjæledyr tillatt
Kabel-TV
Offentlig vann/kloakk
Peis/Ildsted
Sentralt
Om boligen
Vi har gleden av å tilby Nordbyveien 160 for salg.
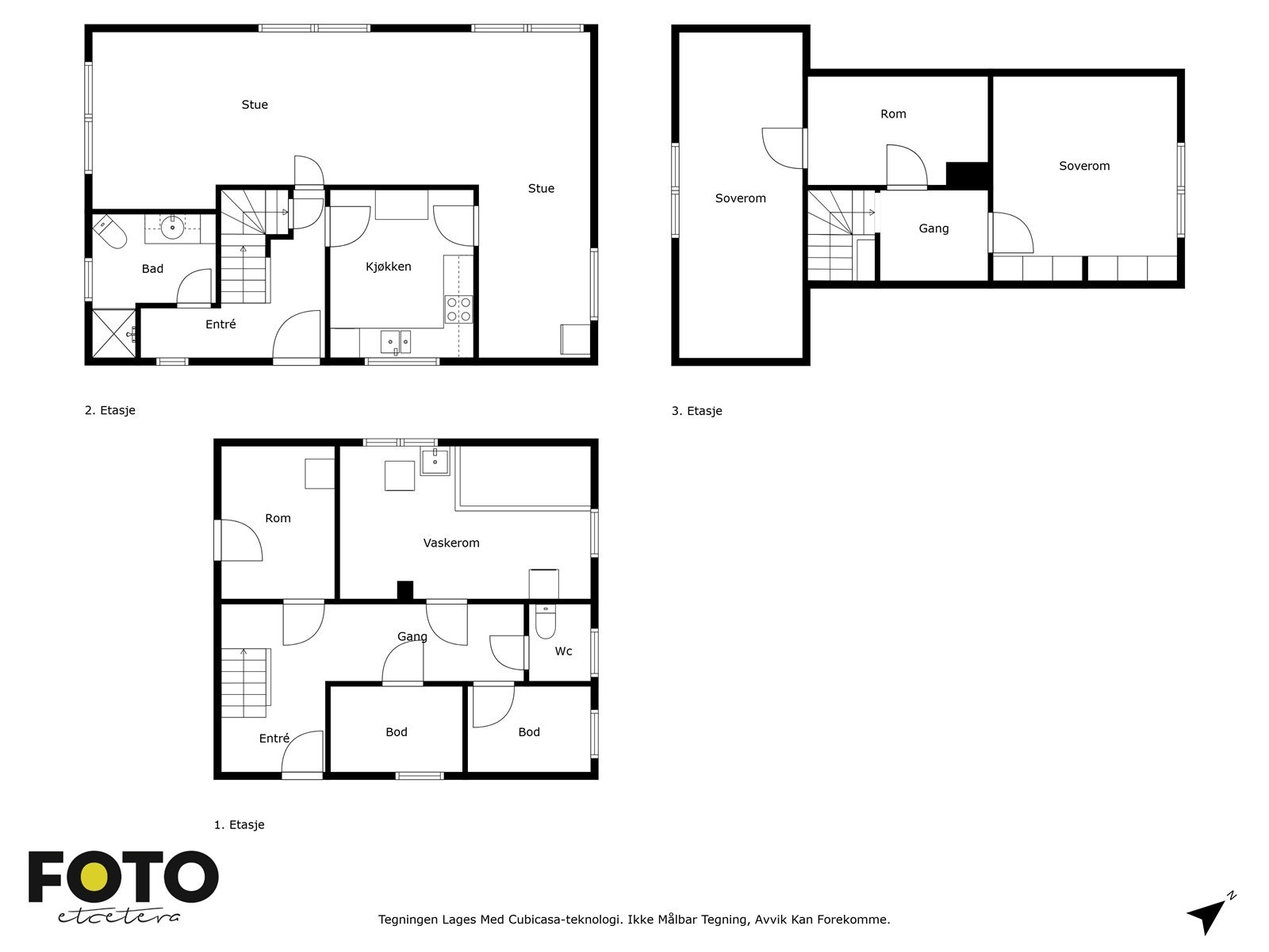
En pen enebolig med 1 1/2 etg. og kjeller. En lys og luftig enebolig. Stue og kjøkken i 1. etg. Soverom og bad i 2. etg.
Romslig tomt, opparbeidet med plenareal og gruset gårdsplass. Solrike uteområder. Stor gårdsplass. Dobbel garasje.
Hvitevarer og møbler kan følge salget.
Sentralt beliggende på Hafslundsøy med kort avstand til butikk og barneskole, golfbane og gode rekreasjonsmuligheter om du er glad i tur og fiske. Det er ellers en kort kjøretur inn til Sarpsborg sentrum.
Velkommen til en hyggelig visning.
En pen enebolig med 1 1/2 etg. og kjeller. En lys og luftig enebolig. Stue og kjøkken i 1. etg. Soverom og bad i 2. etg.
Romslig tomt, opparbeidet med plenareal og gruset gårdsplass. Solrike uteområder. Stor gårdsplass. Dobbel garasje.
Hvitevarer og møbler kan følge salget.
Sentralt beliggende på Hafslundsøy med kort avstand til butikk og barneskole, golfbane og gode rekreasjonsmuligheter om du er glad i tur og fiske. Det er ellers en kort kjøretur inn til Sarpsborg sentrum.
Velkommen til en hyggelig visning.
NB: Knappen for å vise hele beskrivelsen har kun en visuell effekt.
NB: Knappen for å vise hele beskrivelsen har kun en visuell effekt.
Salgsoppgaven beskriver vesentlig og lovpålagt informasjon om eiendommen
Se komplett salgsoppgaveNyttige lenker
Nærområdet
EiendomsMegler 1 Sarpsborg
Annonseinformasjon
| FINN-kode | 381512992 |
|---|---|
| Sist endret | 07. okt. 2025 05:23 |
| Referanse | 5370240382 |
Annonsene kan være mangelfulle i forhold til lovpålagt opplysningsplikt. Før bindende avtale inngås oppfordres interessenter til å innhente komplett informasjon fra meglerforetaket, selger eller utleier.



































