Bildegalleri

Velkommen til en praktfull eiendom ved Holmestrandsfjorden, med over 2 måls tomt, fantastisk utsikt og over 380 m² bygningsmasse.
Unik og praktfull utsiktseiendom på over 2 mål med stor enebolig, anneks & garasje. Leieinntekt kr.11.000,- pr.mnd.
Nøkkelinfo
- Boligtype
- Enebolig
- Eieform
- Eier (Selveier)
- Soverom
- 5
- Internt bruksareal
- 266 m² (BRA-i)
- Bruksareal
- 381 m²
- Eksternt bruksareal
- 115 m² (BRA-e)
- Balkong/Terrasse
- 57 m² (TBA)
- Byggeår
- 1965
- Energimerking
- F - Gul
- Rom
- 8
- Tomteareal
- 2 118 m² (eiet)
- Boligselgerforsikring
- Ja
Fasiliteter
Visning
Om boligen
Proaktiv ønsker deg velkommen til en unik utsiktseiendom beliggende på en naturlig høyde ved kanten av Holmestrandsfjellet i et av byens fineste områder. Svært vakker tomt på over 2 mål, med usjenerte uteplasser på begge sider, stor og frodig hage m/ boltreplass for barna, og upåklagelige solforhold hele dagen. Utsikten er fantastisk uansett hvor du beveger deg på eiendommen!
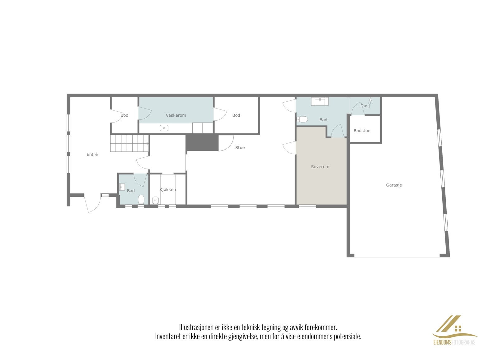
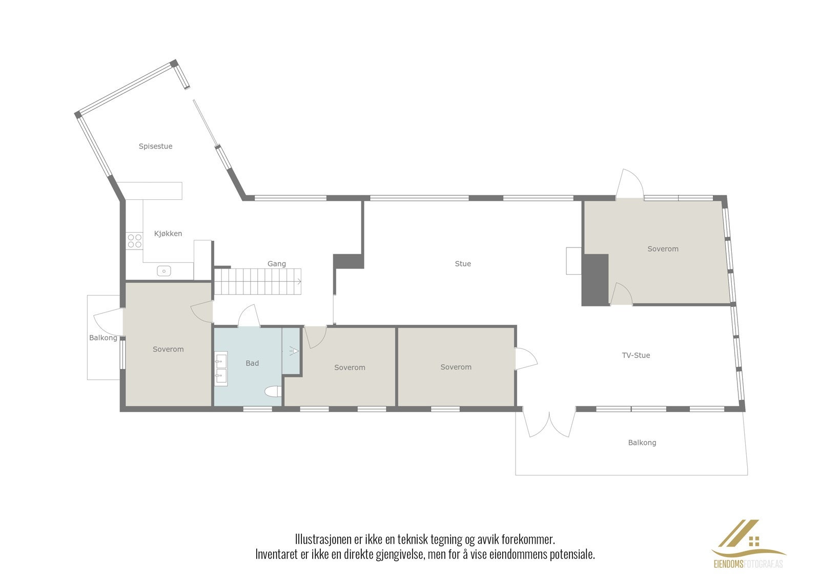
På tomten er det en flott enebolig over to plan, integrert garasje, anneks over to plan, og stabbur. Eneboligen på over 300m² består av bla. 2 stuer, 2 bad, 5 soverom og separat vaskerom med god plass til storfamilien.
Her bor du sentralt og samtidig fredelig og tilbaketrukket i et veletablert nabolag. Det er kun 7 min gange til Fjellheisen som tar deg til togstasjonen. Ca. 5min med bil til Holmestrand sentrum og havna.
Salgsoppgaven beskriver vesentlig og lovpålagt informasjon om eiendommen
Se komplett salgsoppgaveNyttige lenker
Nærområdet
Proaktiv Eiendomsmegling Drammen, Lier & Holmestrand
Annonseinformasjon
| FINN-kode | 381422702 |
|---|---|
| Sist endret | 23. juni 2025 14:06 |
| Referanse | 106240198 |
Annonsene kan være mangelfulle i forhold til lovpålagt opplysningsplikt. Før bindende avtale inngås oppfordres interessenter til å innhente komplett informasjon fra meglerforetaket, selger eller utleier.











































































