Bildegalleri

Rekkehuset holder en høy standard og ble ferdigbygget i 2023.
Flott rekkehus med nybygg garanti. Garasjeplass. 3 uteplasser. 2 stuer. Vaskerom. Rimelig oppvarming via fjernvarme
Nøkkelinfo
- Boligtype
- Rekkehus
- Eieform
- Eier (Selveier)
- Soverom
- 4
- Internt bruksareal
- 125 m² (BRA-i)
- Bruksareal
- 131 m²
- Eksternt bruksareal
- 6 m² (BRA-e)
- Balkong/Terrasse
- 37 m² (TBA)
- Byggeår
- 2023
- Energimerking
- B - Mørkegrønn
- Tomteareal
- 1 847 m² (eiet)
Om boligen
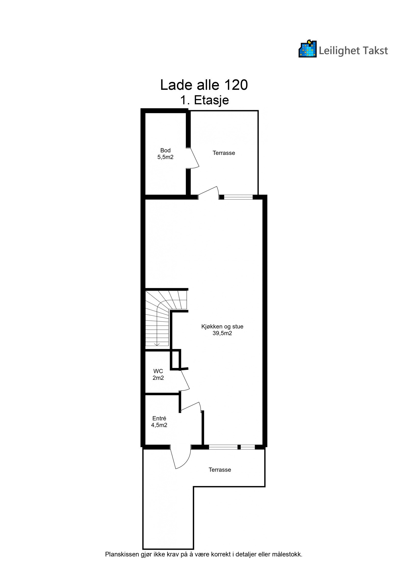
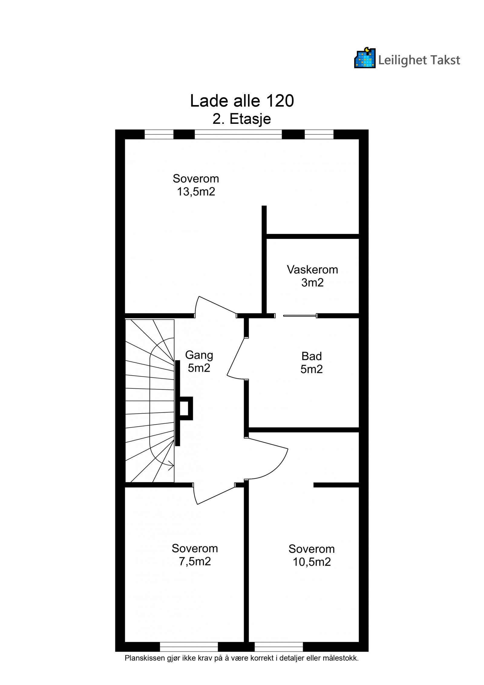
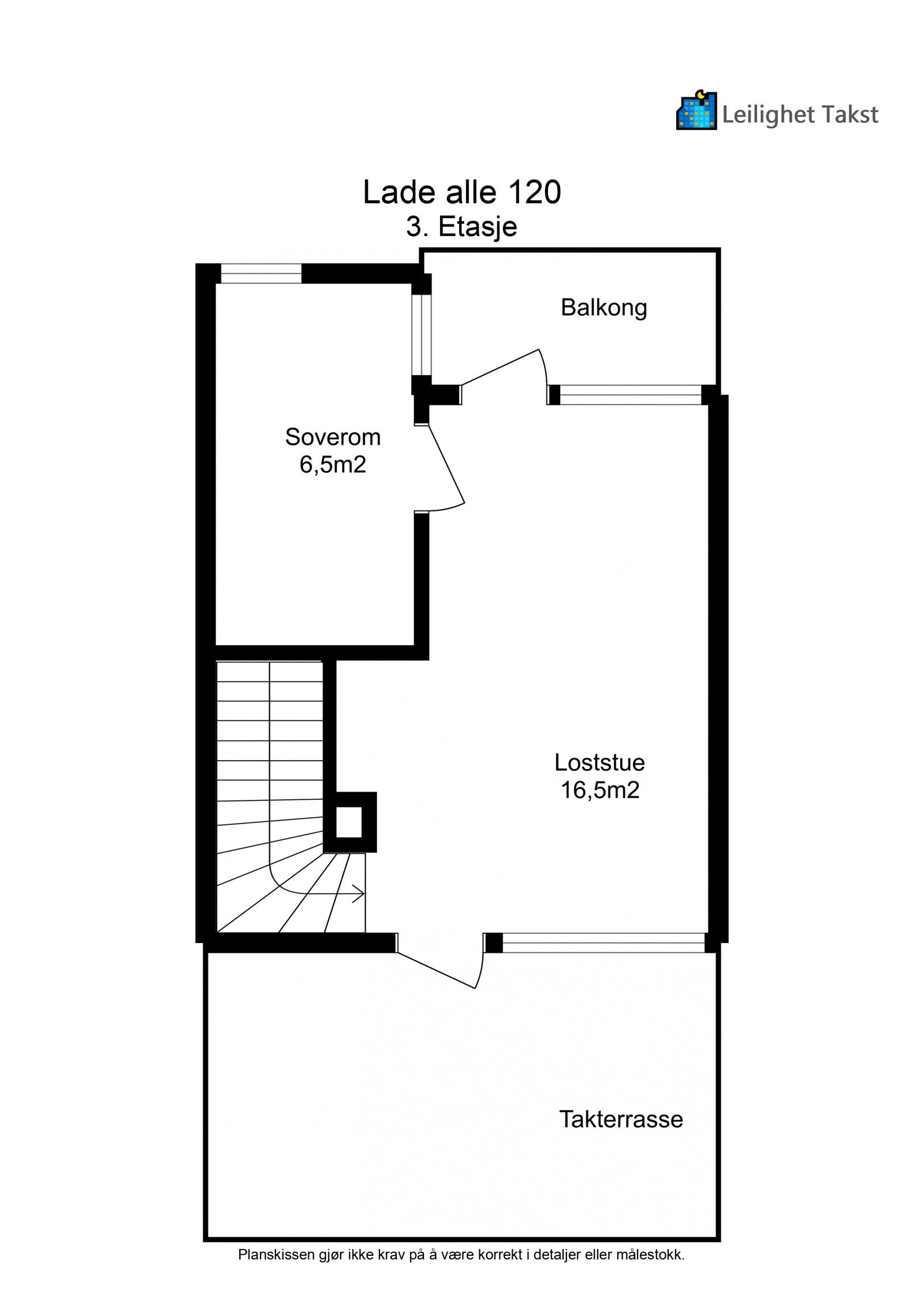
Rekkehuset holder en høy standard og ble ferdigbygget i 2023. Boligen går over tre etasjer, og har en praktisk planløsning tilpasset et aktivt familieliv. Ut ifra prosjektert standard er det gjort flere oppgraderinger. som påkostet kjøkken, plassbygde garderober, belysning samt ombygget planløsning for å få en romsligere entre/ gang. Boligen inneholder 2 stuer, 3 balkonger, 4 soverom, eget vaskerom samt rimelig oppvarming via fjernvarme.
- Parkering i felles garasjeanlegg med lader for elbil
- Høy standard med moderne løsninger
- Toalett i to etasjer samt eget vaskerom
- Nære kjøpesentre og kollektive forbindelser
- Nært fine turområder med Ladestien som nærmeste nabo
- Nybygg garanti
- Solrik takterrasse
- Innglasset balkong
- Sentral beliggenhet
- Barnevennlig
Salgsoppgaven beskriver vesentlig og lovpålagt informasjon om eiendommen
Se komplett salgsoppgaveNyttige lenker
Nærområdet

PrivatMegleren Benum & Johansen
Prisstatistikk
Lade alle 120
på annonsen
prisantydning per kvadratmeter
Prisfordeling
Pris per m² ligger 11 520 kr over snittet for rekkehus i Trondheim Øst.
Grafen viser antall rekkehus solgt i Trondheim Øst siste året fordelt på pris per m² - totalt 192 rekkehus
Antall boliger
Kvadratmeterpris tilsvarer prisantydning pluss fellesgjeld per kvadratmeter (p-rom eller BRA-i). Prisene i grafen er avrundet til nærmeste 1000 kr.
Annonseinformasjon
| FINN-kode | 380180620 |
|---|---|
| Sist endret | 23. nov. 2024 13:24 |
| Referanse | 164240259 |
Annonsene kan være mangelfulle i forhold til lovpålagt opplysningsplikt. Før bindende avtale inngås oppfordres interessenter til å innhente komplett informasjon fra meglerforetaket, selger eller utleier.




































