Bildegalleri

Velkommen til et herlig rekkehus med svært solrike terrasser og hage
Kliss nytt rekkehus, uteplasser mot øst og vest - 3(4) soverom, 2 bad - 2 stuer - fleksibel overtagelse!
Nøkkelinfo
- Boligtype
- Rekkehus
- Eieform
- Eier (Selveier)
- Soverom
- 4
- Internt bruksareal
- 127 m² (BRA-i)
- Bruksareal
- 132 m²
- Byggeår
- 2024
- Energimerking
- B - Oransje
- Rom
- 5
Fasiliteter
Visning
Ta kontakt for å avtale visning.Velkommen til Ski Hageby
Solon Eiendom sitt prosjekt, Ski Hageby, ligger glimrende til kun halvannen kilometer vest for Ski sentrum.
Denne annonsen presenterer hus C4, et herlig rekkehus med svært solrike terrasser og hage.
- Solrike utearealer gjennom både markterrasse, hage og takterrasse
- Kun to plan og er således blottet for lange trappeløp
- Gjennomgående solide materialvalg og romslig kvalitetskjøkken
- Vannbåren gulvvarme
- Enstavs eikeparkett og pene fliser på bad og i entre
- Store og flotte fellesarealer for lek og rekreasjon
- Rett ved Ski sentrum og kort til togstasjon
- Med Follobanen tar det kun 11 minutter fra Ski stasjon til Oslo S
- Grønne og naturskjønne omgivelser
- Sentrumsnært og skogsnært, halvannen kilometer vest for Ski sentrum
- Delvis overbygget parkeringsplass i tilknytning til eget inngangsparti
- Tegnet av prisbelønte R21 arkitekter, særlig kjent for sine eneboliger og rekkehus
- Boligen er ferdigstilt og innflyttingsklar
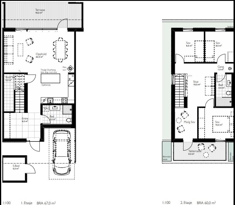
1. etg: Flislagt entre med inngang til pent, flislagt bad. Videre kommer du inn i en stue med åpen kjøkkenløsning. Store vindusflater slipper inn rikelig med lys. Fra stuen er det utgang til terrasse og privat hage. Mulighet for vedovn i stuen.
2.etg: 3 gode soverom, tv-stue, kontor (soverom 4) og utgang til privat takterrasse. Pent flislagt bad med plass og opplegg til vaskesøyle.
En carport i tilknytning til boligen delvis under tak.
Sportsbod på ca 5 kvm ved inngangspartiet.
www.skihageby.no
Usikker på om du får solgt din egen bolig?
Denne boligen er dobbeltforsikret! Dette gjør det tryggere og enklere for deg som ønsker å kjøpe bolig ny bolig. Konferer megler.
Beliggenhet
Ski er i rivende utvikling, og den sentrale beliggenheten har gjort området populært. Fra Ski Hageby tar det cirka 5-6 minutter på sykkel til Ski stasjon, og med toget som tar deg inn til Oslo S på 11 minutter faller logistikken på plass for de fleste.
Om det er nødvendig å bruke bilen, har hver bolig egen biloppstillingsplass. Med pendlerparkering på Ski Stasjon blir det også enkelt å være togreisende.
I nærområdet er det flere matbutikker, og den nærmeste Kiwi-butikken ligger kun 3 minutter unna. Ski Hageby sogner til Finstad skole, og skoleveien er både hyggelig og kort, en 10-minutters gåtur unna. Det er også flere barnehager i umiddelbar nærhet. Det er kort vei til sentrum med gode handlemuligheter og opplevelser som kino, kulturhus og hyggelige uteplasser. Ski storsenter ligger også kun en kort spasertur unna.
Nærområdet har mye å by på for deg som er glad i friluftsliv, enten du foretrekker å gå tur, jogge, gå på ski, padle, fiske eller sykle. Marka ligger tett på og har merkede stier og skogsveier for enkel ferdsel, sommer som vinter. Her er det turterreng som passer for alle.
Ta kontakt med megler for komplett informasjon
Nærområdet
Sem & Johnsen
Annonsene kan være mangelfulle i forhold til lovpålagt opplysningsplikt. Før bindende avtale inngås oppfordres interessenter til å innhente komplett informasjon fra meglerforetaket, selger eller utleier.

































