Bildegalleri

Velkommen til en særdeles flott funkisvilla på Vinderen i Haakon den godes vei 9, et av hovedstadens mest ettertraktede boligstrøk.
Ærverdig funkisvilla tegnet av Norberg-Schulz & Hovig | 430m² med utsikt mot fjorden & Frognerseteren
Nøkkelinfo
- Boligtype
- Enebolig
- Eieform
- Eier (Selveier)
- Soverom
- 4
- Internt bruksareal
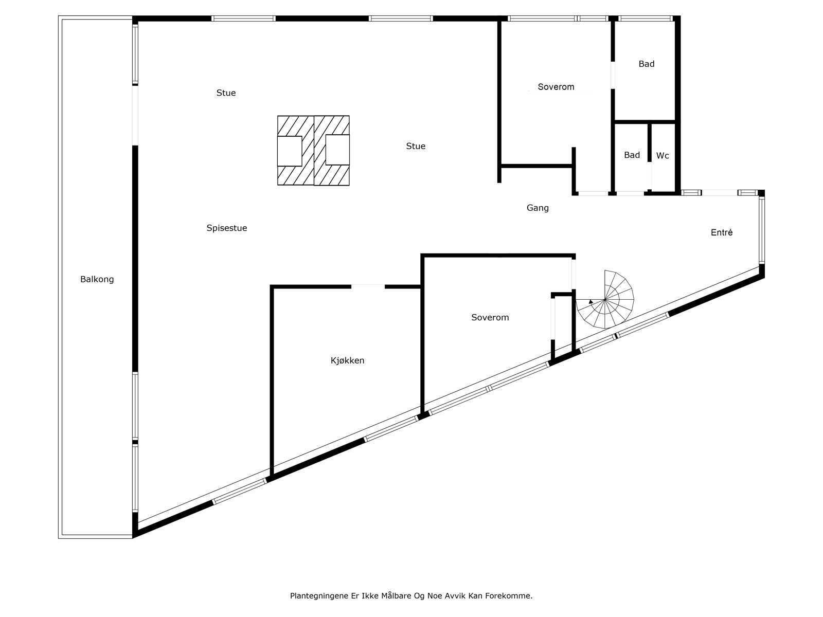
- 430 m² (BRA-i)
- Bruksareal
- 430 m²
- Balkong/Terrasse
- 59 m² (TBA)
- Byggeår
- 1972
- Energimerking
- G - Lysegrønn
- Rom
- 6
- Tomteareal
- 1 046 m² (eiet)
- Boligselgerforsikring
- Ja
Fasiliteter
Visning
Om boligen
Velkommen til en ærverdig funkisvilla i Haakon den godes vei 9, tegnet av de anerkjente arkitektene Christian Norberg-Schulz og Jan Inge Hovig. Funkisvillaen har en helt ideell plassering på Vinderen, i et av hovedstadens mest attraktive boligstrøk. Tilbaketrukket plassert, men likevel med god tilgjengelighet til alt Oslo har å by på.
Selvom huset har oppnådd en viss alder, er huset godt ivaretatt og har beholdt mye av det originale siden villaen tilhørte den norske kunstneren Jakob Weidemann. Dog må det påregnes oppgradering for å nå dagens krav til standard.
Huset på 430m² ligger på en høytliggende tomt med herlig utsikt mot vest, fra Oslofjorden til Frognerseteren. Tomten på over 1 mål er gjennomført og parkmessig opparbeidet med et imponerende uterom. Garasje og biloppstillingsplasser.
Salgsoppgaven beskriver vesentlig og lovpålagt informasjon om eiendommen
Se komplett salgsoppgaveNyttige lenker
Nærområdet
Proaktiv Eiendomsmegling Lillestrøm
Annonseinformasjon
| FINN-kode | 379527683 |
|---|---|
| Sist endret | 11. apr. 2025 12:59 |
| Referanse | 57240167 |
Annonsene kan være mangelfulle i forhold til lovpålagt opplysningsplikt. Før bindende avtale inngås oppfordres interessenter til å innhente komplett informasjon fra meglerforetaket, selger eller utleier.































































