Bildegalleri

Velkommen til Junkerveien 53C - Presentert av Aktiv Eiendomsmegling Bodø
Inaktiv
Lekker terrasseleilighet over 2 plan | Attraktiv beliggenhet, praktfull utsikt | Renovert/ meget påkostet
Prisantydning6 490 000 kr
Nøkkelinfo
- Boligtype
- Leilighet
- Eieform
- Eier (Selveier)
- Soverom
- 2
- Internt bruksareal
- 120 m² (BRA-i)
- Bruksareal
- 120 m²
- Balkong/Terrasse
- 45 m² (TBA)
- Etasje
- 3
- Byggeår
- 1975
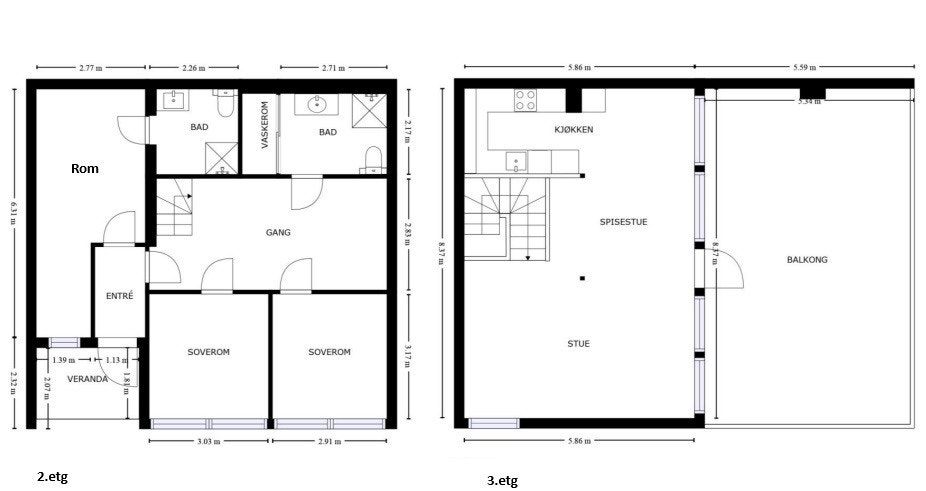
- Rom
- 4
- Tomteareal
- 9 738 m² (eiet)
Fasiliteter
Balkong/Terrasse
Barnevennlig
Garasje/P-plass
Offentlig vann/kloakk
Rolig
Sentralt
Utsikt
Turterreng
Balansert ventilasjon
Om boligen
Aktiv Eiendomsmegling Bodø presenterer en attraktiv og svært romslig leilighet over to etasjer. Flott beliggende i Rønvika med gå/ sykkelavstand til det meste av fasiliteter en kan ønske seg. Bygget og leiligheten ble vesentlig oppgradert i 2022/2023, og holder i dag en høy standard. Turområde og turmark ligger rett utenfor døren.
-2 bad og 2 soverom
-Smart og effektiv planløsning
-Store lys/ vindusflater
-Vannbåren gulvvarme og utstrakt bruk av downlights
-Store terrasser med flotte solforhold
-Egen parkeringsplass utenfor
-Gangavstand til fasiliteter som barnehage, skole og butikk
-Maskinisten og keiservarden ligger rett ved
Velkommen til en hyggelig visning!
-2 bad og 2 soverom
-Smart og effektiv planløsning
-Store lys/ vindusflater
-Vannbåren gulvvarme og utstrakt bruk av downlights
-Store terrasser med flotte solforhold
-Egen parkeringsplass utenfor
-Gangavstand til fasiliteter som barnehage, skole og butikk
-Maskinisten og keiservarden ligger rett ved
Velkommen til en hyggelig visning!
NB: Knappen for å vise hele beskrivelsen har kun en visuell effekt.
NB: Knappen for å vise hele beskrivelsen har kun en visuell effekt.
Salgsoppgaven beskriver vesentlig og lovpålagt informasjon om eiendommen
Se komplett salgsoppgaveNærområdet
Aktiv Bodø
Annonseinformasjon
| FINN-kode | 379358844 |
|---|---|
| Sist endret | 06. mai 2025 08:08 |
| Referanse | 1804240050 |
Annonsene kan være mangelfulle i forhold til lovpålagt opplysningsplikt. Før bindende avtale inngås oppfordres interessenter til å innhente komplett informasjon fra meglerforetaket, selger eller utleier.












































