Bildegalleri

Velkommen til vakre Kjesvika 28, her kan du og dine trives med nydelig utsikt over Bergsfjorden!
Solgt
Flott enebolig på Skaland med god utsikt, fire soverom og vaskerom! Kontakt megler for visning!
Prisantydning2 950 000 kr
Nøkkelinfo
- Boligtype
- Enebolig
- Eieform
- Eier (Selveier)
- Soverom
- 4
- Internt bruksareal
- 179 m² (BRA-i)
- Bruksareal
- 179 m²
- Balkong/Terrasse
- 32 m² (TBA)
- Etasje
- 2
- Byggeår
- 1975
- Energimerking
- F - Oransje
- Tomteareal
- 639 m² (eiet)
Fasiliteter
Balkong/Terrasse
Barnevennlig
Garasje/P-plass
Hage
Kjæledyr tillatt
Offentlig vann/kloakk
Peis/Ildsted
Rolig
Utsikt
Turterreng
Om boligen
Velkommen til Kjesvika 28, her presentert av Nordvik Finnsnes! Påmeldingsvisning 23.12 kl 12!
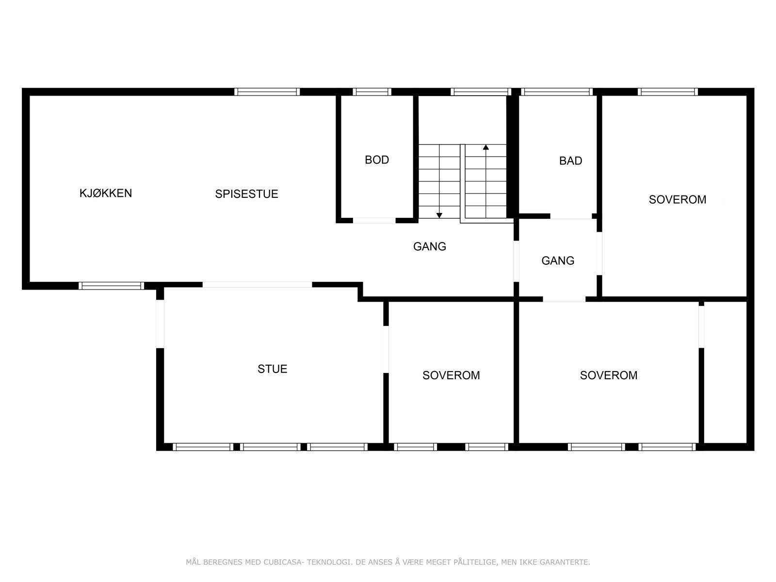
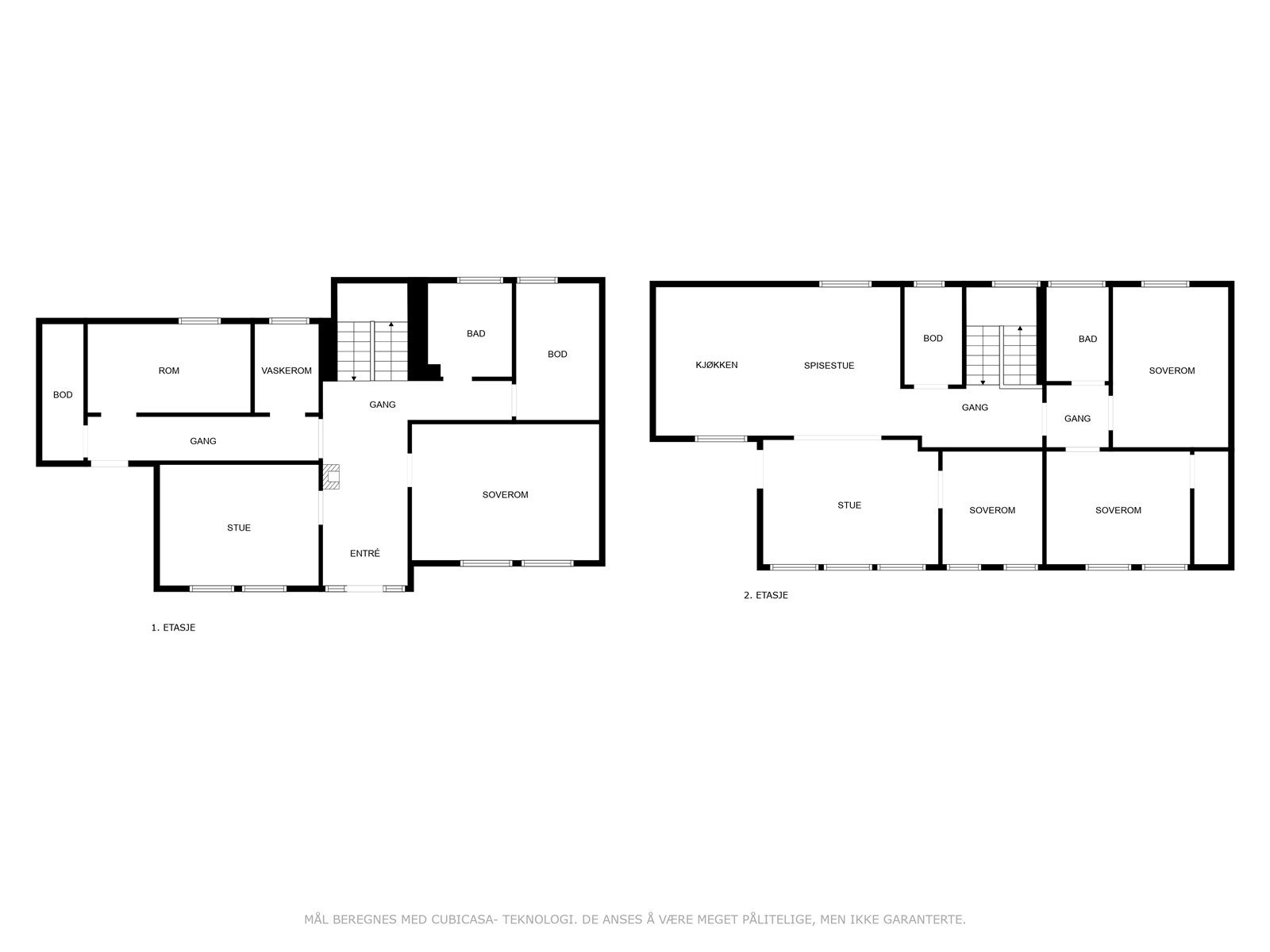
På Senja finner du den flotte bygda Skaland og i Kjæsvika får du gode solforhold og nydelig sjøutsikt. Hjemmet går over to plan og byr på stue med utgang til veranda, moderne kjøkken med integrerte hvitevarer, spisestue, to bad som ble pusset opp i 2018, vaskerom, flere innvendige boder og 4 (5) soverom. Det er installert varmepumpe i hver etasje vedfyring for energieffektiv oppvarming. Hjemmet har en flott opparbeidet tomt med hage og biloppstillingsplasser. Det er kort vei til handel, barnehage og skole. Boligen har vært delvis utleid i perioder og det er gode muligheter for utleie dersom du ønsker en tilleggssinntekt.
Her kan du og dine trives!
Sjekk ut videovisning i annonse!
På Senja finner du den flotte bygda Skaland og i Kjæsvika får du gode solforhold og nydelig sjøutsikt. Hjemmet går over to plan og byr på stue med utgang til veranda, moderne kjøkken med integrerte hvitevarer, spisestue, to bad som ble pusset opp i 2018, vaskerom, flere innvendige boder og 4 (5) soverom. Det er installert varmepumpe i hver etasje vedfyring for energieffektiv oppvarming. Hjemmet har en flott opparbeidet tomt med hage og biloppstillingsplasser. Det er kort vei til handel, barnehage og skole. Boligen har vært delvis utleid i perioder og det er gode muligheter for utleie dersom du ønsker en tilleggssinntekt.
Her kan du og dine trives!
Sjekk ut videovisning i annonse!
NB: Knappen for å vise hele beskrivelsen har kun en visuell effekt.
NB: Knappen for å vise hele beskrivelsen har kun en visuell effekt.
Salgsoppgaven beskriver vesentlig og lovpålagt informasjon om eiendommen
Se komplett salgsoppgaveNyttige lenker
Nærområdet
Nordvik Finnsnes
Annonseinformasjon
| FINN-kode | 379240433 |
|---|---|
| Sist endret | 18. juli 2025 11:34 |
| Referanse | 28-0070/24 |
Annonsene kan være mangelfulle i forhold til lovpålagt opplysningsplikt. Før bindende avtale inngås oppfordres interessenter til å innhente komplett informasjon fra meglerforetaket, selger eller utleier.







































