Bildegalleri

EIE eiendomsmegling har gleden av å presentere Steinbakken 13 - En lekker enebolig med god standard og fantastisk utsikt I stuen har du en god takhøyde som gir rommet en luftig og åpen atmosfære
Lekker enebolig med påkostede detaljer | Solrik uteplass og fantastisk utsikt | Generøs takhøyde og store vindusflater
Nøkkelinfo
- Boligtype
- Enebolig
- Eieform
- Eier (Selveier)
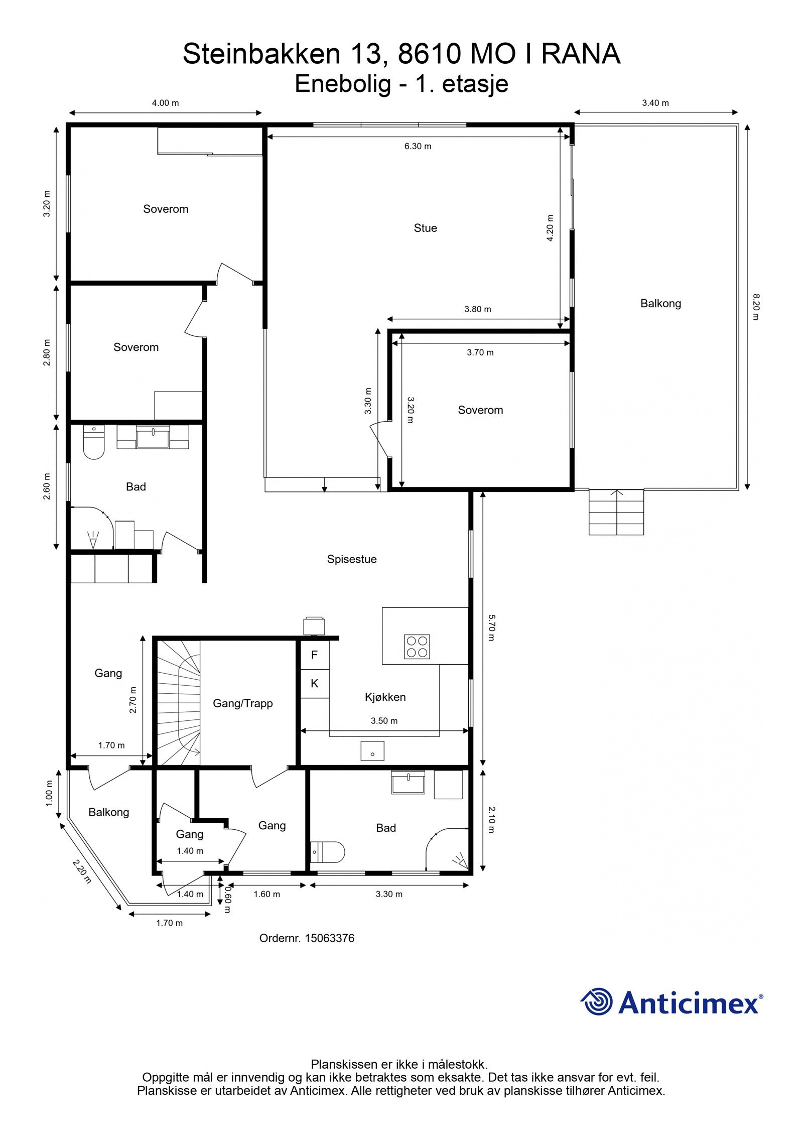
- Soverom
- 4
- Internt bruksareal
- 225 m² (BRA-i)
- Bruksareal
- 261 m²
- Eksternt bruksareal
- 36 m² (BRA-e)
- Balkong/Terrasse
- 44 m² (TBA)
- Byggeår
- 1954
- Energimerking
- G - Gul
- Rom
- 6
- Tomteareal
- 770 m² (eiet)
Om boligen
EIE eiendomsmegling har gleden av å presentere Steinbakken 13 - En rålekker eneboligen i et ettertraktet, veletablert familieområde
Her bor du med fantastisk utsikt og optimale solforhold. Boligen er oppgradert med påkostede materialvalg, noe som merkes fra første øyeblikk. Her er ingenting overlatt til tilfeldighetene, gjennomgående høy standard preger både planløsning og detaljer, og gir boligen et eksklusivt uttrykk. Fra moderne kjøkken til delikate baderom er alt tilrettelagt for å skape et hjem som kombinerer funksjon og stil. Denne boligen må oppleves!
Overetasjen benyttes i dag til utleie. Enheten leies pr. i dag ut for 11 000,- pr mnd. pluss strøm. Det gjøres oppmerksom på at utleiedelen ikke er godkjent og det anbefales på generelt grunnlag å få dette godkjent hos kommunen
Velkommen!
Salgsoppgaven beskriver vesentlig og lovpålagt informasjon om eiendommen
Se komplett salgsoppgaveNærområdet
EIE eiendomsmegling Mo i Rana
Annonseinformasjon
| FINN-kode | 378458196 |
|---|---|
| Sist endret | 09. juli 2025 09:35 |
| Referanse | 100240137 |
Annonsene kan være mangelfulle i forhold til lovpålagt opplysningsplikt. Før bindende avtale inngås oppfordres interessenter til å innhente komplett informasjon fra meglerforetaket, selger eller utleier.









































