Bildegalleri

Attraktiv enebolig med stor tomt | Tre soverom | Terrasse | Dobbeltgarasje | Barnevennlig område
Nøkkelinfo
- Boligtype
- Enebolig
- Eieform
- Eier (Selveier)
- Soverom
- 3
- Internt bruksareal
- 181 m² (BRA-i)
- Bruksareal
- 224 m²
- Eksternt bruksareal
- 43 m² (BRA-e)
- Balkong/Terrasse
- 22 m² (TBA)
- Byggeår
- 1963
- Energimerking
- F - Oransje
- Tomteareal
- 4 092 m² (eiet)
Fasiliteter
Om boligen
Enebolig med stor opparbeidet tomt i etablert boligområde som byr på gode oppvekstvilkår for barn og ungdom. Det er kort gangavstand skole, barnehage, idrettsanlegg og offentlig kommunikasjon. Dagligvarehandel i umiddelbar nærhet. Det er 5 min kjøring til Kongsberg sentrum eller 20-30 min gåtur til byens fasiliteter.
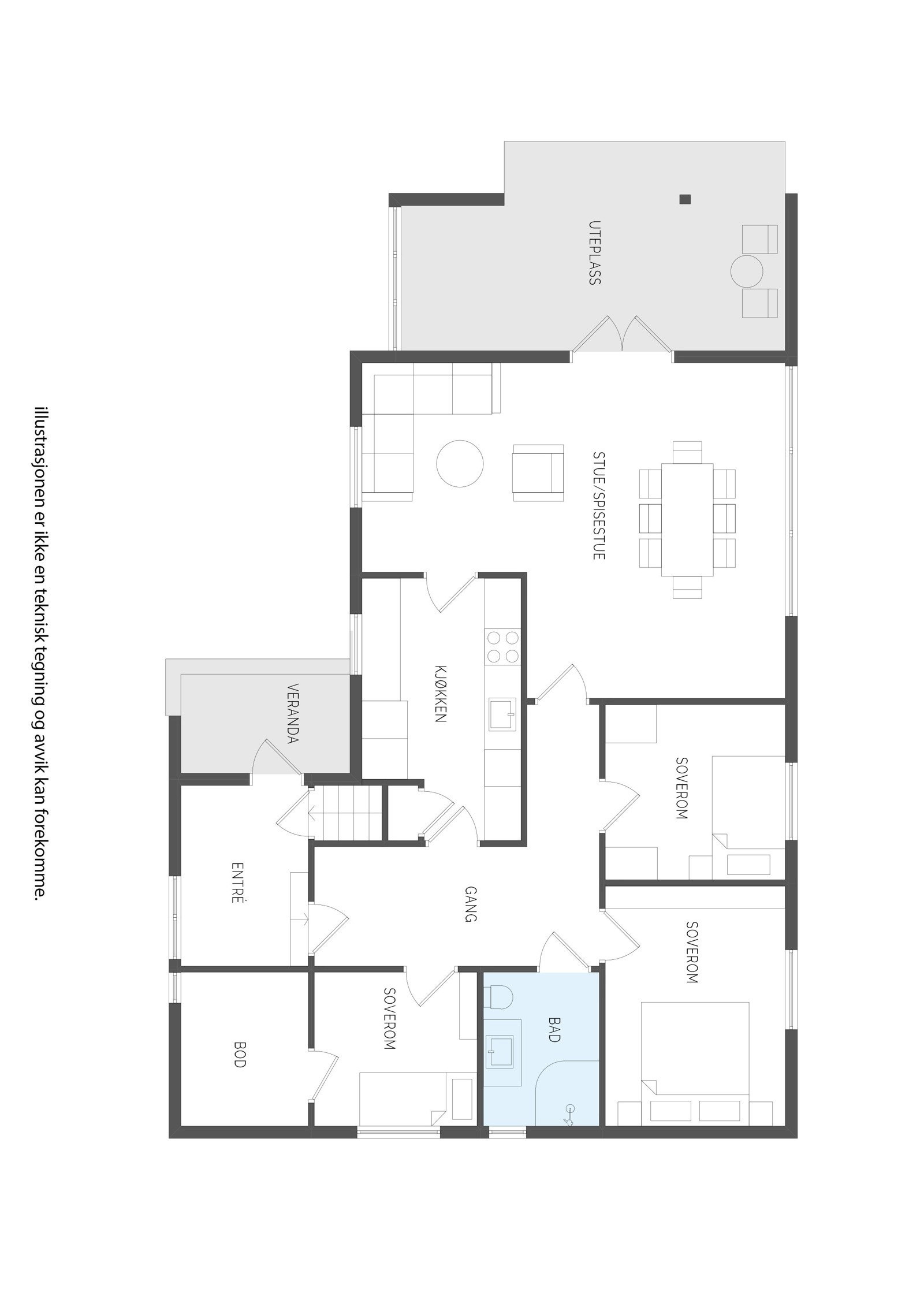
Boligen planløsning med familievennlige romslige oppholdsrom omfatter bl.a. tre soverom, kjøkken, bad og stue/spisestue med utgang til flott overbygd terrasse. Parkering i gårdsplass eller garasje. I underetasjen er etablert egen inngang til entré/stue, bad/vaskerom og to soverom. Dagens bruk av underetasjen er ikke lovlig etablert.
Det er kort avstand til flotte tur og rekreasjonsmuligheter. Kjennerudvannet med badeplass, turstier og skiløyper ligger i gangavstand fra boligen.
Salgsoppgaven beskriver vesentlig og lovpålagt informasjon om eiendommen
Se komplett salgsoppgaveNyttige lenker
Nærområdet
Agente Eiendomsmegling
Annonseinformasjon
| FINN-kode | 378430352 |
|---|---|
| Sist endret | 08. juni 2025 12:14 |
| Referanse | 23240019 |
Annonsene kan være mangelfulle i forhold til lovpålagt opplysningsplikt. Før bindende avtale inngås oppfordres interessenter til å innhente komplett informasjon fra meglerforetaket, selger eller utleier.


































