Bildegalleri

Stor villa i blindvei med pent opparbeidet tomt.
Enebolig innerst i blindvei v/skogkanten | Lettstelt tomt I Dobbel garasje | Sep. anneks m/soveplass I Stor terrasse I
Nøkkelinfo
- Boligtype
- Enebolig
- Eieform
- Eier (Selveier)
- Soverom
- 4
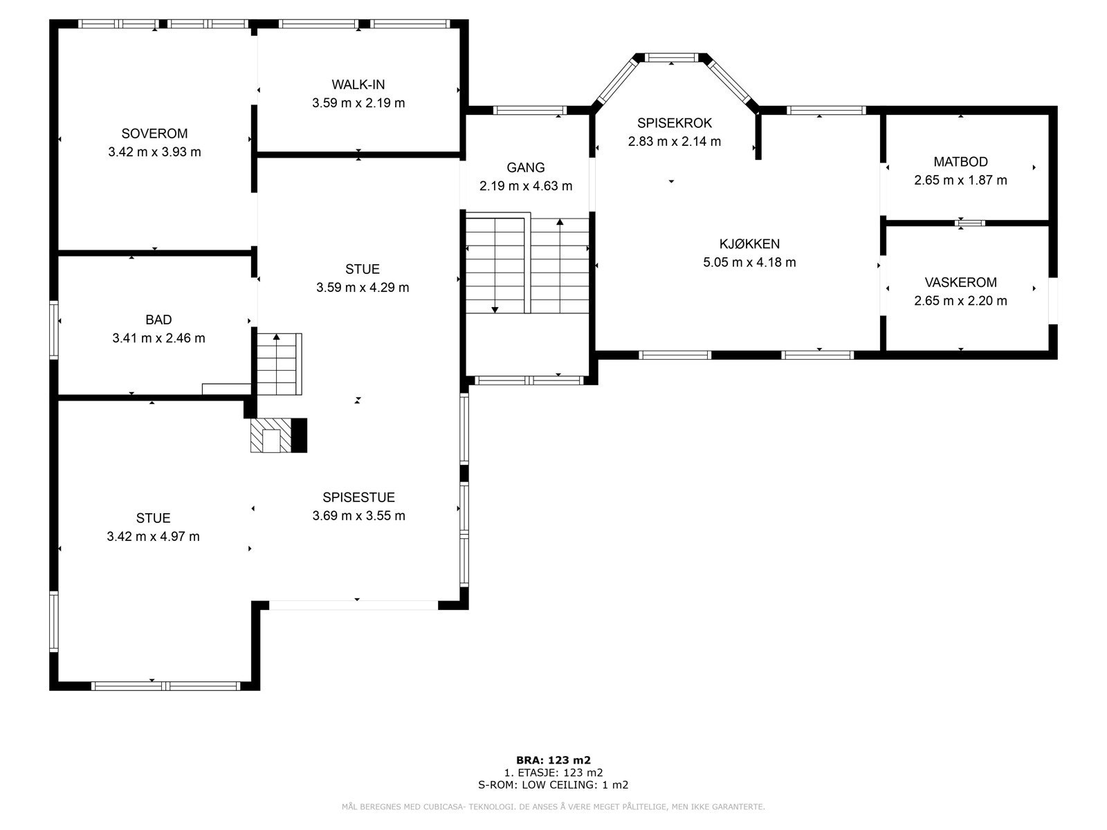
- Internt bruksareal
- 248 m² (BRA-i)
- Bruksareal
- 298 m²
- Eksternt bruksareal
- 50 m² (BRA-e)
- Balkong/Terrasse
- 4 m² (TBA)
- Byggeår
- 1984
- Energimerking
- F - Oransje
- Tomteareal
- 642 m² (eiet)
Fasiliteter
Om boligen
Velkommen til Christian Kroghs vei 115!
Romslig bolig og separat anneks innerst i blindvei. Skjermet fra trafikk. Boligen har flotte særpreg og luftig planløsning. En nydelig kakkelovn i stuen og en stor hems som er en ypperlig ekstra oppholdsplass for barn. Stort hobbyrom innredet med biljardbord. Her bor du i umiddelbar nærhet til skogen med tur og bademuligheter.Greverud er meget barnevennlig med flere skoler og barnehager i området.Tomten er lettstelt og opparbeidet m/nydelige brostein og noe plen.Terrasse m/utepeis og atrium.
Verdt å merke seg:
- Stor enebolig med mulighet for generasjonsbolig/hybeldel
- 2 bad romslig bad renovert i 2022.
- Solid Marbodal kjk. fra 2009
- Anneks med soveplasser
- Stor kjølebod og eget vaske/tørkerom
- Bolig oppgradert 2008 - 2019
Salgsoppgaven beskriver vesentlig og lovpålagt informasjon om eiendommen
Se komplett salgsoppgaveNærområdet
EIE eiendomsmegling Vinderen
Annonseinformasjon
| FINN-kode | 378401505 |
|---|---|
| Sist endret | 17. apr. 2025 11:19 |
| Referanse | 31240167 |
Annonsene kan være mangelfulle i forhold til lovpålagt opplysningsplikt. Før bindende avtale inngås oppfordres interessenter til å innhente komplett informasjon fra meglerforetaket, selger eller utleier.































